Главная Проекты домов Проект коттеджа из бруса с эркером

D768 Проект коттеджа из бруса с эркером

Сравнить проект В избранное
Проект коттеджа из бруса с эркером / 1
Проект коттеджа из бруса с эркером / 2
Проект коттеджа из бруса с эркером / 3
Проект коттеджа из бруса с эркером / 4
Проект коттеджа из бруса с эркером / 1
Проект коттеджа из бруса с эркером / 2
Проект коттеджа из бруса с эркером / 3
Проект коттеджа из бруса с эркером / 4
D768
155 м²
Подготовка проекта:
Готов к отправке
Стоимость проекта
Купить проект
Задайте вопросы по проекту нашему архитектору
8 (800) 200-28-83
Время работы: пн-вс: с 9:00 до 20:00
Задать вопрос по проекту

Технические характеристики
Общие
Материал стен
Клееный брус
Общая площадь
155 м²
Жилая площадь
90 м²
Площадь застройки
102 м²
Количество жилых комнат/спален
4
Этажи
1 этаж + мансарда
Гараж
Пристроенный навес
Количество машин
1
Подвал / цокольный этаж
Без подвала
Длина дома
14 м
Ширина дома
9.5 м
Высота в коньке
7.1 м
Кровля
Металлочерепица
Толщина несущих наружных стен
195х150 мм
Межэтажные перекрытия
По деревянным балкам
Фундамент
Свайный
Терраса
Без террасы
Дополнительные
Камин
Есть
Сауна/баня внутри
Нет
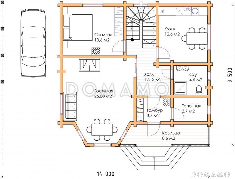
Площадь гостиной
25 м²
Площадь кухни
12.6 м²
Количество санузлов
2
Котельная
Есть
Планы помещений
Фасады
Описание проекта

Проект дома с мансардой, который хорошо подойдет для семьи из четырех-пяти человек. Включает в себя четыре спальни, просторную гостиную, кухню и гардеробную комнату. Такая постройка из бруса станет хорошим решением для загородного и дачного участка. Благодаря пристроенному навесу удастся организовать парковочное место или зону для семейного отдыха. Эркер на втором этаже выполняет не только декоративную, но и практическую функцию — с его помощью обеспечивается естественная освещенность жилых комнат. Проект наверняка понравится ценителям практичности и классического стиля.

Ключевые особенности:

  • Универсальное решение для небольших и средних участков.
  • Наличие пристроенного навеса.
  • Компактная планировка, позволяющая разместить большое количество жилых комнат на небольшой площади.
  • Наличие камина.
Категории проекта: с мансардой с гаражом с мансардой и гаражом деревянные для постоянного проживания из клееного бруса от 100 до 200 кв.м в европейском стиле готовые одноэтажные с гаражом одноэтажные с мансардой одноэтажные с котельной с котельной одноэтажные деревянные одноэтажные с гаражом и мансардой до 200 кв.м с двухскатной крышей загородные с камином прямоугольные с навесом для машины Проекты деревянных домов с мансардой Проекты деревянных домов с гаражом Проекты домов из клееного бруса с гаражом Проекты домов из клееного бруса с мансардой Проекты одноэтажных домов из клееного бруса Типовые проекты загородных одноэтажных домов с гаражом под одной крышей одноэтажные с 4 спальнями полутораэтажные деревянные для круглогодичного проживания с 4 спальнями одноэтажные до 200 кв м недорогие с мансардой с котельной с мансардой с камином с мансардой с двухскатной крышей с мансардой в европейском стиле с мансардой прямоугольные с мансардой готовые с мансардой для постоянного проживания с мансардой до 200 кв.м одноэтажные с мансардой из клееного бруса одноэтажные с мансардой для постоянного проживания одноэтажные с мансардой в европейском стиле европейские для постоянного проживания европейские недорогие европейские готовые европейские без подвала европейские без террасы европейские с 2 санузлами европейские с котельной европейские прямоугольные европейские с двухскатной крышей европейские с камином европейские 100-200 м2 деревянные недорогие деревянные прямоугольные деревянные с камином деревянные готовые деревянные без подвала деревянные с 4 спальнями деревянные от 100 до 200 м2 деревянные в европейском стиле недорогие с мансардой недорогие без террасы недорогие для постоянного проживания недорогие с двухскатной крышей недорогие без бани недорогие с котельной недорогие с камином недорогие прямоугольные недорогие от 100 до 200 м2 из клееного бруса готовый проект из клееного бруса для постоянного проживания из клееного бруса с камином из клееного бруса прямоугольный из клееного бруса в европейском стиле из клееного бруса в скандинавском стиле из клееного бруса с двухскатной крышей из клееного бруса со свайным фундаментом из клееного бруса с перекрытиями по деревянным балкам из клееного бруса с кровлей из металлочерепицы из клееного бруса с котельной из клееного бруса без терассы из клееного бруса без подвала из клееного бруса без гаража одноэтажные из клееного бруса с мансардой из клееного бруса от 100 до 200 м2 Показать все категории Скрыть категории

Похожие проекты
Состав проекта
Входит в стоимость
Цена, руб. Сроки, дней
Комплект архитектурно-строительных чертежей (АС) Входит в стоимость Готов к отправке
Разрабатывается отдельно
Цена, руб. Сроки, дней
Адаптация фундамента (изменение типа фундамента) по запросу 14 рабочих дней
Дизайн интерьера (стоимость от 2200руб. за квад.метр площади) по запросу 30 рабочих дней
Внесение изменений в проект по запросу 20 рабочих дней
Фэншуй дома 20 000 ₽ 14 рабочих дней в корзину
Фэншуй участка 15 000 ₽ 14 рабочих дней в корзину
Фэншуй полная консультация дом+участок с выездом на объект 100 000 ₽ 30 рабочих дней в корзину
Опции проекта вы можете заказать в корзине при оформлении заказа
Отзывы покупателей
Рейтинг покупателей
0 / 5 5 5 1
На основе 1 оценок покупателей
0%
0%
0%
0%
0%
Отзывы о проекте D768
Отзыв о проекте D768
Чтобы оставить отзыв, пожалуйста авторизуйтесь.
Подбор строительной компании
Не знаете кому доверить строительство дома? Мы можем помочь! Подберем для вас из сотен наших партнеров несколько компаний с лучшем соотношением цена/качество под конкретно ваш запрос.
Подобрать