Главная Проекты домов Проект коттеджа из бруса с двускатной кровлей

D271 Проект коттеджа из бруса с двускатной кровлей

Сравнить проект В избранное
Проект коттеджа из бруса с двускатной кровлей / 1
Проект коттеджа из бруса с двускатной кровлей / 1
D271
172 м²
Подготовка проекта:
Готов к отправке
Стоимость проекта
Купить проект
Задайте вопросы по проекту нашему архитектору
8 (800) 200-28-83
Время работы: пн-вс: с 9:00 до 20:00
Задать вопрос по проекту

Технические характеристики
Общие
Материал стен
Клееный брус
Общая площадь
172 м²
Количество жилых комнат/спален
4
Этажи
1 этаж + мансарда
Гараж
Нет гаража
Подвал / цокольный этаж
Без подвала
Длина дома
12.0 м
Ширина дома
13.0 м
Кровля
Гибкая черепица
Толщина несущих наружных стен
200х180 мм
Внутренние не несущие перегородки
Каркасно-обшивные
Фундамент
Малозаглубленные ростверки
Терраса
Терраса открытая
Дополнительные
Камин
Есть
Сауна/баня внутри
Есть
Площадь гостиной
20.1 м²
Площадь кухни
16.6 м²
Количество санузлов
1
Котельная
Есть
Кабинет
Есть
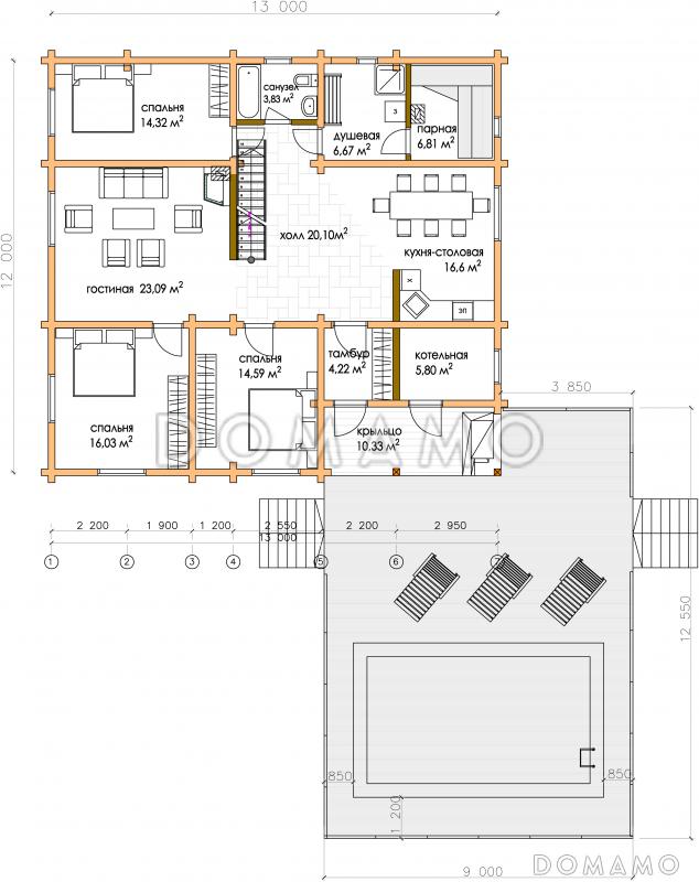
Планы помещений
Фасады
Описание проекта
Компания Domamo предлагает проект коттеджа из бруса с двускатной кровлей D271. Общая площадь - 172 м2, размер - 12.0х13.0 м. Фундамент - малозаглубленные ростверки, кровля - гибкая черепица, внешняя отделка - . Для заказа проекта или внесения изменений свяжитесь с нами с помощью форм обратной связи на сайте или по телефону +7 (831) 231-05-02.
Категории проекта: с мансардой деревянные для постоянного проживания из клееного бруса современные от 100 до 200 кв.м в европейском стиле с террасой готовые одноэтажные с мансардой одноэтажные с котельной с котельной одноэтажные деревянные с баней до 200 кв.м с двухскатной крышей загородные с камином с сауной квадратные Проекты деревянных домов с мансардой Проекты деревянных домов с террасой Проекты деревянных домов с баней Проекты домов из клееного бруса с мансардой Проекты одноэтажных домов из клееного бруса Проекты одноэтажных домов с террасой Типовые проекты загородных одноэтажных домов Проекты одноэтажных домов с баней без гаража одноэтажные без гаража с террасой и камином с кабинетом одноэтажные с 4 спальнями с мансардой и террасой полутораэтажные деревянные для круглогодичного проживания с 4 спальнями одноэтажные до 200 кв м недорогие с мансардой с баней с мансардой с котельной с мансардой с камином с мансардой с двухскатной крышей с мансардой современные с мансардой квадратные с мансардой готовые с мансардой для постоянного проживания с мансардой до 200 кв.м одноэтажные с мансардой из клееного бруса одноэтажные с мансардой для постоянного проживания одноэтажные с мансардой с большой кухней одноэтажные с мансардой современные современные без гаража современные с двухскатной крышей современные с террасой современные от 100 до 200 кв. м деревянные недорогие деревянные современные деревянные квадратные деревянные с камином деревянные без гаража деревянные готовые деревянные без подвала деревянные с 4 спальнями деревянные с большой кухней деревянные с баней деревянные от 100 до 200 м2 недорогие с мансардой недорогие без гаража недорогие с террасой недорогие для постоянного проживания недорогие с двухскатной крышей недорогие с баней недорогие с кабинетом недорогие с котельной недорогие с камином недорогие квадратные недорогие от 100 до 200 м2 из клееного бруса готовый проект из клееного бруса для постоянного проживания из клееного бруса с камином из клееного бруса квадратный из клееного бруса в скандинавском стиле из клееного бруса в современном стиле из клееного бруса с двухскатной крышей из клееного бруса с каркасно-обшивными перегородками из клееного бруса с кровлей из гибкой черепицы из клееного бруса с кабинетом из клееного бруса с котельной из клееного бруса с сауной/баней внутри из клееного бруса с открытой терассой из клееного бруса без подвала из клееного бруса без гаража одноэтажные из клееного бруса с мансардой из клееного бруса от 100 до 200 м2 Показать все категории Скрыть категории

Похожие проекты
Состав проекта
Входит в стоимость
Цена, руб. Сроки, дней
Комплект архитектурно-строительных чертежей (АС) Входит в стоимость Готов к отправке
Разрабатывается отдельно
Цена, руб. Сроки, дней
Адаптация фундамента (изменение типа фундамента) по запросу 14 рабочих дней
Дизайн интерьера (стоимость от 2200руб. за квад.метр площади) по запросу 30 рабочих дней
Внесение изменений в проект по запросу 20 рабочих дней
Фэншуй дома 20 000 ₽ 14 рабочих дней в корзину
Фэншуй участка 15 000 ₽ 14 рабочих дней в корзину
Фэншуй полная консультация дом+участок с выездом на объект 100 000 ₽ 30 рабочих дней в корзину
Опции проекта вы можете заказать в корзине при оформлении заказа
Отзывы покупателей
Рейтинг покупателей
0 / 5 5 5 1
На основе 1 оценок покупателей
0%
0%
0%
0%
0%
Отзывы о проекте D271
Отзыв о проекте D271
Чтобы оставить отзыв, пожалуйста авторизуйтесь.
Подбор строительной компании
Не знаете кому доверить строительство дома? Мы можем помочь! Подберем для вас из сотен наших партнеров несколько компаний с лучшем соотношением цена/качество под конкретно ваш запрос.
Подобрать