Главная Проекты домов Проект одноэтажного каркасного дома с двумя крытыми террасами и сауной

D5680 Проект одноэтажного каркасного дома с двумя крытыми террасами и сауной

Сравнить проект В избранное
Проект одноэтажного каркасного дома с двумя крытыми террасами и сауной / 1
Проект одноэтажного каркасного дома с двумя крытыми террасами и сауной / 2
Проект одноэтажного каркасного дома с двумя крытыми террасами и сауной / 1
Проект одноэтажного каркасного дома с двумя крытыми террасами и сауной / 2
D5680
167 м²
Подготовка проекта:
Готов к отправке
Стоимость проекта
Купить проект
Задайте вопросы по проекту нашему архитектору
8 (800) 200-28-83
Время работы: пн-вс: с 9:00 до 20:00
Задать вопрос по проекту

Технические характеристики
Общие
Материал стен
Каркас
Общая площадь
167 м²
Жилая площадь
109 м²
Площадь застройки
191 м²
Приведенная площадь
134.7 м²
Количество жилых комнат/спален
4
Этажи
1 этаж
Гараж
Нет гаража
Количество машин
нет
Подвал / цокольный этаж
Без подвала
Длина дома
17.2 м
Ширина дома
13.5 м
Кровля
Металлочерепица
Облицовка внешних стен
Сайдинг
Толщина несущих наружных стен
200 мм
Межэтажные перекрытия
По деревянным балкам
Внутренние не несущие перегородки
Каркасно-обшивные
Терраса
Терраса крытая
Дополнительные
Камин
Есть
Сауна/баня внутри
Есть
Площадь гостиной
18.7 м²
Площадь кухни
18.7 м²
Количество санузлов
2
Окно в ванной комнате
Есть
Котельная
Есть
Хозяйский санузел
Есть
Хозяйская гардеробная
Есть
Кладовая
1
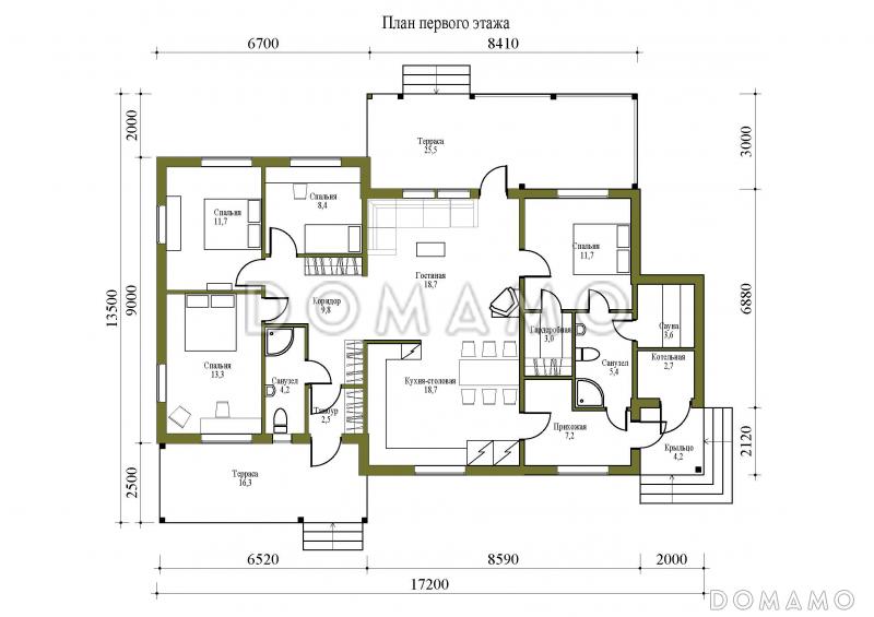
Планы помещений
Описание проекта
Компания Domamo предлагает проект одноэтажного каркасного дома с двумя крытыми террасами и сауной D5680. Общая площадь - 167 м2, размер - 17.2х13.5 м. Фундамент - , кровля - металлочерепица, внешняя отделка - сайдинг. Для заказа проекта или внесения изменений свяжитесь с нами с помощью форм обратной связи на сайте или по телефону +7 (831) 231-05-02.
Комплект проектов
Дом D5680 Проект одноэтажного каркасного дома с двумя крытыми террасами и сауной
34 000 ₽
21 000 ₽
Итого с учетом скидки:
Категории проекта: для постоянного проживания каркасные современные дачные дома гостевые от 100 до 200 кв.м в европейском стиле с террасой готовые одноэтажные одноэтажные с котельной с котельной с баней дачные с верандой до 200 кв.м с двухскатной крышей загородные гостевые с баней с камином с сауной с гардеробной в американском стиле Проекты одноэтажных каркасных домов Проекты каркасных домов с баней Проекты гостевых каркасных домов Проекты каркасных домов с террасой Проекты одноэтажных домов с террасой дачные одноэтажные Типовые проекты загородных одноэтажных домов Проекты одноэтажных домов с баней без гаража одноэтажные без гаража дачные с террасой с террасой и камином дачные с камином каркасные для постоянного проживания одноэтажные с 4 спальнями одноэтажные каркасные для круглогодичного проживания дачные каркасные с 4 спальнями одноэтажные до 200 кв м американские одноэтажные недорогие дачные с баней сложной формы одноэтажные современные одноэтажные с двухскатной крышей одноэтажные с камином одноэтажные гостевые одноэтажные европейские одноэтажные с 2 санузлами одноэтажные до 180 м2 без гаража европейские современные готовые с камином с котельной с двухскатной крышей с четырьмя спальнями современные без гаража современные с двухскатной крышей современные с террасой современные от 100 до 200 кв. м европейские для постоянного проживания европейские дачные европейские гостевые европейские недорогие европейские готовые европейские без подвала европейские с террасой европейские с сауной европейские с 2 санузлами европейские с котельной европейские с кладовой европейские с двухскатной крышей европейские с камином европейские 100-200 м2 недорогие без гаража недорогие с террасой недорогие для постоянного проживания недорогие гостевые недорогие дачные недорогие с двухскатной крышей недорогие с баней недорогие с котельной недорогие с камином недорогие сложной формы недорогие от 100 до 200 м2 из клееного бруса без гаража Показать все категории Скрыть категории

Похожие проекты
Состав проекта
Входит в стоимость
Цена, руб. Сроки, дней
Комплект архитектурно-строительных чертежей (АС) Входит в стоимость 20 рабочих дней
Готово к продаже
Цена, руб. Сроки, дней
Паспорт рабочего проекта 4 000 ₽ 3 рабочих дня в корзину
Дополнительная копия проекта формата А3 4 000 ₽ Готов к отправке в корзину
Электронная копия проекта (скан распечатанной версии) 4 000 ₽ 3 рабочих дня в корзину
Разрабатывается отдельно
Цена, руб. Сроки, дней
Адаптация фундамента (изменение типа фундамента) по запросу 14 рабочих дней
Дизайн интерьера (стоимость от 2200руб. за квад.метр площади) по запросу 30 рабочих дней
Внесение изменений в проект по запросу 20 рабочих дней
Зеркалирование проекта (для которого нет зеркальной версии) 8 000 ₽ 5 рабочих дней в корзину
Разработка Генплана участка, в масштабе 1:250 7 500 ₽ 5 рабочих дней в корзину
Фэншуй дома 20 000 ₽ 14 рабочих дней в корзину
Фэншуй участка 15 000 ₽ 14 рабочих дней в корзину
Фэншуй полная консультация дом+участок с выездом на объект 100 000 ₽ 30 рабочих дней в корзину
Опции проекта вы можете заказать в корзине при оформлении заказа
Предложения строителей Республика Башкортостан
Отзывы покупателей
Рейтинг покупателей
0 / 5 5 5 1
На основе 1 оценок покупателей
0%
0%
0%
0%
0%
Отзывы о проекте D5680
Отзыв о проекте D5680
Чтобы оставить отзыв, пожалуйста авторизуйтесь.
Подбор строительной компании
Не знаете кому доверить строительство дома? Мы можем помочь! Подберем для вас из сотен наших партнеров несколько компаний с лучшем соотношением цена/качество под конкретно ваш запрос.
Подобрать