Главная Проекты домов Проект коттеджа с высокой крышей

D5140 Проект коттеджа с высокой крышей

Сравнить проект В избранное
Проект коттеджа с высокой крышей / 1
Проект коттеджа с высокой крышей / 2
Проект коттеджа с высокой крышей / 3
Проект коттеджа с высокой крышей / 1
Проект коттеджа с высокой крышей / 2
Проект коттеджа с высокой крышей / 3
D5140
381/467 м²
Подготовка проекта:
Готов к отправке
Стоимость проекта
Купить проект
Задайте вопросы по проекту нашему архитектору
8 (800) 200-28-83
Время работы: пн-вс: с 9:00 до 20:00
Задать вопрос по проекту

Технические характеристики
Общие
Материал стен
Кирпич
Общая площадь
381/467 м²
Жилая площадь
158.7 м²
Площадь застройки
186 м²
Приведенная площадь
347.5 м²
Количество жилых комнат/спален
4
Этажи
2 этажа + мансарда
Гараж
Встроенный гараж
Количество машин
1
Подвал / цокольный этаж
Без подвала
Длина дома
17.38 м
Ширина дома
11.5 м
Кровля
Гибкая черепица
Облицовка внешних стен
Мокрая штукатурка
,
Облицовочный кирпич
Толщина несущих наружных стен
640 мм
Межэтажные перекрытия
Монолитные
Внутренние не несущие перегородки
Кирпичные
Фундамент
Монолитная ж/бетонная плита
Терраса
Терраса крытая
Дополнительные
Окна
Панорамные окна
Камин
Есть
Сауна/баня внутри
Нет
Площадь гостиной
33.6 м²
Площадь кухни
20.7 м²
Количество санузлов
4
Окно в ванной комнате
Есть
Бильярдная
Есть
Кладовая
2
Балкон / лоджия
Балкон
Планы помещений
Фасады
Описание проекта

Кирпичный двухэтажный коттедж с мансардой подойдет для семьи из 4-5 человек. Здание в стиле европейской усадьбы украшает высокая крыша с окнами оригинальной формы и полукруглый выступ на первом этаже с балконом над ним.

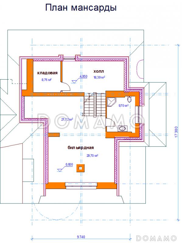
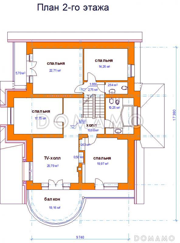
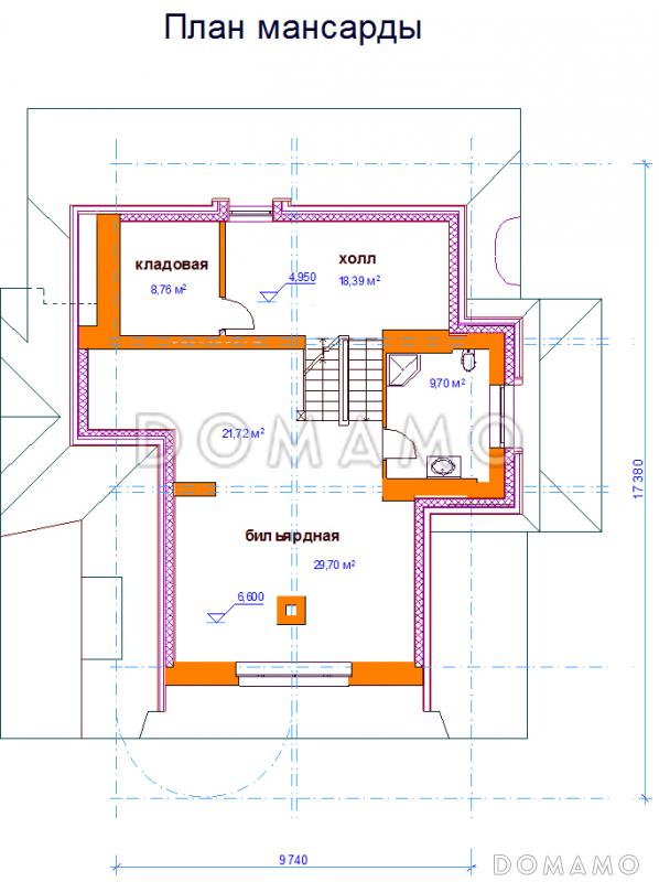
Первый этаж делится холлом на две части. В одной размещен гараж с подсобным помещением. Пространство, расположенное чуть выше, занимает гостиная с панорамным обзором и кухня-столовая площадью 20 кв.м. Второй этаж также является разноуровневым. Здесь находятся 4 спальни и комната отдыха с выходом на балкон. Мансарда включает в себя кладовую и бильярдную. Санузлы имеются на каждом этаже.

Преимущества и особенности

  • нестандартный внешний вид дома выделит коттедж на фоне построек соседей,

  • разнородная этажность позволяет сделать комнаты более изолированными друг от друга,

  • гостиная с панорамными окнами дополнена камином, что делает ее еще уютнее.

Категории проекта: с мансардой с гаражом с мансардой и гаражом для постоянного проживания кирпич в английском стиле в скандинавском стиле от 300 до 400 кв.м кирпичные дома хай-тек кирпичные дома фахверк классические кирпичные дома кирпичные дома с мансардой дома из кирпича с гаражом в европейском стиле кирпичные европейские дома с эркером кирпичные дома с эркером с террасой из кирпича с террасой из бруса в стиле замка готовые в финском стиле загородные из кирпича двухэтажные из кирпича двухэтажные кирпичные с гаражом двухэтажные из кирпича с мансардой двухэтажные двухэтажные с гаражом двухэтажные с мансардой загородные с мансардной крышей с бильярдной с камином с балконом со встроенным гаражом с панорамным остеклением с эркером и мансардой двухэтажные с эркером Проекты двухэтажных домов с террасой Проекты двухэтажных домов с верандой с террасой и камином облицованные кирпичом с гаражом под одной крышей с мансардой и террасой с гаражом и террасой двухэтажные с террасой и гаражом с 4 спальнями с панорамными окнами и террасой с балконом и террасой с эркером и гаражом сложной формы двухэтажные с камином двухэтажные с панорамными окнами двухэтажные с 4 спальнями двухэтажные с балконом двухэтажные с балконом и террасой с мансардой с камином с мансардой скандинавские с мансардой в европейском стиле с мансардой с панорамными окнами с мансардой с балконом с мансардой сложной формы с мансардой готовые с мансардой для постоянного проживания с мансардой элитные скандинавские для постоянного проживания скандинавские с гаражом скандинавские с панорамными окнами скандинавские с террасой скандинавские с большой кухней скандинавские готовые скандинавские с балконом скандинавские большие скандинавские с камином европейские для постоянного проживания европейские готовые европейские с гаражом европейские без подвала европейские с террасой европейские с изолированной кухней европейские с кладовой европейские с балконом европейские с панорамными окнами европейские с вальмовой крышей европейские с мансардной крышей европейские с камином европейские 300-400 м2 недорогие с панорамными окнами из клееного бруса без гаража Показать все категории Скрыть категории

Похожие проекты
Состав проекта
Входит в стоимость
Цена, руб. Сроки, дней
Комплект архитектурно-строительных чертежей (АС) Входит в стоимость Готов к отправке
Разрабатывается отдельно
Цена, руб. Сроки, дней
Адаптация фундамента (изменение типа фундамента) по запросу 14 рабочих дней
Дизайн интерьера (стоимость от 2200руб. за квад.метр площади) по запросу 30 рабочих дней
Внесение изменений в проект по запросу 20 рабочих дней
Фэншуй дома 20 000 ₽ 14 рабочих дней в корзину
Фэншуй участка 15 000 ₽ 14 рабочих дней в корзину
Фэншуй полная консультация дом+участок с выездом на объект 100 000 ₽ 30 рабочих дней в корзину
Опции проекта вы можете заказать в корзине при оформлении заказа
Отзывы покупателей
Рейтинг покупателей
0 / 5 5 5 1
На основе 1 оценок покупателей
0%
0%
0%
0%
0%
Отзывы о проекте D5140
Отзыв о проекте D5140
Чтобы оставить отзыв, пожалуйста авторизуйтесь.
Подбор строительной компании
Не знаете кому доверить строительство дома? Мы можем помочь! Подберем для вас из сотен наших партнеров несколько компаний с лучшем соотношением цена/качество под конкретно ваш запрос.
Подобрать