Главная Проекты домов Проект дома из кирпича с облицовкой стен в стиле фахверк

D556 Проект дома из кирпича с облицовкой стен в стиле фахверк

Сравнить проект В избранное
Технические характеристики
Общие
Материал стен
Кирпич
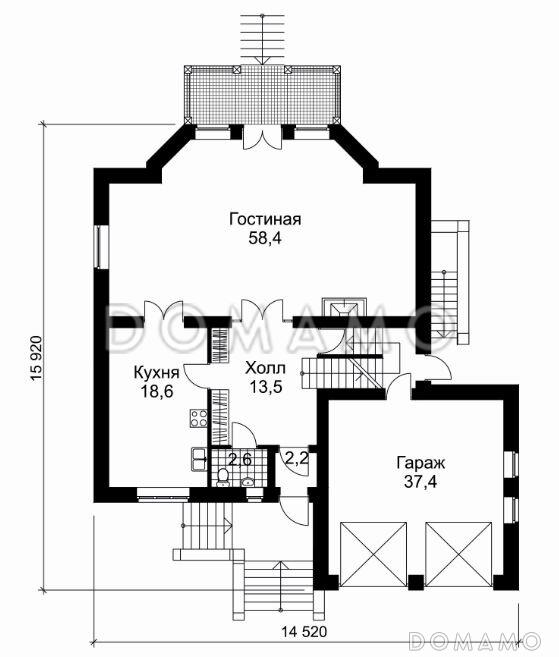
Общая площадь
353 м²
Жилая площадь
147.8 м²
Площадь застройки
212.4 м²
Приведенная площадь
348.47 м²
Количество жилых комнат/спален
4
Этажи
2 этажа
Гараж
Встроенный гараж
Количество машин
2
Подвал / цокольный этаж
С окнами
Длина дома
15.9 м
Ширина дома
14.5 м
Кровля
Гибкая черепица
Облицовка внешних стен
Облицовочный кирпич
Толщина несущих наружных стен
510 мм
Межэтажные перекрытия
Сборные
Внутренние не несущие перегородки
Каркасно-обшивные
,
Кирпичные
Фундамент
Ленточный заглубленный из ФБС
Терраса
Без террасы
Дополнительные
Окна
Окна до пола
Мансардные окна
Есть
Камин
Есть
Сауна/баня внутри
Есть
Бассейн
Есть
Площадь гостиной
58.4 м²
Площадь кухни
18.6 м²
Количество санузлов
6
Окно в ванной комнате
Есть
Котельная
Есть
Постирочная
Есть
Хозяйский санузел
Есть
Хозяйская гардеробная
Есть
Кладовая
4
Балкон / лоджия
Балкон
Планы помещений
Фасады
Описание проекта

Оригинальный двухэтажный особняк с просторной гостиной и четырьмя спальнями подойдет для комфортного размещения семьи из четырех-пяти человек. Здание облицовано кирпичом и декорировано фахверковыми элементами: деревянными балками и ограждениями балкона.

На цокольном этаже оборудована полноценная рекреационная зона, а также запланированы подсобные помещения. Центральным элементом первого этажа является габаритная гостиная с камином и выходом на террасу. Гараж расположен на пол-этажа ниже. Над ним архитектор предусмотрел приватную зону, состоящую из спальни, ванной и гардеробной. На самом верхе располагаются еще три спальни.

Преимущества и особенности:

  • в трех спальнях предусмотрены выходы на балконы — всегда можно будет подышать свежим воздухом, не выходя из дома,

  • в гараже установлено два выезда,

  • бассейн и сауна понравятся любителям заниматься спортом, не тратя время на поездку в фитнес-клуб.

Категории проекта: с гаражом для постоянного проживания кирпич от 300 до 400 кв.м дома из кирпича с гаражом в европейском стиле кирпичные европейские дома с эркером кирпичные дома с эркером готовые с цокольным этажом загородные из кирпича двухэтажные из кирпича двухэтажные кирпичные с гаражом двухэтажные двухэтажные с гаражом кирпичные с цокольным этажом кирпичные с котельной с котельной с баней с бассейном загородные с баней и гаражом с баней и бассейном с камином с сауной с гардеробной с балконом со встроенным гаражом кирпичные с баней кирпичные с бассейном двухэтажные с цокольным этажом двухэтажные с эркером облицованные кирпичом с гаражом под одной крышей с гаражом на 2 машины с 4 спальнями двухэтажные с сауной с цокольным этажом и гаражом недорогие с бассейном и гаражом с эркером и гаражом сложной формы двухэтажные с камином двухэтажные с 4 спальнями двухэтажные с балконом двухэтажные с бассейном двухэтажные эконом класса европейские для постоянного проживания европейские недорогие европейские готовые европейские с гаражом европейские с гаражом на 2 машины европейские с подвалом европейские без террасы европейские с сауной европейские с изолированной кухней европейские с котельной европейские с прачечной европейские с кладовой европейские с балконом европейские с мансардными окнами европейские с окнами в пол европейские с камином европейские с бассейном европейские 300-400 м2 недорогие двухэтажные недорогие кирпичные недорогие с гаражом недорогие без террасы недорогие для постоянного проживания недорогие с окнами до пола недорогие с большой гостиной недорогие с изолированной кухней недорогие с баней недорогие с котельной недорогие с мансардными окнами недорогие с балконом недорогие с камином недорогие сложной формы недорогие от 300 до 400 м2 из клееного бруса без гаража Показать все категории Скрыть категории

Похожие проекты
Состав проекта
Входит в стоимость
Цена, руб. Сроки, дней
Комплект архитектурно-строительных чертежей (АС) Входит в стоимость 7 рабочих дней
Готово к продаже
Цена, руб. Сроки, дней
Паспорт рабочего проекта 2 500 ₽ Готов к отправке в корзину
Инженерные разделы: ВК + ОВ + ЭО 13 400 ₽ Готов к отправке в корзину
Разрабатывается отдельно
Цена, руб. Сроки, дней
Адаптация фундамента (изменение типа фундамента) по запросу 14 рабочих дней
Дизайн интерьера (стоимость от 2200руб. за квад.метр площади) по запросу 30 рабочих дней
Внесение изменений в проект по запросу 20 рабочих дней
Фэншуй дома 20 000 ₽ 14 рабочих дней в корзину
Фэншуй участка 15 000 ₽ 14 рабочих дней в корзину
Фэншуй полная консультация дом+участок с выездом на объект 100 000 ₽ 30 рабочих дней в корзину
Опции проекта вы можете заказать в корзине при оформлении заказа
Предложения строителей Выбрать регион
Минимальная
12 196 450 ₽
Стандарт
14 984 210 ₽
Под чистовую отделку
19 514 320 ₽
Показать подробные комплектации
Минимальная
28 435 152 ₽
Стандарт
33 453 120 ₽
Под чистовую отделку
43 489 056 ₽
Показать подробные комплектации
Минимальная
13 715 779 ₽
Стандарт
20 145 050 ₽
Под чистовую отделку
31 717 739 ₽
Показать подробные комплектации
Минимальная
12 566 873 ₽
Стандарт
14 429 794 ₽
Под чистовую отделку
18 476 158 ₽
Показать подробные комплектации
Минимальная
5 858 164 ₽
Стандарт
7 254 413 ₽
Под чистовую отделку
8 731 577 ₽
Показать подробные комплектации
Подбор строительной компании
Не знаете кому доверить строительство дома? Мы можем помочь! Подберем для вас из сотен наших партнеров несколько компаний с лучшем соотношением цена/качество под конкретно ваш запрос.
Подобрать
Посмотреть еще 20 компаний Свернуть
Отзывы покупателей
Рейтинг покупателей
0 / 5 5 5 1
На основе 1 оценок покупателей
0%
0%
0%
0%
0%
Отзывы о проекте D556
Отзыв о проекте D556
Чтобы оставить отзыв, пожалуйста авторизуйтесь.
Подбор строительной компании
Не знаете кому доверить строительство дома? Мы можем помочь! Подберем для вас из сотен наших партнеров несколько компаний с лучшем соотношением цена/качество под конкретно ваш запрос.
Подобрать