Главная Проекты домов Проект одноэтажного дома из SIP панелей с гаражом и открытой террасой

D4506 Проект одноэтажного дома из SIP панелей с гаражом и открытой террасой

Сравнить проект В избранное
Проект одноэтажного дома из SIP панелей с гаражом и открытой террасой / 1
Проект одноэтажного дома из SIP панелей с гаражом и открытой террасой / 2
Проект одноэтажного дома из SIP панелей с гаражом и открытой террасой / 3
Проект одноэтажного дома из SIP панелей с гаражом и открытой террасой / 1
Проект одноэтажного дома из SIP панелей с гаражом и открытой террасой / 2
Проект одноэтажного дома из SIP панелей с гаражом и открытой террасой / 3
D4506
189 м²
Подготовка проекта:
25 рабочих дней
Стоимость проекта
Купить проект
Задайте вопросы по проекту нашему архитектору
8 (800) 200-28-83
Время работы: пн-вс: с 9:00 до 20:00
Задать вопрос по проекту

Технические характеристики
Общие
Материал стен
SIP
Общая площадь
189 м²
Площадь застройки
267.87 м²
Приведенная площадь
188.81 м²
Количество жилых комнат/спален
4
Этажи
1 этаж
Гараж
Встроенный гараж
Количество машин
1
Подвал / цокольный этаж
Без подвала
Длина дома
18.45 м
Ширина дома
16.93 м
Высота в коньке
7.13 м
Кровля
Металлочерепица
Облицовка внешних стен
Облицовочный кирпич
Толщина несущих наружных стен
520 мм
Межэтажные перекрытия
Сборные
Внутренние не несущие перегородки
Газобетонные
Фундамент
Ленточный заглубленный из ФБС
Терраса
Терраса открытая
Дополнительные
Сауна/баня внутри
Нет
Площадь гостиной
20 м²
Площадь кухни
14.5 м²
Количество санузлов
2
Котельная
Есть
Постирочная
Есть
Хозяйский санузел
Есть
Хозяйская гардеробная
Есть
Кладовая
3
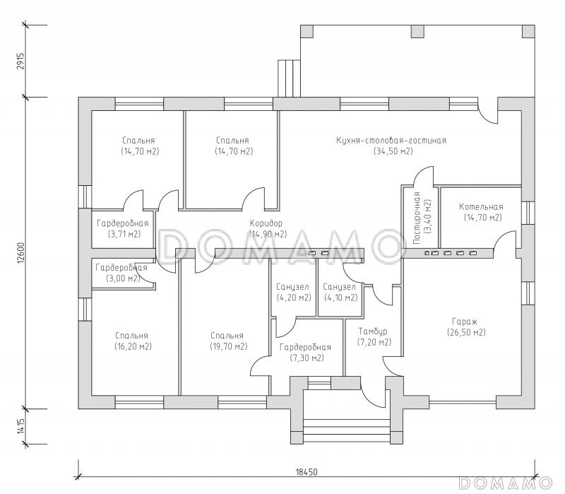
Планы помещений
Описание проекта
Компания Domamo предлагает проект одноэтажного дома из sip панелей с гаражом и открытой террасой D4506. Общая площадь - 189 м2, размер - 18.45х16.93 м. Фундамент - ленточный заглубленный из фбс, кровля - металлочерепица, внешняя отделка - облицовочный кирпич. Для заказа проекта или внесения изменений свяжитесь с нами с помощью форм обратной связи на сайте или по телефону +7 (831) 231-05-02.
Категории проекта: с гаражом для постоянного проживания из сип панелей в классическом стиле по технологии Velox от 100 до 200 кв.м с террасой готовые одноэтажные одноэтажные с гаражом одноэтажные с котельной с котельной из сип панелей с гаражом до 200 кв.м загородные с четырехскатной крышей с гардеробной прямоугольные со встроенным гаражом Проекты одноэтажных домов из сип панелей Проекты одноэтажных домов с террасой Типовые проекты загородных одноэтажных домов облицованные кирпичом с гаражом под одной крышей одноэтажные с 4 спальнями одноэтажные с гаражом и террасой с гаражом и террасой с 4 спальнями одноэтажные до 200 кв м недорогие одноэтажные в классическом стиле одноэтажные с четырехскатной крышей одноэтажные прямоугольные одноэтажные бюджетные одноэтажные с 2 санузлами классические из сип-панелей классические для постоянного проживания классические с гаражом классические с 4 спальнями классические с террасой классические готовые классические недорогие классические с котельной классические без подвала классические с 2 санузлами классические с прачечной классические прямоугольные классические с четырехскатной крышей недорогие с гаражом недорогие с террасой недорогие для постоянного проживания недорогие с четырехскатной крышей недорогие без бани недорогие с котельной недорогие прямоугольные недорогие от 100 до 200 м2 из клееного бруса без гаража Показать все категории Скрыть категории

Похожие проекты
Состав проекта
Входит в стоимость
Цена, руб. Сроки, дней
Комплект архитектурно-строительных чертежей (АС) Входит в стоимость 25 рабочих дней
Готово к продаже
Цена, руб. Сроки, дней
Дополнительная копия проекта формата А3 4 000 ₽ 3 рабочих дня в корзину
Электронная копия проекта (скан распечатанной версии) 4 000 ₽ 3 рабочих дня в корзину
3D модель дома 20 000 ₽ 3 рабочих дня в корзину
Разрабатывается отдельно
Цена, руб. Сроки, дней
Адаптация фундамента (изменение типа фундамента) по запросу 14 рабочих дней
Дизайн интерьера (стоимость от 2200руб. за квад.метр площади) по запросу 30 рабочих дней
Внесение изменений в проект по запросу 20 рабочих дней
Разработка Генплана участка, в масштабе 1:250 7 000 ₽ 15 рабочих дней в корзину
Фэншуй дома 20 000 ₽ 14 рабочих дней в корзину
Фэншуй участка 15 000 ₽ 14 рабочих дней в корзину
Фэншуй полная консультация дом+участок с выездом на объект 100 000 ₽ 30 рабочих дней в корзину
Опции проекта вы можете заказать в корзине при оформлении заказа
Отзывы покупателей
Рейтинг покупателей
0 / 5 5 5 1
На основе 1 оценок покупателей
0%
0%
0%
0%
0%
Отзывы о проекте D4506
Отзыв о проекте D4506
Чтобы оставить отзыв, пожалуйста авторизуйтесь.
Подбор строительной компании
Не знаете кому доверить строительство дома? Мы можем помочь! Подберем для вас из сотен наших партнеров несколько компаний с лучшем соотношением цена/качество под конкретно ваш запрос.
Подобрать