Главная Проекты домов Проект яркого классического дома из СИП панелей с мансардой, террасой, гаражом и навесом для автомобиля

D3632 Проект яркого классического дома из СИП панелей с мансардой, террасой, гаражом и навесом для автомобиля

Сравнить проект В избранное
Проект яркого классического дома из СИП панелей с мансардой, террасой, гаражом и навесом для автомобиля / 1
Проект яркого классического дома из СИП панелей с мансардой, террасой, гаражом и навесом для автомобиля / 2
Проект яркого классического дома из СИП панелей с мансардой, террасой, гаражом и навесом для автомобиля / 1
Проект яркого классического дома из СИП панелей с мансардой, террасой, гаражом и навесом для автомобиля / 2
D3632
210 м²
Подготовка проекта:
25 рабочих дней
Стоимость проекта
Купить проект
Задайте вопросы по проекту нашему архитектору
8 (800) 200-28-83
Время работы: пн-вс: с 9:00 до 20:00
Задать вопрос по проекту

Технические характеристики
Общие
Материал стен
SIP
Общая площадь
210 м²
Площадь застройки
155.73 м²
Приведенная площадь
208.931 м²
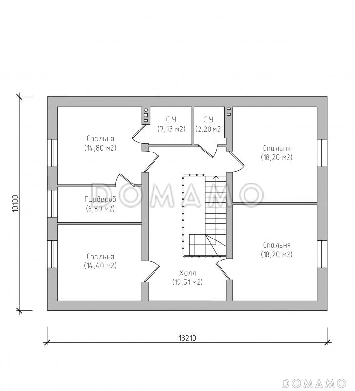
Количество жилых комнат/спален
5
Этажи
1 этаж + мансарда
Гараж
Встроенный гараж
Количество машин
2
Подвал / цокольный этаж
Без подвала
Длина дома
15.5 м
Ширина дома
13.21 м
Высота в коньке
9.35 м
Кровля
Металлочерепица
Облицовка внешних стен
Деревянная вагонка
,
Облицовочный кирпич
Толщина несущих наружных стен
520 мм
Межэтажные перекрытия
Сборные
Внутренние не несущие перегородки
Газобетонные
Фундамент
Ленточный заглубленный из ФБС
Терраса
Терраса крытая
Дополнительные
Сауна/баня внутри
Нет
Площадь гостиной
20 м²
Площадь кухни
16.8 м²
Количество санузлов
3
Хозяйский санузел
Есть
Хозяйская гардеробная
Есть
Кладовая
2
Планы помещений
Описание проекта
Компания Domamo предлагает проект яркого классического дома из сип панелей с мансардой, террасой, гаражом и навесом для автомобиля D3632. Общая площадь - 210 м2, размер - 15.5х13.21 м. Фундамент - ленточный заглубленный из фбс, кровля - металлочерепица, внешняя отделка - облицовочный кирпич деревянная вагонка. Для заказа проекта или внесения изменений свяжитесь с нами с помощью форм обратной связи на сайте или по телефону +7 (831) 231-05-02.
Категории проекта: с мансардой с гаражом с мансардой и гаражом для постоянного проживания из сип панелей в классическом стиле по технологии Velox от 200 до 300 кв.м с террасой готовые одноэтажные с гаражом одноэтажные с мансардой из сип панелей с гаражом из сип панелей с мансардой одноэтажные с гаражом и мансардой с двухскатной крышей загородные с гардеробной прямоугольные со встроенным гаражом Проекты одноэтажных домов из сип панелей Проекты одноэтажных домов с террасой Типовые проекты загородных одноэтажных домов облицованные кирпичом с гаражом под одной крышей одноэтажные с гаражом и террасой с гаражом на 2 машины с мансардой и террасой полутораэтажные с гаражом и террасой недорогие с 5 спальнями от 200 до 250 м с мансардой с двухскатной крышей с мансардой в классическом стиле с мансардой прямоугольные с мансардой готовые с мансардой для постоянного проживания одноэтажные с мансардой из SIP-панелей одноэтажные с мансардой для постоянного проживания одноэтажные с мансардой с большой кухней одноэтажные с мансардой классические классические из сип-панелей классические для постоянного проживания классические с гаражом классические с гаражом на 2 машины классические с террасой классические готовые классические с большой кухней классические без подвала классические прямоугольные классические с двухскатной крышей недорогие с мансардой недорогие с гаражом недорогие с террасой недорогие для постоянного проживания недорогие с двухскатной крышей недорогие без бани недорогие прямоугольные недорогие от 200 до 300 м2 из клееного бруса без гаража Показать все категории Скрыть категории

Похожие проекты
Состав проекта
Входит в стоимость
Цена, руб. Сроки, дней
Комплект архитектурно-строительных чертежей (АС) Входит в стоимость 25 рабочих дней
Готово к продаже
Цена, руб. Сроки, дней
Дополнительная копия проекта формата А3 4 000 ₽ 3 рабочих дня в корзину
Электронная копия проекта (скан распечатанной версии) 4 000 ₽ 3 рабочих дня в корзину
3D модель дома 20 000 ₽ 3 рабочих дня в корзину
Разрабатывается отдельно
Цена, руб. Сроки, дней
Адаптация фундамента (изменение типа фундамента) по запросу 14 рабочих дней
Дизайн интерьера (стоимость от 2200руб. за квад.метр площади) по запросу 30 рабочих дней
Внесение изменений в проект по запросу 20 рабочих дней
Разработка Генплана участка, в масштабе 1:250 7 000 ₽ 15 рабочих дней в корзину
Фэншуй дома 20 000 ₽ 14 рабочих дней в корзину
Фэншуй участка 15 000 ₽ 14 рабочих дней в корзину
Фэншуй полная консультация дом+участок с выездом на объект 100 000 ₽ 30 рабочих дней в корзину
Опции проекта вы можете заказать в корзине при оформлении заказа
Отзывы покупателей
Рейтинг покупателей
0 / 5 5 5 1
На основе 1 оценок покупателей
0%
0%
0%
0%
0%
Отзывы о проекте D3632
Отзыв о проекте D3632
Чтобы оставить отзыв, пожалуйста авторизуйтесь.
Подбор строительной компании
Не знаете кому доверить строительство дома? Мы можем помочь! Подберем для вас из сотен наших партнеров несколько компаний с лучшем соотношением цена/качество под конкретно ваш запрос.
Подобрать