Главная Проекты домов Проект просторного современного двухэтажного дома из газобетона с плоской крышей, с пятью комнатами, гаражом и террасой на втором этаже

D3061 Проект просторного современного двухэтажного дома из газобетона с плоской крышей, с пятью комнатами, гаражом и террасой на втором этаже

Сравнить проект В избранное
Технические характеристики
Общие
Материал стен
Газобетон
Общая площадь
300 м²
Площадь застройки
328.7 м²
Приведенная площадь
305.02 м²
Количество жилых комнат/спален
5
Этажи
2 этажа
Гараж
Встроенный гараж
Количество машин
2
Подвал / цокольный этаж
Без окон
Длина дома
15.82 м
Ширина дома
17.02 м
Высота в коньке
7.93 м
Кровля
Рулонная кровля
Облицовка внешних стен
Деревянная вагонка
,
Мокрая штукатурка
Толщина несущих наружных стен
380 мм
Межэтажные перекрытия
Монолитные
Внутренние не несущие перегородки
Газобетонные
Фундамент
Ленточный заглубленный из ФБС
Терраса
Терраса открытая
,
Терраса крытая
Дополнительные
Окна
Окна до пола
,
Панорамные окна
Камин
Есть
Площадь гостиной
44.7 м²
Площадь кухни
13.86 м²
Количество санузлов
3
Окно в ванной комнате
Есть
Котельная
Есть
Кабинет
Есть
Хозяйский санузел
Есть
Хозяйская гардеробная
Есть
Кладовая
3
Длина участка
25.82 м
Ширина участка
25.02 м
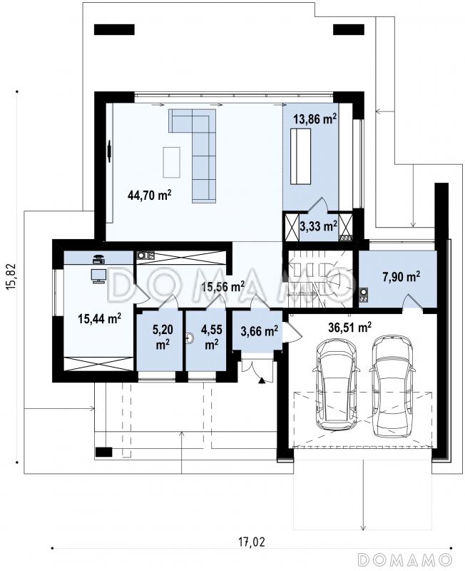
Планы помещений
Описание проекта
Компания Domamo предлагает проект просторного современного двухэтажного дома из газобетона с плоской крышей, с пятью комнатами, гаражом и террасой на втором этаже D3061. Общая площадь - 300 м2, размер - 15.82х17.02 м. Фундамент - ленточный заглубленный из фбс, кровля - рулонная кровля, внешняя отделка - деревянная вагонка мокрая штукатурка. Для заказа проекта или внесения изменений свяжитесь с нами с помощью форм обратной связи на сайте или по телефону +7 (831) 231-05-02.
Категории проекта: с гаражом для постоянного проживания пенобетон современные от 200 до 300 кв.м от 300 до 400 кв.м в европейском стиле с террасой из газобетона с цокольным этажом из газобетона с цокольным этажом и гаражом из газобетона готовые из газобетона с гаражом с цокольным этажом двухэтажные двухэтажные с гаражом с подвалом с котельной двухэтажные из газобетона из газосиликатных блоков двухэтажные из пеноблоков из пеноблоков с гаражом с плоской крышей загородные из керамзитобетонных блоков с камином с гардеробной со встроенным гаражом с панорамным остеклением из газобетона с террасой из блоков двухэтажные из блоков из блоков с гаражом из пеноблоков с террасой загородные из газобетона Проекты двухэтажных домов с террасой Проекты двухэтажных домов с верандой Проекты двухэтажных домов с подвалом с террасой и камином с кабинетом с гаражом под одной крышей с гаражом на 2 машины с гаражом и террасой двухэтажные с террасой и гаражом с панорамными окнами и террасой с цокольным этажом и гаражом современный с плоской крышей из пеноблоков загородные с 5 спальнями сложной формы двухэтажные с камином двухэтажные с панорамными окнами двухэтажные в современном стиле из газобетона от 200 до 300 кв.м из газобетона от 300 до 400 кв.м из газобетона с плоской крышей из газобетона современные из газобетона с панорамными окнами из газобетона с котельной из газобетона готовые из газобетона с камином из газобетона с кабинетом из газобетона для постоянного проживания двухэтажные из газобетона с гаражом двухэтажные из газобетона с террасой двухэтажные из газобетона с камином двухэтажные из газобетона с кабинетом двухэтажные из газобетона с котельной двухэтажные из газобетона современные двухэтажные из газобетона с плоской крышей двухэтажные из газобетона большие двухэтажные из газобетона с подвалом двухэтажные из газобетона с большой гостиной современные с гаражом современные с панорамными окнами современные с окнами в пол современные с террасой современные большие современные с подвалом европейские с плоской крышей из пеноблоков в современном стиле из пеноблоков с плоской крышей из пеноблоков с окнами до пола из пеноблоков с панорамными окнами из пеноблоков нестандартные из пеноблоков для постоянного проживания из пеноблоков готовые из пеноблоков с камином из пеноблоков от 200 до 300 м2 из пеноблоков от 300 до 400 м2 из пеноблоков большие из пеноблоков с большой гостиной недорогие с панорамными окнами из клееного бруса без гаража с плоской крышей двухэтажные с плоской крышей и большой террасой с плоской крышей и большой гостиной с плоской крышей готовые с плоской крышей для постоянного проживания с плоской крышей и окном в ванной комнате с плоской крышей и камином с плоской крышей сложной формы с плоской крышей и окнами в пол в гостиной с плоской крышей и окнами в пол на кухне с плоской крышей и окнами до пола с плоской крышей и панорамными окнами с плоской крышей и монолитными перекрытиями с плоской крышей и облицовкой деревянной вагонкой с плоской крышей и облицовкой мокрой штукатуркой с плоской крышей и хозяйской гардеробной с плоской крышей и хозяйским санузлом с плоской крышей и кабинетом с плоской крышей и котельной Показать все категории Скрыть категории

Похожие проекты
Состав проекта
Входит в стоимость
Цена, руб. Сроки, дней
Комплект архитектурно-строительных чертежей (АС) Входит в стоимость Готов к отправке
Готово к продаже
Цена, руб. Сроки, дней
Паспорт рабочего проекта 8 000 ₽ 5 рабочих дней в корзину
Инженерные разделы: ВК + ОВ + ЭО 44 150 ₽ Готов к отправке в корзину
Дополнительная копия проекта формата А3 6 500 ₽ 5 рабочих дней в корзину
Электронная копия проекта (скан распечатанной версии) 4 000 ₽ 3 рабочих дня в корзину
Разрабатывается отдельно
Цена, руб. Сроки, дней
Адаптация фундамента (изменение типа фундамента) по запросу 14 рабочих дней
Дизайн интерьера (стоимость от 2200руб. за квад.метр площади) по запросу 30 рабочих дней
Внесение изменений в проект по запросу 20 рабочих дней
Разработка Генплана участка, в масштабе 1:250 7 500 ₽ 15 рабочих дней в корзину
Фэншуй дома 20 000 ₽ 14 рабочих дней в корзину
Фэншуй участка 15 000 ₽ 14 рабочих дней в корзину
Фэншуй полная консультация дом+участок с выездом на объект 100 000 ₽ 30 рабочих дней в корзину
Опции проекта вы можете заказать в корзине при оформлении заказа
Предложения строителей Выбрать регион
Минимальная
10 370 680 ₽
Стандарт
12 810 840 ₽
Под чистовую отделку
16 776 099 ₽
Показать подробные комплектации
Минимальная
25 408 166 ₽
Стандарт
29 891 960 ₽
Под чистовую отделку
38 859 548 ₽
Показать подробные комплектации
Минимальная
12 103 193 ₽
Стандарт
17 959 577 ₽
Под чистовую отделку
28 501 068 ₽
Показать подробные комплектации
Минимальная
10 675 700 ₽
Стандарт
12 810 840 ₽
Под чистовую отделку
14 335 940 ₽
Показать подробные комплектации
Минимальная
9 844 825 ₽
Стандарт
14 448 797 ₽
Под чистовую отделку
15 458 413 ₽
Показать подробные комплектации
Минимальная
8 113 532 ₽
Стандарт
9 272 608 ₽
Под чистовую отделку
12 170 298 ₽
Показать подробные комплектации
Подбор строительной компании
Не знаете кому доверить строительство дома? Мы можем помочь! Подберем для вас из сотен наших партнеров несколько компаний с лучшем соотношением цена/качество под конкретно ваш запрос.
Подобрать
Посмотреть еще 32 компании Свернуть
Отзывы покупателей
Рейтинг покупателей
0 / 5 5 5 1
На основе 1 оценок покупателей
0%
0%
0%
0%
0%
Отзывы о проекте D3061
Отзыв о проекте D3061
Чтобы оставить отзыв, пожалуйста авторизуйтесь.
Подбор строительной компании
Не знаете кому доверить строительство дома? Мы можем помочь! Подберем для вас из сотен наших партнеров несколько компаний с лучшем соотношением цена/качество под конкретно ваш запрос.
Подобрать