Главная Проекты домов Проект современного двухэтажного дома из газобетона с четырьмя спальнями, кабинетом и гаражом

D4136 Проект современного двухэтажного дома из газобетона с четырьмя спальнями, кабинетом и гаражом

Сравнить проект В избранное
Технические характеристики
Общие
Материал стен
Газобетон
Общая площадь
280 м²
Площадь застройки
263.4 м²
Приведенная площадь
280.56 м²
Количество жилых комнат/спален
5
Этажи
2 этажа
Гараж
Пристроенный гараж
Количество машин
2
Подвал / цокольный этаж
Без подвала
Длина дома
13.21 м
Ширина дома
16.96 м
Высота в коньке
7.08 м
Кровля
Рулонная кровля
Облицовка внешних стен
Без облицовки
,
Мокрая штукатурка
Толщина несущих наружных стен
380 мм
Межэтажные перекрытия
Монолитные
Внутренние не несущие перегородки
Газобетонные
Фундамент
Ленточный заглубленный из ФБС
Терраса
Терраса открытая
,
Терраса крытая
Дополнительные
Камин
Есть
Сауна/баня внутри
Нет
Площадь гостиной
43.5 м²
Площадь кухни
11.8 м²
Количество санузлов
3
Окно в ванной комнате
Есть
Котельная
Есть
Кабинет
Есть
Хозяйский санузел
Есть
Кладовая
1
Длина участка
21.14 м
Ширина участка
22.78 м
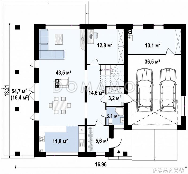
Планы помещений
Фасады
Описание проекта
Компания Domamo предлагает проект современного двухэтажного дома из газобетона с четырьмя спальнями, кабинетом и гаражом D4136. Общая площадь - 280 м2, размер - 13.21х16.96 м. Фундамент - ленточный заглубленный из фбс, кровля - рулонная кровля, внешняя отделка - без облицовки мокрая штукатурка. Для заказа проекта или внесения изменений свяжитесь с нами с помощью форм обратной связи на сайте или по телефону +7 (831) 231-05-02.
Категории проекта: с гаражом для постоянного проживания пенобетон современные от 200 до 300 кв.м в европейском стиле с террасой из газобетона готовые из газобетона с гаражом двухэтажные двухэтажные с гаражом с котельной двухэтажные из газобетона из газосиликатных блоков двухэтажные из пеноблоков из пеноблоков с гаражом с плоской крышей загородные из керамзитобетонных блоков с камином прямоугольные из газобетона с террасой из блоков двухэтажные из блоков из блоков с гаражом из пеноблоков с террасой загородные из газобетона Проекты двухэтажных домов с террасой Проекты двухэтажных домов с верандой с террасой и камином с кабинетом с гаражом под одной крышей с гаражом на 2 машины с гаражом и террасой двухэтажные с террасой и гаражом современный с плоской крышей из пеноблоков загородные с 5 спальнями двухэтажные с камином двухэтажные в современном стиле из газобетона от 200 до 300 кв.м из газобетона с плоской крышей из газобетона современные из газобетона с котельной из газобетона прямоугольные из газобетона готовые из газобетона с камином из газобетона с кабинетом из газобетона для постоянного проживания двухэтажные из газобетона с гаражом двухэтажные из газобетона с террасой двухэтажные из газобетона с камином двухэтажные из газобетона с кабинетом двухэтажные из газобетона с котельной двухэтажные из газобетона современные двухэтажные из газобетона с плоской крышей двухэтажные из газобетона без подвала двухэтажные из газобетона с большой гостиной современные с гаражом современные с террасой европейские с плоской крышей из пеноблоков в современном стиле из пеноблоков с плоской крышей из пеноблоков прямоугольные из пеноблоков для постоянного проживания из пеноблоков готовые из пеноблоков с камином из пеноблоков от 200 до 300 м2 из пеноблоков с большой гостиной из клееного бруса без гаража с плоской крышей двухэтажные с плоской крышей и большой террасой с плоской крышей и большой гостиной с плоской крышей готовые с плоской крышей для постоянного проживания с плоской крышей и окном в ванной комнате с плоской крышей и камином с плоской крышей прямоугольные с плоской крышей и окнами в пол в гостиной с плоской крышей и окнами в пол на кухне с плоской крышей и монолитными перекрытиями с плоской крышей и облицовкой мокрой штукатуркой с плоской крышей и хозяйским санузлом с плоской крышей и кабинетом с плоской крышей и котельной с плоской крышей без сауны Показать все категории Скрыть категории

Похожие проекты
Состав проекта
Входит в стоимость
Цена, руб. Сроки, дней
Комплект архитектурно-строительных чертежей (АС) Входит в стоимость Готов к отправке
Готово к продаже
Цена, руб. Сроки, дней
Паспорт рабочего проекта 8 000 ₽ 5 рабочих дней в корзину
Инженерные разделы: ВК + ОВ + ЭО 40 550 ₽ Готов к отправке в корзину
Дополнительная копия проекта формата А3 6 500 ₽ 5 рабочих дней в корзину
Электронная копия проекта (скан распечатанной версии) 4 000 ₽ 3 рабочих дня в корзину
Разрабатывается отдельно
Цена, руб. Сроки, дней
Адаптация фундамента (изменение типа фундамента) по запросу 14 рабочих дней
Дизайн интерьера (стоимость от 2200руб. за квад.метр площади) по запросу 30 рабочих дней
Внесение изменений в проект по запросу 20 рабочих дней
Разработка Генплана участка, в масштабе 1:250 7 500 ₽ 15 рабочих дней в корзину
Фэншуй дома 20 000 ₽ 14 рабочих дней в корзину
Фэншуй участка 15 000 ₽ 14 рабочих дней в корзину
Фэншуй полная консультация дом+участок с выездом на объект 100 000 ₽ 30 рабочих дней в корзину
Опции проекта вы можете заказать в корзине при оформлении заказа
Предложения строителей Выбрать регион
Минимальная
9 539 040 ₽
Стандарт
11 783 520 ₽
Под чистовую отделку
15 430 800 ₽
Показать подробные комплектации
Минимальная
23 370 648 ₽
Стандарт
27 494 880 ₽
Под чистовую отделку
35 743 344 ₽
Показать подробные комплектации
Минимальная
11 132 620 ₽
Стандарт
16 519 372 ₽
Под чистовую отделку
26 215 526 ₽
Показать подробные комплектации
Минимальная
9 819 600 ₽
Стандарт
11 783 520 ₽
Под чистовую отделку
13 186 320 ₽
Показать подробные комплектации
Минимальная
9 055 354 ₽
Стандарт
13 290 127 ₽
Под чистовую отделку
14 218 780 ₽
Показать подробные комплектации
Минимальная
7 462 896 ₽
Стандарт
8 529 024 ₽
Под чистовую отделку
11 194 344 ₽
Показать подробные комплектации
Подбор строительной компании
Не знаете кому доверить строительство дома? Мы можем помочь! Подберем для вас из сотен наших партнеров несколько компаний с лучшем соотношением цена/качество под конкретно ваш запрос.
Подобрать
Посмотреть еще 32 компании Свернуть
Отзывы покупателей
Рейтинг покупателей
0 / 5 5 5 1
На основе 1 оценок покупателей
0%
0%
0%
0%
0%
Отзывы о проекте D4136
Отзыв о проекте D4136
Чтобы оставить отзыв, пожалуйста авторизуйтесь.
Подбор строительной компании
Не знаете кому доверить строительство дома? Мы можем помочь! Подберем для вас из сотен наших партнеров несколько компаний с лучшем соотношением цена/качество под конкретно ваш запрос.
Подобрать