Главная Проекты домов Проект двухэтажного дома с эркером и зимним садом, бильярдной и тренажерным залом на цокольном этаже

D2142 Проект двухэтажного дома с эркером и зимним садом, бильярдной и тренажерным залом на цокольном этаже

Сравнить проект В избранное
Технические характеристики
Общие
Материал стен
Газобетон
Общая площадь
422 м²
Приведенная площадь
389.912 м²
Количество жилых комнат/спален
4
Этажи
2 этажа
Гараж
Нет гаража
Подвал / цокольный этаж
С окнами
Длина дома
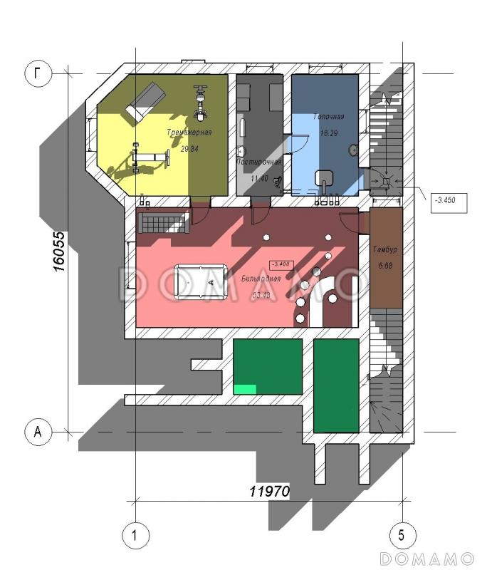
16.055 м
Ширина дома
11.970 м
Кровля
Металлочерепица
Облицовка внешних стен
Облицовочный кирпич
Фундамент
Ленточный монолитный
Терраса
Терраса крытая
Дополнительные
Сауна/баня внутри
Нет
Площадь гостиной
41.42 м²
Площадь кухни
20.66 м²
Количество санузлов
2
Окно в ванной комнате
Есть
Котельная
Есть
Кабинет
Есть
Постирочная
Есть
Спортзал / детский / игровой зал
Есть
Бильярдная
Есть
Хозяйская гардеробная
Есть
Кладовая
2
Зимний сад
Есть
Планы помещений
Фасады
Описание проекта
Компания Domamo предлагает проект двухэтажного дома с эркером и зимним садом, бильярдной и тренажерным залом на цокольном этаже D2142. Общая площадь - 422 м2, размер - 16.055х11.970 м. Фундамент - ленточный монолитный, кровля - металлочерепица, внешняя отделка - облицовочный кирпич. Для заказа проекта или внесения изменений свяжитесь с нами с помощью форм обратной связи на сайте или по телефону +7 (831) 231-05-02.
Категории проекта: для постоянного проживания пенобетон фахверк от 400 до 500 кв.м с эркером с террасой из газобетона с цокольным этажом из газобетона с эркером и цоколем из газобетона с эркером из газобетона готовые с цокольным этажом двухэтажные с котельной двухэтажные из газобетона из газосиликатных блоков двухэтажные из пеноблоков загородные из керамзитобетонных блоков с бильярдной с гардеробной прямоугольные с зимним садом из газобетона с террасой двухэтажные с цокольным этажом двухэтажные с эркером из блоков двухэтажные из блоков из блоков с эркером Проекты домов из пеноблоков с эркером из пеноблоков с цокольным этажом из пеноблоков с террасой загородные из газобетона Проекты двухэтажных домов с террасой Проекты двухэтажных домов с верандой без гаража облицованные кирпичом с кабинетом с 4 спальнями недорогие из пеноблоков загородные большие двухэтажные с 4 спальнями двухэтажные эконом класса двухэтажные без гаража из газобетона фахверк из газобетона с котельной из газобетона прямоугольные из газобетона готовые из газобетона с большой кухней из газобетона с четырьмя спальнями из газобетона с кабинетом из газобетона с изолированной кухней из газобетона большие из газобетона недорогие из газобетона для постоянного проживания двухэтажные из газобетона без гаража двухэтажные из газобетона с террасой двухэтажные из газобетона недорогие двухэтажные из газобетона с прачечной двухэтажные из газобетона с кабинетом двухэтажные из газобетона с котельной двухэтажные из газобетона с зимним садом двухэтажные из газобетона с вальмовой крышей двухэтажные из газобетона большие двухэтажные из газобетона с подвалом двухэтажные из газобетона с изолированной кухней двухэтажные из газобетона с эркером двухэтажные из газобетона с 4 спальнями двухэтажные из газобетона с большой гостиной большие готовые большие с вальмовой крышей большие прямоугольные большие с окном в ванной комнате большие без гаража большие с большой кухней большие с изолированной кухней большие с террасой большие с прачечной большие с котельной большие с кабинетом большие с 4 спальнями большие с спортзалом большие с зимним садом из пеноблоков в стиле фахверк из пеноблоков с вальмовой крышей из пеноблоков прямоугольные из пеноблоков для постоянного проживания из пеноблоков недорогие из пеноблоков готовые из пеноблоков от 400 до 500 м2 из пеноблоков большие из пеноблоков с 4 спальнями из пеноблоков с большой гостиной из пеноблоков с большой кухней из пеноблоков с изолированной кухней недорогие двухэтажные недорогие в стиле фахверк недорогие без гаража недорогие с террасой недорогие для постоянного проживания недорогие с вальмовой крышей недорогие с большой гостиной недорогие с изолированной кухней недорогие без бани недорогие с кабинетом недорогие с котельной недорогие прямоугольные недорогие большие недорогие от 400 до 500 м2 из клееного бруса без гаража Показать все категории Скрыть категории

Похожие проекты
Состав проекта
Входит в стоимость
Цена, руб. Сроки, дней
Комплект архитектурно-строительных чертежей (АС) Входит в стоимость Готов к отправке
Готово к продаже
Цена, руб. Сроки, дней
Паспорт рабочего проекта 5 000 ₽ Готов к отправке в корзину
Инженерные разделы: ВК + ОВ + ЭО 14 000 ₽ Готов к отправке в корзину
Разрабатывается отдельно
Цена, руб. Сроки, дней
Адаптация фундамента (изменение типа фундамента) по запросу 14 рабочих дней
Дизайн интерьера (стоимость от 2200руб. за квад.метр площади) по запросу 30 рабочих дней
Внесение изменений в проект по запросу 20 рабочих дней
Фэншуй дома 20 000 ₽ 14 рабочих дней в корзину
Фэншуй участка 15 000 ₽ 14 рабочих дней в корзину
Фэншуй полная консультация дом+участок с выездом на объект 100 000 ₽ 30 рабочих дней в корзину
Опции проекта вы можете заказать в корзине при оформлении заказа
Предложения строителей Выбрать регион
Минимальная
13 256 940 ₽
Стандарт
16 376 220 ₽
Под чистовую отделку
21 445 050 ₽
Показать подробные комплектации
Минимальная
31 816 656 ₽
Стандарт
37 431 360 ₽
Под чистовую отделку
48 660 768 ₽
Показать подробные комплектации
Минимальная
14 867 268 ₽
Стандарт
22 061 107 ₽
Под чистовую отделку
35 010 018 ₽
Показать подробные комплектации
Минимальная
12 282 165 ₽
Стандарт
14 738 598 ₽
Под чистовую отделку
16 493 193 ₽
Показать подробные комплектации
Минимальная
12 584 735 ₽
Стандарт
18 470 036 ₽
Под чистовую отделку
19 760 638 ₽
Показать подробные комплектации
Минимальная
9 825 732 ₽
Стандарт
11 229 408 ₽
Под чистовую отделку
14 738 598 ₽
Показать подробные комплектации
Подбор строительной компании
Не знаете кому доверить строительство дома? Мы можем помочь! Подберем для вас из сотен наших партнеров несколько компаний с лучшем соотношением цена/качество под конкретно ваш запрос.
Подобрать
Посмотреть еще 32 компании Свернуть
Отзывы покупателей
Рейтинг покупателей
0 / 5 5 5 1
На основе 1 оценок покупателей
0%
0%
0%
0%
0%
Отзывы о проекте D2142
Отзыв о проекте D2142
Чтобы оставить отзыв, пожалуйста авторизуйтесь.
Подбор строительной компании
Не знаете кому доверить строительство дома? Мы можем помочь! Подберем для вас из сотен наших партнеров несколько компаний с лучшем соотношением цена/качество под конкретно ваш запрос.
Подобрать