Главная Проекты домов Проект двухэтажного дома с подвалом, гаражом и верандой

D2447 Проект двухэтажного дома с подвалом, гаражом и верандой

Сравнить проект В избранное
Проект двухэтажного дома с подвалом, гаражом и верандой / 1
Проект двухэтажного дома с подвалом, гаражом и верандой / 2
Проект двухэтажного дома с подвалом, гаражом и верандой / 3
Проект двухэтажного дома с подвалом, гаражом и верандой / 4
Проект двухэтажного дома с подвалом, гаражом и верандой / 5
Проект двухэтажного дома с подвалом, гаражом и верандой / 1
Проект двухэтажного дома с подвалом, гаражом и верандой / 2
Проект двухэтажного дома с подвалом, гаражом и верандой / 3
Проект двухэтажного дома с подвалом, гаражом и верандой / 4
Проект двухэтажного дома с подвалом, гаражом и верандой / 5
D2447
400.2 м²
Подготовка проекта:
Готов к отправке
Стоимость проекта
Купить проект
Задайте вопросы по проекту нашему архитектору
8 (800) 200-28-83
Время работы: пн-вс: с 9:00 до 20:00
Задать вопрос по проекту

Технические характеристики
Общие
Материал стен
Газобетон
Общая площадь
400.2 м²
Жилая площадь
129.4 м²
Площадь застройки
216.4 м²
Приведенная площадь
377.22 м²
Количество жилых комнат/спален
3
Этажи
2 этажа
Гараж
Нет гаража
Количество машин
2
Подвал / цокольный этаж
Без окон
Длина дома
16.3 м
Ширина дома
15.3 м
Высота в коньке
10.5 м
Кровля
Металлочерепица
Облицовка внешних стен
Мокрая штукатурка
Толщина несущих наружных стен
375 мм
Межэтажные перекрытия
Сборно-монолитные
Внутренние не несущие перегородки
Газобетонные
Фундамент
Утепленная шведская плита (УШП)
Терраса
Терраса открытая
,
Терраса крытая
,
Терраса застекленная (веранда)
Дополнительные
Камин
Есть
Сауна/баня внутри
Нет
Площадь гостиной
34.1 м²
Площадь кухни
13.7 м²
Количество санузлов
2
Котельная
Есть
Постирочная
Есть
Хозяйская гардеробная
Есть
Кладовая
4
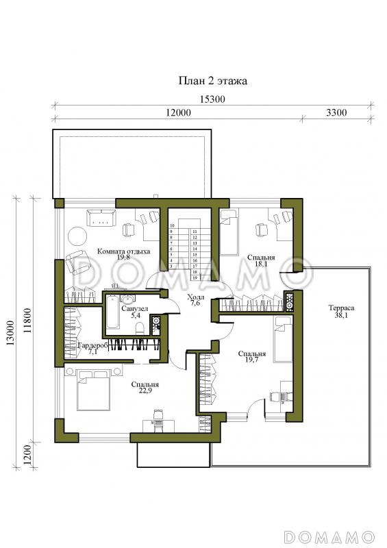
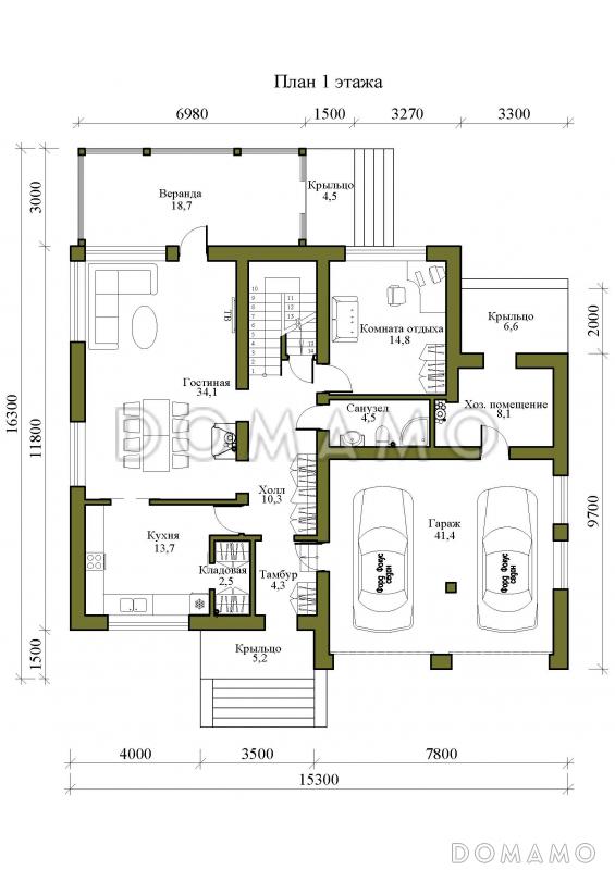
Планы помещений
Описание проекта
Компания Domamo предлагает проект двухэтажного дома с подвалом, гаражом и верандой D2447. Общая площадь - 400.2 м2, размер - 16.3х15.3 м. Фундамент - утепленная шведская плита (ушп), кровля - металлочерепица, внешняя отделка - мокрая штукатурка. Для заказа проекта или внесения изменений свяжитесь с нами с помощью форм обратной связи на сайте или по телефону +7 (831) 231-05-02.
Категории проекта: для постоянного проживания пенобетон в классическом стиле от 400 до 500 кв.м с террасой из газобетона с цокольным этажом из газобетона готовые с цокольным этажом двухэтажные с подвалом с котельной двухэтажные из газобетона из газосиликатных блоков двухэтажные из пеноблоков загородные из керамзитобетонных блоков с камином с гардеробной прямоугольные с верандой из газобетона с террасой из блоков двухэтажные из блоков из пеноблоков с террасой загородные из газобетона Проекты двухэтажных домов с террасой Проекты двухэтажных домов с верандой Проекты двухэтажных домов с подвалом без гаража с террасой и камином Проекты домов с тремя спальнями из пеноблоков загородные большие двухэтажные с камином двухэтажные с 3 спальнями двухэтажные в классическом стиле двухэтажные без гаража из газобетона в классическом стиле из газобетона с котельной из газобетона прямоугольные из газобетона готовые из газобетона с камином из газобетона с тремя спальнями из газобетона с изолированной кухней из газобетона большие из газобетона для постоянного проживания двухэтажные из газобетона без гаража двухэтажные из газобетона с террасой двухэтажные из газобетона с камином двухэтажные из газобетона с прачечной двухэтажные из газобетона с котельной двухэтажные из газобетона классические двухэтажные из газобетона с вальмовой крышей двухэтажные из газобетона большие двухэтажные из газобетона с подвалом двухэтажные из газобетона с изолированной кухней двухэтажные из газобетона с 3 спальнями классические для постоянного проживания классические без гаража классические с гаражом на 2 машины классические с 3 спальнями классические с террасой классические готовые классические элитные классические с котельной классические с изолированной кухней классические с подвалом классические с 2 санузлами классические с прачечной классические прямоугольные классические с камином классические с вальмовой крышей большие готовые большие в классическом стиле большие с вальмовой крышей большие прямоугольные большие с камином большие без гаража большие с изолированной кухней большие с террасой большие с прачечной большие с котельной большие с тремя спальнями из пеноблоков в классическом стиле из пеноблоков с вальмовой крышей из пеноблоков прямоугольные из пеноблоков для постоянного проживания из пеноблоков готовые из пеноблоков с камином из пеноблоков от 400 до 500 м2 из пеноблоков большие из пеноблоков с 3 спальнями из пеноблоков с изолированной кухней из клееного бруса без гаража Показать все категории Скрыть категории

Похожие проекты
Состав проекта
Входит в стоимость
Цена, руб. Сроки, дней
Комплект архитектурно-строительных чертежей (АС) Входит в стоимость Готов к отправке
Готово к продаже
Цена, руб. Сроки, дней
Паспорт рабочего проекта 4 000 ₽ 3 рабочих дня в корзину
Дополнительная копия проекта формата А3 4 000 ₽ Готов к отправке в корзину
Электронная копия проекта (скан распечатанной версии) 4 000 ₽ 3 рабочих дня в корзину
Разрабатывается отдельно
Цена, руб. Сроки, дней
Адаптация фундамента (изменение типа фундамента) по запросу 14 рабочих дней
Дизайн интерьера (стоимость от 2200руб. за квад.метр площади) по запросу 30 рабочих дней
Внесение изменений в проект по запросу 20 рабочих дней
Разработка Генплана участка, в масштабе 1:250 7 500 ₽ 5 рабочих дней в корзину
Фэншуй дома 20 000 ₽ 14 рабочих дней в корзину
Фэншуй участка 15 000 ₽ 14 рабочих дней в корзину
Фэншуй полная консультация дом+участок с выездом на объект 100 000 ₽ 30 рабочих дней в корзину
Опции проекта вы можете заказать в корзине при оформлении заказа
Предложения строителей Республика Башкортостан
Отзывы покупателей
Рейтинг покупателей
0 / 5 5 5 1
На основе 1 оценок покупателей
0%
0%
0%
0%
0%
Отзывы о проекте D2447
Отзыв о проекте D2447
Чтобы оставить отзыв, пожалуйста авторизуйтесь.
Подбор строительной компании
Не знаете кому доверить строительство дома? Мы можем помочь! Подберем для вас из сотен наших партнеров несколько компаний с лучшем соотношением цена/качество под конкретно ваш запрос.
Подобрать