Главная Проекты домов Проект одноэтажного мансардного дома из кирпича с гаражом и тремя спальнями и балконом

D2110 Проект одноэтажного мансардного дома из кирпича с гаражом и тремя спальнями и балконом

Сравнить проект В избранное
Технические характеристики
Общие
Материал стен
Кирпич
Общая площадь
213 м²
Площадь застройки
135.4 м²
Приведенная площадь
193.5 м²
Количество жилых комнат/спален
4
Этажи
1 этаж + мансарда
Гараж
Встроенный гараж
Количество машин
1
Подвал / цокольный этаж
Без подвала
Длина дома
15.84 м
Ширина дома
10.74 м
Высота в коньке
8.33 м
Кровля
Металлочерепица
Облицовка внешних стен
Деревянная вагонка
,
Мокрая штукатурка
Толщина несущих наружных стен
380 мм
Межэтажные перекрытия
Монолитные
Внутренние не несущие перегородки
Кирпичные
Фундамент
Ленточный заглубленный из ФБС
Терраса
Терраса крытая
Дополнительные
Окна
Окна до пола
,
Панорамные окна
Мансардные окна
Есть
Камин
Есть
Сауна/баня внутри
Нет
Площадь гостиной
20.4 м²
Площадь кухни
9.8 м²
Количество санузлов
3
Окно в ванной комнате
Есть
Котельная
Есть
Кабинет
Есть
Хозяйский санузел
Есть
Кладовая
2
Балкон / лоджия
Балкон
Длина участка
23.84 м
Ширина участка
18.74 м
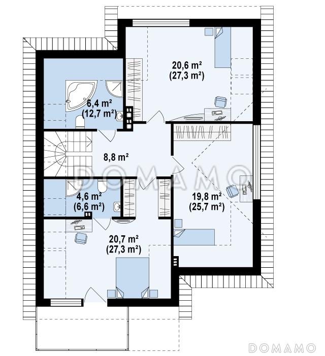
Планы помещений
Фасады
Описание проекта
Компания Domamo предлагает проект одноэтажного мансардного дома из кирпича с гаражом и тремя спальнями и балконом D2110. Общая площадь - 213 м2, размер - 15.84х10.74 м. Фундамент - ленточный заглубленный из фбс, кровля - металлочерепица, внешняя отделка - деревянная вагонка мокрая штукатурка. Для заказа проекта или внесения изменений свяжитесь с нами с помощью форм обратной связи на сайте или по телефону +7 (831) 231-05-02.
Категории проекта: с мансардой с гаражом с мансардой и гаражом для постоянного проживания кирпич в классическом стиле от 200 до 300 кв.м кирпичные дома хай-тек классические кирпичные дома кирпичные дома с мансардой дома из кирпича с гаражом с террасой из кирпича с террасой готовые загородные из кирпича одноэтажные из кирпича одноэтажные из кирпича с гаражом одноэтажные из кирпича с мансардой одноэтажные кирпичные с котельной одноэтажные с гаражом одноэтажные с мансардой кирпичные с котельной одноэтажные с котельной с котельной одноэтажные с гаражом и мансардой загородные с камином угловые с балконом со встроенным гаражом с панорамным остеклением Проекты одноэтажных домов с террасой Типовые проекты загородных одноэтажных домов с террасой и камином с кабинетом с гаражом под одной крышей одноэтажные с 4 спальнями одноэтажные с гаражом и террасой с мансардой и террасой полутораэтажные с гаражом и террасой с 4 спальнями с панорамными окнами и террасой г-образные полутораэтажные из кирпича с балконом и террасой от 200 до 250 м одноэтажные с мансардными окнами с мансардой с котельной с мансардой с камином с мансардой в классическом стиле с мансардой с панорамными окнами с мансардой с окнами до пола с мансардой с мансардными окнами с мансардой с балконом с мансардой г-образные с мансардой готовые с мансардой для постоянного проживания одноэтажные из кирпича с 4 спальнями готовые для постоянного проживания с камином без подвала классический стиль с панорамными окнами угловые одноэтажные с мансардой для постоянного проживания одноэтажные с мансардой с панорамными окнами одноэтажные с мансардой классические одноэтажные с мансардой с балконом классические для постоянного проживания классические с гаражом классические с 4 спальнями классические с панорамными окнами классические с окнами в пол классические с террасой классические готовые классические с котельной классические без подвала классические с балконом классические угловые классические с камином классические с вальмовой крышей классические с кабинетом недорогие с панорамными окнами из клееного бруса без гаража Показать все категории Скрыть категории

Похожие проекты
Состав проекта
Входит в стоимость
Цена, руб. Сроки, дней
Комплект архитектурно-строительных чертежей (АС) Входит в стоимость 33 рабочих дня
Готово к продаже
Цена, руб. Сроки, дней
Паспорт рабочего проекта 8 000 ₽ 5 рабочих дней в корзину
Дополнительная копия проекта формата А3 6 500 ₽ 5 рабочих дней в корзину
Электронная копия проекта (скан распечатанной версии) 4 000 ₽ 3 рабочих дня в корзину
Разрабатывается отдельно
Цена, руб. Сроки, дней
Адаптация фундамента (изменение типа фундамента) по запросу 14 рабочих дней
Дизайн интерьера (стоимость от 2200руб. за квад.метр площади) по запросу 30 рабочих дней
Внесение изменений в проект по запросу 20 рабочих дней
Инженерные разделы: ВК + ОВ + ЭО 25 980 ₽ 33 рабочих дня в корзину
Разработка Генплана участка, в масштабе 1:250 7 500 ₽ 15 рабочих дней в корзину
Фэншуй дома 20 000 ₽ 14 рабочих дней в корзину
Фэншуй участка 15 000 ₽ 14 рабочих дней в корзину
Фэншуй полная консультация дом+участок с выездом на объект 100 000 ₽ 30 рабочих дней в корзину
Опции проекта вы можете заказать в корзине при оформлении заказа
Предложения строителей Выбрать регион
Минимальная
6 772 500 ₽
Стандарт
8 320 500 ₽
Под чистовую отделку
10 836 000 ₽
Показать подробные комплектации
Минимальная
16 447 500 ₽
Стандарт
19 350 000 ₽
Под чистовую отделку
25 155 000 ₽
Показать подробные комплектации
Минимальная
9 040 320 ₽
Стандарт
13 277 970 ₽
Под чистовую отделку
20 905 740 ₽
Показать подробные комплектации
Минимальная
7 753 545 ₽
Стандарт
8 902 935 ₽
Под чистовую отделку
11 399 472 ₽
Показать подробные комплектации
Минимальная
3 795 105 ₽
Стандарт
4 699 640 ₽
Под чистовую отделку
5 656 595 ₽
Показать подробные комплектации
Подбор строительной компании
Не знаете кому доверить строительство дома? Мы можем помочь! Подберем для вас из сотен наших партнеров несколько компаний с лучшем соотношением цена/качество под конкретно ваш запрос.
Подобрать
Посмотреть еще 20 компаний Свернуть
Отзывы покупателей
Рейтинг покупателей
0 / 5 5 5 1
На основе 1 оценок покупателей
0%
0%
0%
0%
0%
Отзывы о проекте D2110
Отзыв о проекте D2110
Чтобы оставить отзыв, пожалуйста авторизуйтесь.
Подбор строительной компании
Не знаете кому доверить строительство дома? Мы можем помочь! Подберем для вас из сотен наших партнеров несколько компаний с лучшем соотношением цена/качество под конкретно ваш запрос.
Подобрать