Главная Проекты домов Проект одноэтажного мансардного дома из кирпича с кабинетом, четырьмя спальнями, техническим помещением и гаражом

D2507 Проект одноэтажного мансардного дома из кирпича с кабинетом, четырьмя спальнями, техническим помещением и гаражом

Сравнить проект В избранное
Технические характеристики
Общие
Материал стен
Кирпич
Общая площадь
205 м²
Площадь застройки
131.8 м²
Приведенная площадь
190.4 м²
Количество жилых комнат/спален
5
Этажи
1 этаж + мансарда
Гараж
Встроенный гараж
Количество машин
1
Подвал / цокольный этаж
Без подвала
Длина дома
11.20 м
Ширина дома
14.34 м
Высота в коньке
8.31 м
Кровля
Металлочерепица
Облицовка внешних стен
Деревянная вагонка
,
Мокрая штукатурка
Толщина несущих наружных стен
380 мм
Межэтажные перекрытия
Монолитные
Внутренние не несущие перегородки
Кирпичные
Фундамент
Ленточный заглубленный из ФБС
Терраса
Терраса открытая
Дополнительные
Окна
Окна до пола
,
Окна с французским балконом
Мансардные окна
Есть
Камин
Есть
Сауна/баня внутри
Нет
Площадь гостиной
31 м²
Площадь кухни
9.1 м²
Количество санузлов
3
Окно в ванной комнате
Есть
Котельная
Есть
Кабинет
Есть
Хозяйский санузел
Есть
Кладовая
2
Длина участка
19.20 м
Ширина участка
22.34 м
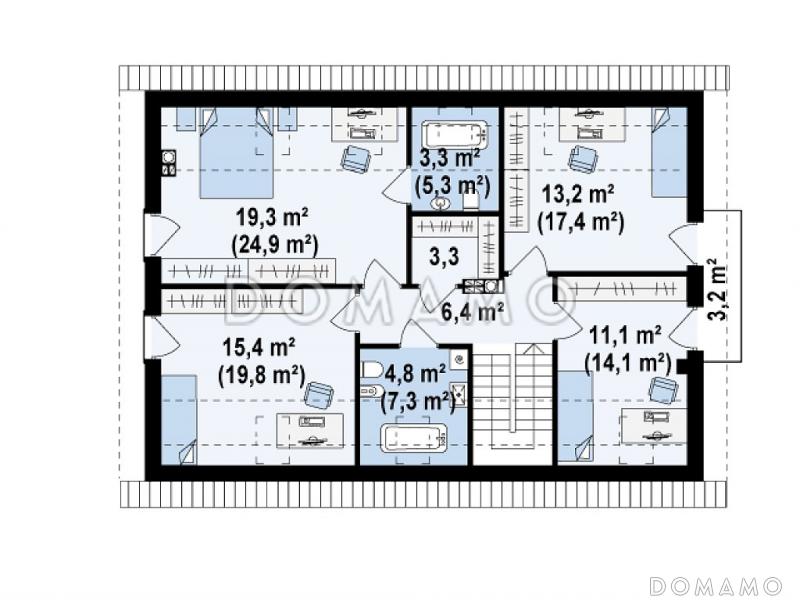
Планы помещений
Фасады
Описание проекта

Проект двухэтажного современного коттеджа, который подойдет для семьи из пяти-шести человек.  Благодаря лаконичному цвету декоративной штукатурки и классической двускатной крыше дом будет отлично выглядеть даже спустя много лет.

На первом этаже коттедже расположена просторная столовая-гостиная, объединенная с кухней, и кабинет, который при желании можно переоборудовать в спальню или комнату отдыха. Мансарда отведена под четыре спальных комнаты, в двух из которых предусмотрены выходы на балкон, и два санузла. 

Преимущества и особенности:

  • Кабинет на первом этаже можно переоборудовать под спальню, что оценят пожилые члены семьи.

  • В гараже хозяева дома могут разместить свой автомобиль.


В данный момент проект недоступен к заказу. Ниже представлены проекты, похожие на выбранный вами. Ознакомьтесь с нашим предложением или свяжитесь с нами любым удобным способом.

Категории проекта: с мансардой с гаражом с мансардой и гаражом для постоянного проживания кирпич в классическом стиле от 200 до 300 кв.м кирпичные дома хай-тек классические кирпичные дома кирпичные дома с мансардой дома из кирпича с гаражом с террасой из кирпича с террасой готовые загородные из кирпича одноэтажные из кирпича одноэтажные из кирпича с гаражом одноэтажные из кирпича с мансардой одноэтажные кирпичные с котельной одноэтажные с гаражом одноэтажные с мансардой кирпичные с котельной одноэтажные с котельной с котельной одноэтажные с гаражом и мансардой с двухскатной крышей загородные с камином прямоугольные со встроенным гаражом Проекты одноэтажных домов с террасой Типовые проекты загородных одноэтажных домов с террасой и камином с кабинетом с гаражом под одной крышей одноэтажные с гаражом и террасой с мансардой и террасой полутораэтажные с гаражом и террасой полутораэтажные из кирпича с 5 спальнями от 200 до 250 м одноэтажные с мансардными окнами с мансардой с котельной с мансардой с камином с мансардой с двухскатной крышей с мансардой в классическом стиле с мансардой с окнами до пола с мансардой с мансардными окнами с мансардой прямоугольные с мансардой готовые с мансардой для постоянного проживания готовые для постоянного проживания с камином без подвала классический стиль прямоугольные с большой гостиной одноэтажные с мансардой для постоянного проживания одноэтажные с мансардой классические классические для постоянного проживания классические с гаражом классические с окнами в пол классические с террасой классические готовые классические с котельной классические без подвала классические прямоугольные классические с камином классические с двухскатной крышей классические с кабинетом из клееного бруса без гаража Показать все категории Скрыть категории

Похожие проекты
Состав проекта
Входит в стоимость
Цена, руб. Сроки, дней
Комплект архитектурно-строительных чертежей (АС) Входит в стоимость 33 рабочих дня
Готово к продаже
Цена, руб. Сроки, дней
Паспорт рабочего проекта 8 000 ₽ 5 рабочих дней в корзину
Дополнительная копия проекта формата А3 6 500 ₽ 5 рабочих дней в корзину
Электронная копия проекта (скан распечатанной версии) 4 000 ₽ 3 рабочих дня в корзину
Разрабатывается отдельно
Цена, руб. Сроки, дней
Адаптация фундамента (изменение типа фундамента) по запросу 14 рабочих дней
Дизайн интерьера (стоимость от 2200руб. за квад.метр площади) по запросу 30 рабочих дней
Внесение изменений в проект по запросу 20 рабочих дней
Инженерные разделы: ВК + ОВ + ЭО 13 500 ₽ 33 рабочих дня в корзину
Разработка Генплана участка, в масштабе 1:250 7 500 ₽ 15 рабочих дней в корзину
Фэншуй дома 20 000 ₽ 14 рабочих дней в корзину
Фэншуй участка 15 000 ₽ 14 рабочих дней в корзину
Фэншуй полная консультация дом+участок с выездом на объект 100 000 ₽ 30 рабочих дней в корзину
Опции проекта вы можете заказать в корзине при оформлении заказа
Предложения строителей Выбрать регион
Минимальная
6 664 000 ₽
Стандарт
8 187 200 ₽
Под чистовую отделку
10 662 400 ₽
Показать подробные комплектации
Минимальная
16 184 000 ₽
Стандарт
19 040 000 ₽
Под чистовую отделку
24 752 000 ₽
Показать подробные комплектации
Минимальная
8 895 488 ₽
Стандарт
13 065 248 ₽
Под чистовую отделку
20 570 816 ₽
Показать подробные комплектации
Минимальная
7 629 328 ₽
Стандарт
8 760 304 ₽
Под чистовую отделку
11 216 844 ₽
Показать подробные комплектации
Минимальная
3 734 305 ₽
Стандарт
4 624 349 ₽
Под чистовую отделку
5 565 972 ₽
Показать подробные комплектации
Подбор строительной компании
Не знаете кому доверить строительство дома? Мы можем помочь! Подберем для вас из сотен наших партнеров несколько компаний с лучшем соотношением цена/качество под конкретно ваш запрос.
Подобрать
Посмотреть еще 20 компаний Свернуть
Отзывы покупателей
Рейтинг покупателей
0 / 5 5 5 1
На основе 1 оценок покупателей
0%
0%
0%
0%
0%
Отзывы о проекте D2507
Отзыв о проекте D2507
Чтобы оставить отзыв, пожалуйста авторизуйтесь.
Подбор строительной компании
Не знаете кому доверить строительство дома? Мы можем помочь! Подберем для вас из сотен наших партнеров несколько компаний с лучшем соотношением цена/качество под конкретно ваш запрос.
Подобрать