Главная Проекты бани Проект одноэтажной бани с бильярдной и кухней-столовой

D5358 Проект одноэтажной бани с бильярдной и кухней-столовой

Сравнить проект В избранное
Проект одноэтажной бани с бильярдной и кухней-столовой / 1
Проект одноэтажной бани с бильярдной и кухней-столовой / 2
Проект одноэтажной бани с бильярдной и кухней-столовой / 3
Проект одноэтажной бани с бильярдной и кухней-столовой / 4
Проект одноэтажной бани с бильярдной и кухней-столовой / 1
Проект одноэтажной бани с бильярдной и кухней-столовой / 2
Проект одноэтажной бани с бильярдной и кухней-столовой / 3
Проект одноэтажной бани с бильярдной и кухней-столовой / 4
D5358
173.8 м²
Подготовка проекта:
15 рабочих дней
Стоимость проекта
Купить проект
Задайте вопросы по проекту нашему архитектору
8 (800) 200-28-83
Время работы: пн-вс: с 9:00 до 20:00
Задать вопрос по проекту

Технические характеристики
Общие
Материал стен
Каркас
Общая площадь
173.8 м²
Площадь застройки
204.4 м²
Приведенная площадь
144.68 м²
Этажи
1 этаж
Гараж
Нет гаража
Количество машин
нет
Подвал / цокольный этаж
Без подвала
Длина дома
16.3 м
Ширина дома
14.4 м
Высота в коньке
5.9 м
Кровля
Металлочерепица
Облицовка внешних стен
Сайдинг
Толщина несущих наружных стен
200 мм
Межэтажные перекрытия
По деревянным балкам
Внутренние не несущие перегородки
Каркасно-обшивные
Фундамент
Малозаглубленные ростверки
Терраса
Терраса открытая
Дополнительные
Окна
Окна до пола
,
Панорамные окна
Сауна/баня внутри
Есть
Площадь кухни
44.4 м²
Количество санузлов
2
Котельная
Есть
Бильярдная
Есть
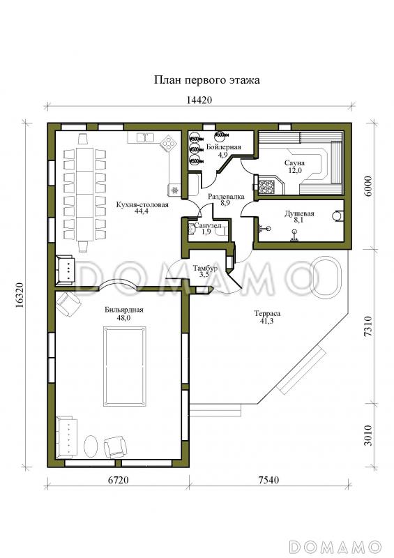
Планы помещений

Похожие проекты
Состав проекта
Входит в стоимость
Цена, руб. Сроки, дней
Комплект архитектурно-строительных чертежей (АС) Входит в стоимость Готов к отправке
Готово к продаже
Цена, руб. Сроки, дней
Паспорт рабочего проекта 5 000 ₽ 3 рабочих дня в корзину
Дополнительная копия проекта формата А3 4 000 ₽ Готов к отправке в корзину
Электронная копия проекта (скан распечатанной версии) 4 000 ₽ 3 рабочих дня в корзину
Разрабатывается отдельно
Цена, руб. Сроки, дней
Адаптация фундамента (изменение типа фундамента) по запросу 14 рабочих дней
Дизайн интерьера (стоимость от 2200руб. за квад.метр площади) по запросу 30 рабочих дней
Внесение изменений в проект по запросу 20 рабочих дней
Инженерные разделы: ВК + ОВ + ЭО 40 000 ₽ 20 рабочих дней в корзину
Зеркалирование проекта (для которого нет зеркальной версии) 8 000 ₽ 5 рабочих дней в корзину
Разработка Генплана участка, в масштабе 1:250 7 500 ₽ 5 рабочих дней в корзину
Фэншуй дома 20 000 ₽ 14 рабочих дней в корзину
Фэншуй участка 15 000 ₽ 14 рабочих дней в корзину
Фэншуй полная консультация дом+участок с выездом на объект 100 000 ₽ 30 рабочих дней в корзину
Опции проекта вы можете заказать в корзине при оформлении заказа
Предложения строителей Выбрать регион
+7 (911) XXX-XX-XXПоказать телефон
Минимальная
9 114 840 ₽
Стандарт
13 889 280 ₽
Под чистовую отделку
16 204 160 ₽
Показать подробные комплектации
Подбор строительной компании
Не знаете кому доверить строительство дома? Мы можем помочь! Подберем для вас из сотен наших партнеров несколько компаний с лучшем соотношением цена/качество под конкретно ваш запрос.
Подобрать
Посмотреть еще 5 компаний Свернуть
Отзывы покупателей
Рейтинг покупателей
0 / 5 5 5 1
На основе 1 оценок покупателей
0%
0%
0%
0%
0%
Отзывы о проекте D5358
Отзыв о проекте D5358
Чтобы оставить отзыв, пожалуйста авторизуйтесь.
Подбор строительной компании
Не знаете кому доверить строительство дома? Мы можем помочь! Подберем для вас из сотен наших партнеров несколько компаний с лучшем соотношением цена/качество под конкретно ваш запрос.
Подобрать