Главная Проекты бани Проект одноэтажной бани с бильярдной и кухней-столовой

D2115 Проект одноэтажной бани с бильярдной и кухней-столовой

Сравнить проект В избранное
Проект одноэтажной бани с бильярдной и кухней-столовой / 1
Проект одноэтажной бани с бильярдной и кухней-столовой / 2
Проект одноэтажной бани с бильярдной и кухней-столовой / 3
Проект одноэтажной бани с бильярдной и кухней-столовой / 4
Проект одноэтажной бани с бильярдной и кухней-столовой / 1
Проект одноэтажной бани с бильярдной и кухней-столовой / 2
Проект одноэтажной бани с бильярдной и кухней-столовой / 3
Проект одноэтажной бани с бильярдной и кухней-столовой / 4
D2115
173.8 м²
Подготовка проекта:
Готов к отправке
Стоимость проекта
Купить проект
Задайте вопросы по проекту нашему архитектору
8 (800) 200-28-83
Время работы: пн-вс: с 9:00 до 20:00
Задать вопрос по проекту

Технические характеристики
Общие
Материал стен
Газобетон
Общая площадь
173.8 м²
Площадь застройки
204.4 м²
Приведенная площадь
144.68 м²
Этажи
1 этаж
Гараж
Нет гаража
Количество машин
нет
Подвал / цокольный этаж
Без подвала
Длина дома
16.3 м
Ширина дома
14.4 м
Высота в коньке
5.9 м
Кровля
Металлочерепица
Облицовка внешних стен
Сайдинг
Толщина несущих наружных стен
300 мм
Межэтажные перекрытия
По деревянным балкам
Внутренние не несущие перегородки
Газобетонные
Фундамент
Малозаглубленные ростверки
Терраса
Терраса открытая
Дополнительные
Окна
Окна до пола
,
Панорамные окна
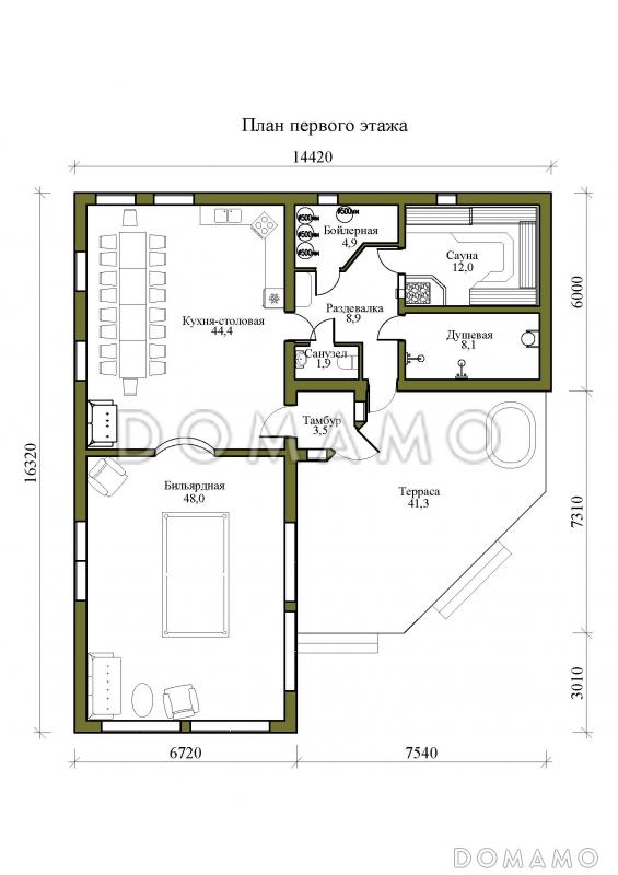
Сауна/баня внутри
Есть
Площадь кухни
44.4 м²
Количество санузлов
2
Котельная
Есть
Бильярдная
Есть
Планы помещений

Похожие проекты
Состав проекта
Готово к продаже
Цена, руб. Сроки, дней
Комплект архитектурно-строительных чертежей (АС) 27 000 ₽ 10 рабочих дней в корзину
Паспорт рабочего проекта 4 000 ₽ 3 рабочих дня в корзину
Дополнительная копия проекта формата А3 4 000 ₽ Готов к отправке в корзину
Электронная копия проекта (скан распечатанной версии) 4 000 ₽ 3 рабочих дня в корзину
Разрабатывается отдельно
Цена, руб. Сроки, дней
Адаптация фундамента (изменение типа фундамента) по запросу 14 рабочих дней
Дизайн интерьера (стоимость от 2200руб. за квад.метр площади) по запросу 30 рабочих дней
Внесение изменений в проект по запросу 20 рабочих дней
Разработка Генплана участка, в масштабе 1:250 7 500 ₽ 5 рабочих дней в корзину
Фэншуй дома 20 000 ₽ 14 рабочих дней в корзину
Фэншуй участка 15 000 ₽ 14 рабочих дней в корзину
Фэншуй полная консультация дом+участок с выездом на объект 100 000 ₽ 30 рабочих дней в корзину
Опции проекта вы можете заказать в корзине при оформлении заказа
Отзывы покупателей
Рейтинг покупателей
0 / 5 5 5 1
На основе 1 оценок покупателей
0%
0%
0%
0%
0%
Отзывы о проекте D2115
Отзыв о проекте D2115
Чтобы оставить отзыв, пожалуйста авторизуйтесь.
Подбор строительной компании
Не знаете кому доверить строительство дома? Мы можем помочь! Подберем для вас из сотен наших партнеров несколько компаний с лучшем соотношением цена/качество под конкретно ваш запрос.
Подобрать