Главная Проекты гаражей Проект гаража на два машиноместа с мансардой

D5313 Проект гаража на два машиноместа с мансардой

Сравнить проект В избранное
Проект гаража на два машиноместа с мансардой / 1
Проект гаража на два машиноместа с мансардой / 2
Проект гаража на два машиноместа с мансардой / 1
Проект гаража на два машиноместа с мансардой / 2
D5313
104.5 м²
Подготовка проекта:
Готов к отправке
Стоимость проекта
Купить проект
Задайте вопросы по проекту нашему архитектору
8 (800) 200-28-83
Время работы: пн-вс: с 9:00 до 20:00
Задать вопрос по проекту

Технические характеристики
Общие
Материал стен
Газобетон
Общая площадь
104.5 м²
Жилая площадь
39.2 м²
Площадь застройки
76.4 м²
Приведенная площадь
100.44 м²
Количество жилых комнат/спален
2
Этажи
1 этаж + мансарда
Гараж
Нет гаража
Количество машин
2
Подвал / цокольный этаж
Без подвала
Длина дома
10.1 м
Ширина дома
7.4 м
Высота в коньке
7.3 м
Кровля
Металлочерепица
Облицовка внешних стен
Мокрая штукатурка
,
Облицовка камнем
Толщина несущих наружных стен
375 мм
Межэтажные перекрытия
По деревянным балкам
Внутренние не несущие перегородки
Кирпичные
Фундамент
Монолитная ж/бетонная плита
Терраса
Без террасы
Дополнительные
Сауна/баня внутри
Нет
Площадь кухни
8.2 м²
Количество санузлов
1
Окно в ванной комнате
Есть
Кладовая
1
Балкон / лоджия
Балкон
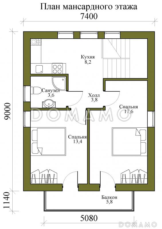
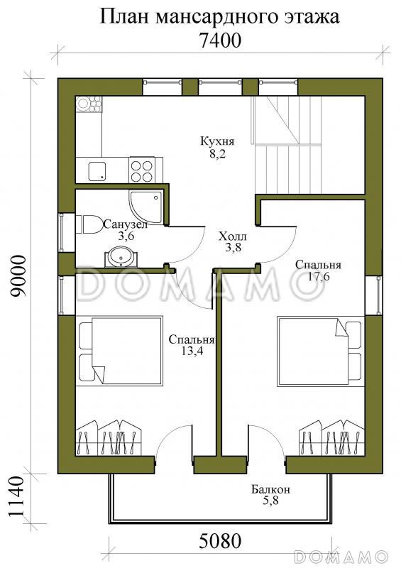
Планы помещений
Категории проекта: на 2 машины с мансардой

Похожие проекты
Состав проекта
Входит в стоимость
Цена, руб. Сроки, дней
Комплект архитектурно-строительных чертежей (АС) Входит в стоимость Готов к отправке
Готово к продаже
Цена, руб. Сроки, дней
Паспорт рабочего проекта 5 000 ₽ 3 рабочих дня в корзину
Дополнительная копия проекта формата А3 4 000 ₽ Готов к отправке в корзину
Электронная копия проекта (скан распечатанной версии) 4 000 ₽ 3 рабочих дня в корзину
Разрабатывается отдельно
Цена, руб. Сроки, дней
Адаптация фундамента (изменение типа фундамента) по запросу 14 рабочих дней
Дизайн интерьера (стоимость от 2200руб. за квад.метр площади) по запросу 30 рабочих дней
Внесение изменений в проект по запросу 20 рабочих дней
Зеркалирование проекта (для которого нет зеркальной версии) 8 000 ₽ 5 рабочих дней в корзину
Разработка Генплана участка, в масштабе 1:250 7 500 ₽ 5 рабочих дней в корзину
Фэншуй дома 20 000 ₽ 14 рабочих дней в корзину
Фэншуй участка 15 000 ₽ 14 рабочих дней в корзину
Фэншуй полная консультация дом+участок с выездом на объект 100 000 ₽ 30 рабочих дней в корзину
Опции проекта вы можете заказать в корзине при оформлении заказа
Отзывы покупателей
Рейтинг покупателей
0 / 5 5 5 1
На основе 1 оценок покупателей
0%
0%
0%
0%
0%
Отзывы о проекте D5313
Отзыв о проекте D5313
Чтобы оставить отзыв, пожалуйста авторизуйтесь.
Подбор строительной компании
Не знаете кому доверить строительство дома? Мы можем помочь! Подберем для вас из сотен наших партнеров несколько компаний с лучшем соотношением цена/качество под конкретно ваш запрос.
Подобрать