Главная Проекты гаражей Проект гаража на 3 машины с жилой мансардой

D226 Проект гаража на 3 машины с жилой мансардой

Сравнить проект В избранное
Проект гаража на 3 машины с жилой мансардой / 1
Проект гаража на 3 машины с жилой мансардой / 2
Проект гаража на 3 машины с жилой мансардой / 1
Проект гаража на 3 машины с жилой мансардой / 2
D226
190 м²
Подготовка проекта:
Готов к отправке
Стоимость проекта
Купить проект
Задайте вопросы по проекту нашему архитектору
8 (800) 200-28-83
Время работы: пн-вс: с 9:00 до 20:00
Задать вопрос по проекту

Технические характеристики
Общие
Материал стен
Кирпич
Общая площадь
190 м²
Жилая площадь
56.8 м²
Площадь застройки
150 м²
Приведенная площадь
186.7 м²
Количество жилых комнат/спален
2
Этажи
1 этаж + мансарда
Гараж
Встроенный гараж
Количество машин
3
Подвал / цокольный этаж
Без подвала
Длина дома
15.9 м
Ширина дома
8.8 м
Высота в коньке
7.32 м
Облицовка внешних стен
Облицовочный кирпич
Толщина несущих наружных стен
510 мм
Межэтажные перекрытия
Монолитные
Внутренние не несущие перегородки
Кирпичные
Фундамент
Монолитная ж/бетонная плита
Терраса
Без террасы
Дополнительные
Мансардные окна
Есть
Сауна/баня внутри
Нет
Площадь гостиной
11.5 м²
Площадь кухни
9 м²
Количество санузлов
2
Окно в ванной комнате
Есть
Котельная
Есть
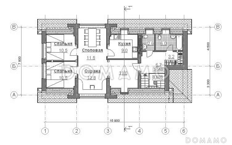
Планы помещений
Фасады
Категории проекта: на 3 машины с мансардой

Похожие проекты
Состав проекта
Входит в стоимость
Цена, руб. Сроки, дней
Комплект архитектурно-строительных чертежей (АС) Входит в стоимость Готов к отправке
Разрабатывается отдельно
Цена, руб. Сроки, дней
Адаптация фундамента (изменение типа фундамента) по запросу 14 рабочих дней
Дизайн интерьера (стоимость от 2200руб. за квад.метр площади) по запросу 30 рабочих дней
Внесение изменений в проект по запросу 20 рабочих дней
Фэншуй дома 20 000 ₽ 14 рабочих дней в корзину
Фэншуй участка 15 000 ₽ 14 рабочих дней в корзину
Фэншуй полная консультация дом+участок с выездом на объект 100 000 ₽ 30 рабочих дней в корзину
Опции проекта вы можете заказать в корзине при оформлении заказа
Отзывы покупателей
Рейтинг покупателей
0 / 5 5 5 1
На основе 1 оценок покупателей
0%
0%
0%
0%
0%
Отзывы о проекте D226
Отзыв о проекте D226
Чтобы оставить отзыв, пожалуйста авторизуйтесь.
Подбор строительной компании
Не знаете кому доверить строительство дома? Мы можем помочь! Подберем для вас из сотен наших партнеров несколько компаний с лучшем соотношением цена/качество под конкретно ваш запрос.
Подобрать