Главная Проекты домов Проект дома с двусветной гостиной и бассейном

D905 Проект дома с двусветной гостиной и бассейном

Сравнить проект В избранное
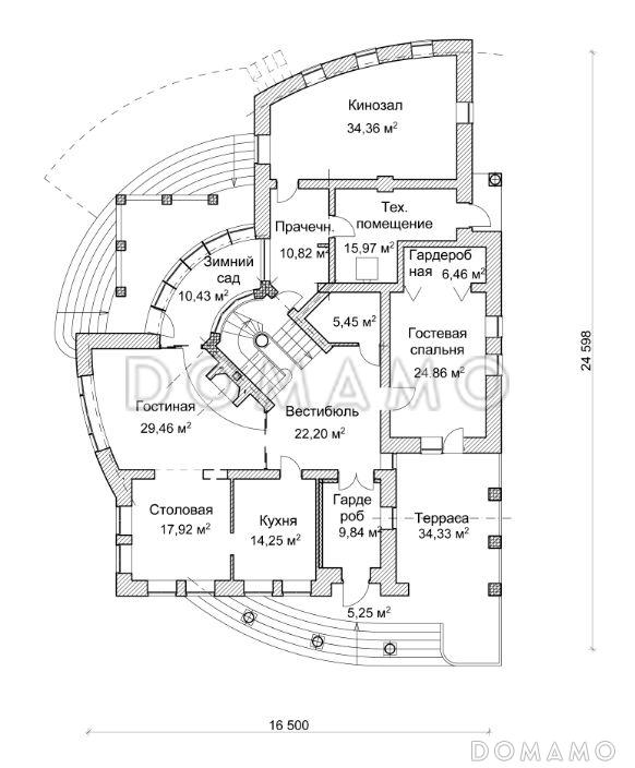
Проект дома с двусветной гостиной и бассейном / 1
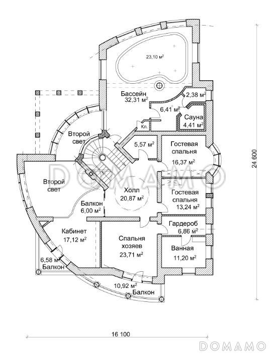
Проект дома с двусветной гостиной и бассейном / 2
Проект дома с двусветной гостиной и бассейном / 3
Проект дома с двусветной гостиной и бассейном / 1
Проект дома с двусветной гостиной и бассейном / 2
Проект дома с двусветной гостиной и бассейном / 3
D905
455 м²
Подготовка проекта:
Готов к отправке
Стоимость проекта
Купить проект
Задайте вопросы по проекту нашему архитектору
8 (800) 200-28-83
Время работы: пн-вс: с 9:00 до 20:00
Задать вопрос по проекту

Технические характеристики
Общие
Материал стен
Кирпич
Общая площадь
455 м²
Жилая площадь
133.8 м²
Площадь застройки
370 м²
Приведенная площадь
703.31 м²
Количество жилых комнат/спален
7
Этажи
2 этажа + мансарда
Гараж
Нет гаража
Подвал / цокольный этаж
С окнами
Длина дома
24.6 м
Ширина дома
16.5 м
Кровля
Гибкая черепица
Облицовка внешних стен
Мокрая штукатурка
,
Облицовка камнем
Толщина несущих наружных стен
640 мм
Межэтажные перекрытия
Сборно-монолитные
Внутренние не несущие перегородки
Кирпичные
Фундамент
Ленточный заглубленный из ФБС
Терраса
Терраса крытая
Дополнительные
Окна
Панорамные окна
,
Круглые окна
Второй свет
Есть
Камин
Есть
Сауна/баня внутри
Есть
Бассейн
Есть
Площадь гостиной
29.4 м²
Площадь кухни
14.2 м²
Количество санузлов
1
Окно в ванной комнате
Есть
Котельная
Есть
Кабинет
Есть
Постирочная
Есть
Хозяйский санузел
Есть
Хозяйская гардеробная
Есть
Кладовая
9
Зимний сад
Есть
Балкон / лоджия
Балкон
Планы помещений
Фасады
Описание проекта

Изысканный особняк с четырьмя спальнями подойдет для пары с двумя-тремя детьми. Два этажа дополнены цоколем и мансардой с техническими помещениями, летними комнатами отдыха и мастерской. В центральной части крыши установлен световой фонарь — небольшой застекленный купол для дополнительного освещения этажа под ним.

На первом этаже предусмотрена спальня с отдельным входом с террасы, гостиная, столовая и кухня. Противоположную сторону занимает кинозал и подсобные помещения. Над кинозалом размещен бассейн с сауной. Остальная часть второго этажа распланирована на три спальни, кабинет, санузлы и второй свет для гостиной и зимнего сада внизу.

Преимущества и особенности

  • в проекте предусмотрена мастер-спальня с балконом, гардеробной и ванной,

  • бассейн с сауной станет приятным дополнением к стандартным бытовым удобствам,

  • множество подсобных и вспомогательных помещений дают возможность не захламлять жилые комнаты ненужными вещами.

Категории проекта: с мансардой для постоянного проживания кирпич современные от 400 до 500 кв.м кирпичные дома с мансардой в европейском стиле с террасой из кирпича с террасой готовые с цокольным этажом загородные из кирпича двухэтажные из кирпича двухэтажные из кирпича с мансардой двухэтажные двухэтажные с мансардой кирпичные с цокольным этажом кирпичные с котельной с котельной со вторым светом с баней с цокольным этажом и мансардой с бассейном загородные с четырехскатной крышей с баней и бассейном с камином с сауной с гардеробной с балконом с зимним садом с панорамным остеклением кирпичные с баней кирпичные с бассейном двухэтажные с цокольным этажом современные кирпичные Проекты двухэтажных домов с террасой Проекты двухэтажных домов с верандой на две семьи без гаража с террасой и камином с кабинетом с мансардой и террасой каменные с панорамными окнами и террасой двухэтажные с сауной с балконом и террасой большие сложной формы двухэтажные с камином двухэтажные со вторым светом двухэтажные с панорамными окнами двухэтажные с балконом двухэтажные с балконом и террасой двухэтажные с бассейном двухэтажные в современном стиле двухэтажные без гаража с мансардой с баней с мансардой с котельной с мансардой с зимним садом с мансардой с камином с мансардой с бассейном с мансардой с четырехскатной крышей с мансардой современные с мансардой с панорамными окнами с мансардой со вторым светом с мансардой с балконом с мансардой сложной формы с мансардой готовые с мансардой для постоянного проживания с мансардой элитные с мансардой большие современные без гаража современные с панорамными окнами современные с террасой современные большие современные со вторым светом современные с подвалом большие готовые большие с четырехскатной крышей большие с вторым светом большие с балконом большие сложной формы большие с камином большие с бассейном большие с окном в ванной комнате большие с панорамными окнами большие без гаража большие с изолированной кухней большие с террасой большие с баней большие с прачечной большие с котельной большие с кабинетом большие с мастер-спальней большие с зимним садом недорогие с панорамными окнами из клееного бруса без гаража Показать все категории Скрыть категории

Похожие проекты
Состав проекта
Входит в стоимость
Цена, руб. Сроки, дней
Комплект архитектурно-строительных чертежей (АС) Входит в стоимость Готов к отправке
Разрабатывается отдельно
Цена, руб. Сроки, дней
Адаптация фундамента (изменение типа фундамента) по запросу 14 рабочих дней
Дизайн интерьера (стоимость от 2200руб. за квад.метр площади) по запросу 30 рабочих дней
Внесение изменений в проект по запросу 20 рабочих дней
Фэншуй дома 20 000 ₽ 14 рабочих дней в корзину
Фэншуй участка 15 000 ₽ 14 рабочих дней в корзину
Фэншуй полная консультация дом+участок с выездом на объект 100 000 ₽ 30 рабочих дней в корзину
Опции проекта вы можете заказать в корзине при оформлении заказа
Отзывы покупателей
Рейтинг покупателей
0 / 5 5 5 1
На основе 1 оценок покупателей
0%
0%
0%
0%
0%
Отзывы о проекте D905
Отзыв о проекте D905
Чтобы оставить отзыв, пожалуйста авторизуйтесь.
Подбор строительной компании
Не знаете кому доверить строительство дома? Мы можем помочь! Подберем для вас из сотен наших партнеров несколько компаний с лучшем соотношением цена/качество под конкретно ваш запрос.
Подобрать