Главная Проекты домов Проект загородного дома с двумя балконами

D84 Проект загородного дома с двумя балконами

Сравнить проект В избранное
Технические характеристики
Общие
Материал стен
Газобетон
Общая площадь
285 м²
Жилая площадь
93.7 м²
Приведенная площадь
236.815 м²
Количество жилых комнат/спален
4
Этажи
1 этаж + мансарда
Гараж
Нет гаража
Подвал / цокольный этаж
Без окон
Длина дома
13.6 м
Ширина дома
9.6 м
Кровля
Металлочерепица
Облицовка внешних стен
Мокрая штукатурка
,
Облицовочный кирпич
Толщина несущих наружных стен
400 мм
Межэтажные перекрытия
Монолитные
Внутренние не несущие перегородки
Газобетонные
,
Кирпичные
Фундамент
Ленточный монолитный
Терраса
Терраса открытая
,
Терраса крытая
Дополнительные
Окна
Окна до пола
Мансардные окна
Есть
Сауна/баня внутри
Нет
Площадь гостиной
27.28 м²
Площадь кухни
14.04 м²
Количество санузлов
2
Окно в ванной комнате
Есть
Котельная
Есть
Кабинет
Есть
Хозяйская гардеробная
Есть
Кладовая
4
Балкон / лоджия
Балкон
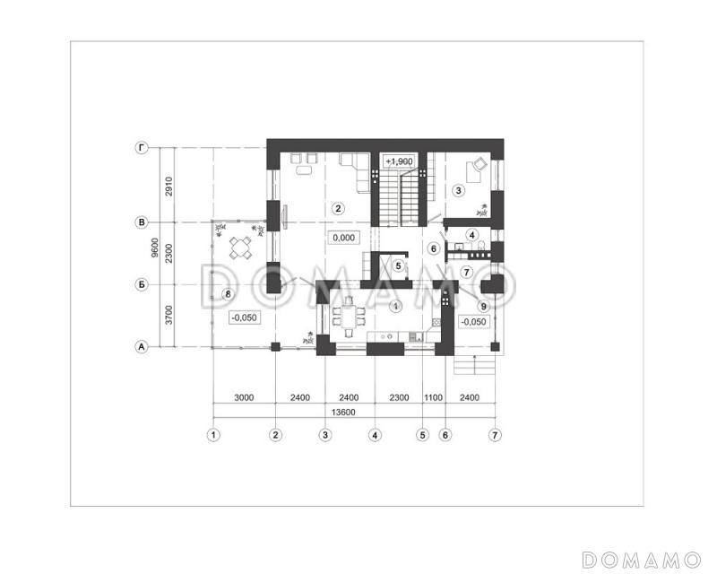
Планы помещений
Описание проекта

Двухэтажный дом с подвальным помещением и двумя балконами со стороны выглядит как яркая игрушка среди чистеньких газонов. Внутри же это – функциональное жилье с наличием множества полезных помещений и удобствами планировки:

  • Открытые террасы с навесом от дождя,
  • Три отдельных просторных спальни, в которых возможно размещение удобных мебельных комплектов,
  • Два санузла в разных частях дома для свободного использования всеми членами семьи,
  • Мансардные окна для лучшего освещения комнат второго этажа.
Категории проекта: с мансардой для постоянного проживания пенобетон современные от 200 до 300 кв.м в европейском стиле с террасой из пеноблоков с мансардой из газобетона с цокольным этажом из газобетона готовые из газобетона с мансардой с цокольным этажом одноэтажные с мансардой одноэтажные с подвалом одноэтажные с котельной с подвалом с котельной одноэтажные из газобетона из газосиликатных блоков с двухскатной крышей загородные из керамзитобетонных блоков с гардеробной прямоугольные с балконом из газобетона с террасой из блоков одноэтажные из блоков из блоков с мансардой из пеноблоков с террасой загородные из газобетона Проекты одноэтажных домов с террасой Типовые проекты загородных одноэтажных домов без гаража одноэтажные без гаража облицованные кирпичом с кабинетом одноэтажных из керамзитобетонных блоков одноэтажные с 4 спальнями с мансардой и террасой полутораэтажные с 4 спальнями с балконом и террасой из пеноблоков загородные одноэтажные с мансардными окнами с мансардой с котельной с мансардой с двухскатной крышей с мансардой современные с мансардой с окнами до пола с мансардой с мансардными окнами с мансардой с балконом с мансардой прямоугольные с мансардой готовые с мансардой для постоянного проживания одноэтажные из газобетона с террасой одноэтажные из газобетона с мансардой одноэтажные из газобетона с 4 спальнями с подвалом из газобетона от 200 до 300 кв.м из газобетона с двухскатной крышей из газобетона современные из газобетона с балконом из газобетона с котельной из газобетона прямоугольные из газобетона готовые из газобетона с четырьмя спальнями из газобетона с кабинетом из газобетона с изолированной кухней из газобетона для постоянного проживания двухэтажные из газобетона без гаража двухэтажные из газобетона с террасой двухэтажные из газобетона с кабинетом двухэтажные из газобетона с котельной двухэтажные из газобетона современные двухэтажные из газобетона с двухскатной крышей двухэтажные из газобетона с подвалом двухэтажные из газобетона с изолированной кухней двухэтажные из газобетона с 4 спальнями из газобетона с мансардой современные из газобетона с мансардой с балконом из газобетона с мансардой с террасой из газобетона с мансардой для постоянного проживания из газобетона с мансардой готовые из газобетона с мансардой с двухскатной крышей из газобетона с мансардой с 4 спальнями из газобетона с мансардой с изолированной кухней из газобетона с мансардой с гардеробной из газобетона с мансардой прямоугольные одноэтажные с мансардой для постоянного проживания одноэтажные с мансардой с изолированной кухней одноэтажные с мансардой современные одноэтажные с мансардой с балконом современные без гаража современные с двухскатной крышей современные с окнами в пол современные с террасой современные с подвалом из пеноблоков в современном стиле из пеноблоков с двухскатной крышей из пеноблоков с окнами до пола из пеноблоков прямоугольные из пеноблоков с балконом из пеноблоков для постоянного проживания из пеноблоков готовые из пеноблоков от 200 до 300 м2 из пеноблоков с 4 спальнями из пеноблоков с изолированной кухней из клееного бруса без гаража Показать все категории Скрыть категории

Похожие проекты
Состав проекта
Входит в стоимость
Цена, руб. Сроки, дней
Комплект архитектурно-строительных чертежей (АС) Входит в стоимость Готов к отправке
Паспорт рабочего проекта Входит в стоимость Готов к отправке
Разрабатывается отдельно
Цена, руб. Сроки, дней
Адаптация фундамента (изменение типа фундамента) по запросу 14 рабочих дней
Дизайн интерьера (стоимость от 2200руб. за квад.метр площади) по запросу 30 рабочих дней
Внесение изменений в проект по запросу 20 рабочих дней
Фэншуй дома 20 000 ₽ 14 рабочих дней в корзину
Фэншуй участка 15 000 ₽ 14 рабочих дней в корзину
Фэншуй полная консультация дом+участок с выездом на объект 100 000 ₽ 30 рабочих дней в корзину
Опции проекта вы можете заказать в корзине при оформлении заказа
Предложения строителей Выбрать регион
Минимальная
8 051 880 ₽
Стандарт
9 946 440 ₽
Под чистовую отделку
13 025 100 ₽
Показать подробные комплектации
Минимальная
19 928 403 ₽
Стандарт
23 445 180 ₽
Под чистовую отделку
30 478 734 ₽
Показать подробные комплектации
Минимальная
10 131 159 ₽
Стандарт
15 033 333 ₽
Под чистовую отделку
23 857 246 ₽
Показать подробные комплектации
Минимальная
8 288 700 ₽
Стандарт
9 946 440 ₽
Под чистовую отделку
11 130 540 ₽
Показать подробные комплектации
Минимальная
7 643 602 ₽
Стандарт
11 218 163 ₽
Под чистовую отделку
12 002 037 ₽
Показать подробные комплектации
Минимальная
6 630 960 ₽
Стандарт
7 578 240 ₽
Под чистовую отделку
9 946 440 ₽
Показать подробные комплектации
Подбор строительной компании
Не знаете кому доверить строительство дома? Мы можем помочь! Подберем для вас из сотен наших партнеров несколько компаний с лучшем соотношением цена/качество под конкретно ваш запрос.
Подобрать
Посмотреть еще 32 компании Свернуть
Отзывы покупателей
Рейтинг покупателей
0 / 5 5 5 1
На основе 1 оценок покупателей
0%
0%
0%
0%
0%
Отзывы о проекте D84
Отзыв о проекте D84
Чтобы оставить отзыв, пожалуйста авторизуйтесь.
Подбор строительной компании
Не знаете кому доверить строительство дома? Мы можем помочь! Подберем для вас из сотен наших партнеров несколько компаний с лучшем соотношением цена/качество под конкретно ваш запрос.
Подобрать