Главная Проекты домов Проект дома с мансардой, крытой террасой и тремя спальными комнатами

D734 Проект дома с мансардой, крытой террасой и тремя спальными комнатами

Сравнить проект В избранное
Проект дома с мансардой, крытой террасой и тремя спальными комнатами / 1
Проект дома с мансардой, крытой террасой и тремя спальными комнатами / 2
Проект дома с мансардой, крытой террасой и тремя спальными комнатами / 1
Проект дома с мансардой, крытой террасой и тремя спальными комнатами / 2
D734
140 м²
Подготовка проекта:
Готов к отправке
Стоимость проекта
Купить проект
Задайте вопросы по проекту нашему архитектору
8 (800) 200-28-83
Время работы: пн-вс: с 9:00 до 20:00
Задать вопрос по проекту

Технические характеристики
Общие
Материал стен
Газобетон
Общая площадь
140 м²
Жилая площадь
71.1 м²
Приведенная площадь
140.59 м²
Количество жилых комнат/спален
3
Этажи
1 этаж + мансарда
Гараж
Нет гаража
Подвал / цокольный этаж
Без подвала
Длина дома
12.3 м
Ширина дома
9.4 м
Высота в коньке
9.6 м
Кровля
Гибкая черепица
Облицовка внешних стен
Мокрая штукатурка
Толщина несущих наружных стен
375-400 мм
Межэтажные перекрытия
По деревянным балкам
Внутренние не несущие перегородки
Каркасно-обшивные
Фундамент
Монолитная ж/бетонная плита
Терраса
Терраса крытая
Дополнительные
Окна
Окна до пола
Мансардные окна
Есть
Камин
Есть
Сауна/баня внутри
Нет
Площадь гостиной
20.3 м²
Площадь кухни
18.6 м²
Количество санузлов
2
Котельная
Есть
Кладовая
1
Планы помещений
Фасады
Описание проекта

Двухэтажный дом с тремя спальнями подойдет для жизни семьи из 3-4 человек. Здание строится из газобетона. Входная группа представляет собой крытую террасу, крыша которой поддерживается тремя колоннами. Оригинальный вид экстерьеру также придает круглое чердачное окошко и эркер с высокими окнами.

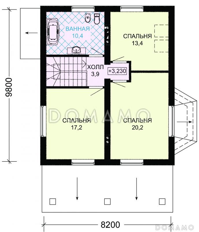
Планировка первого этажа включает в себя гостиную, объединенную с кухней-столовой, а также котельную, ванную и просторную прихожую. На мансарде расположены 3 спальни разной площади и ванная.

Преимущества и особенности

  • санузлы предусмотрены на обоих этажах,

  • под лестницей имеется кладовая,

  • камин и эркер делают гостиную-столовую уютнее и оригинальнее.

Категории проекта: с мансардой для постоянного проживания пенобетон в классическом стиле от 100 до 200 кв.м с эркером с террасой из пеноблоков с мансардой из газобетона с мансардой и эркером из газобетона с эркером из газобетона готовые из газобетона с мансардой одноэтажные с мансардой одноэтажные до 150 кв. м. одноэтажные с котельной с котельной одноэтажные из газобетона из газосиликатных блоков до 150 кв.м до 200 кв.м 9х12 загородные с мансардной крышей из керамзитобетонных блоков с камином прямоугольные в русском стиле в стиле эклектика из газобетона с террасой с эркером и мансардой из блоков одноэтажные из блоков из блоков с мансардой из блоков с эркером Проекты домов из пеноблоков с эркером из пеноблоков с террасой загородные из газобетона Проекты одноэтажных домов с эркером Проекты одноэтажных домов с террасой Типовые проекты загородных одноэтажных домов без гаража одноэтажные без гаража с террасой и камином одноэтажные с тремя спальнями Проекты домов с тремя спальнями одноэтажных из керамзитобетонных блоков с мансардой до 150 кв м с мансардой и террасой полутораэтажные 9 на 12 с мансардой одноэтажные до 200 кв м до 140 кв м из пеноблоков загородные одноэтажные с мансардными окнами с мансардой с котельной с мансардой с камином с мансардой в классическом стиле с мансардой с окнами до пола с мансардой с мансардными окнами с мансардой прямоугольные с мансардой готовые с мансардой для постоянного проживания с мансардой до 200 кв.м с мансардой от 100 до 150 кв.м одноэтажные из газобетона с террасой одноэтажные из газобетона до 150 кв. м одноэтажные из газобетона с мансардой одноэтажные из газобетона с 3 спальнями мансардная крыша из газобетона до 150 кв.м из газобетона до 200 кв.м из газобетона от 100 до 200 кв.м из газобетона в классическом стиле из газобетона с котельной из газобетона прямоугольные из газобетона готовые из газобетона с камином из газобетона с большой кухней из газобетона с тремя спальнями из газобетона 9х12 из газобетона для постоянного проживания двухэтажные из газобетона без гаража двухэтажные из газобетона с террасой двухэтажные из газобетона с камином двухэтажные из газобетона с котельной двухэтажные из газобетона классические двухэтажные из газобетона до 150 кв. м двухэтажные из газобетона до 200 кв. м двухэтажные из газобетона без подвала двухэтажные из газобетона с эркером двухэтажные из газобетона с 3 спальнями из газобетона с мансардой в стиле эклектика из газобетона с мансардой в классическом стиле из газобетона с мансардой в русском стиле из газобетона с мансардой с террасой из газобетона с мансардой с камином из газобетона с мансардой для постоянного проживания из газобетона с мансардой готовые из газобетона с мансардой с 3 спальнями из газобетона с мансардой с большой кухней из газобетона с мансардой прямоугольные одноэтажные с мансардой для постоянного проживания одноэтажные с мансардой с большой кухней одноэтажные с мансардой классические одноэтажные с мансардой в русском стиле одноэтажные с мансардой в стиле эклектика классические для постоянного проживания классические без гаража классические с 3 спальнями классические с окнами в пол классические с террасой классические готовые классические с котельной классические с большой кухней классические без подвала классические с 2 санузлами классические прямоугольные классические с камином классические с мансардной крышей до 150 кв.м для постоянного проживания до 150 кв.м без гаража до 150 кв.м с окнами до пола до 150 кв.м классические до 150 кв.м русские до 150 кв.м эклектика до 150 кв.м готовые до 150 кв.м с мансардными окнами до 150 кв.м прямоугольные до 150 кв.м с котельной до 150 кв.м без бани до 150 кв.м с террасой до 150 кв.м без подвала до 150 кв.м с 3 спальнями до 150 кв.м с большой кухней до 150 кв.м с камином из пеноблоков в стиле эклектика из пеноблоков в классическом стиле из пеноблоков с мансардной крышей из пеноблоков с окнами до пола из пеноблоков прямоугольные из пеноблоков для постоянного проживания из пеноблоков готовые из пеноблоков с камином из пеноблоков 9х12 из пеноблоков до 150 м кв. из пеноблоков от 100 до 200 м2 из пеноблоков с 3 спальнями из пеноблоков с большой кухней в русском стиле без гаража в русском стиле с террасой в русском стиле с окнами в пол в русском стиле прямоугольные в русском стиле для постоянного проживания в русском стиле для с камином в русском стиле без бани в русском стиле с котельной в русском стиле от 100 до 200 кв м в русском стиле 10х12 в русском стиле 9х12 из клееного бруса без гаража Показать все категории Скрыть категории

Похожие проекты
Состав проекта
Входит в стоимость
Цена, руб. Сроки, дней
Комплект архитектурно-строительных чертежей (АС) Входит в стоимость 3 рабочих дня
Готово к продаже
Цена, руб. Сроки, дней
Зеркальная версия проекта Входит в стоимость 3 рабочих дня
Паспорт рабочего проекта 5 000 ₽ 3 рабочих дня в корзину
Инженерные разделы: ВК + ОВ + ЭО 23 000 ₽ 3 рабочих дня в корзину
Дополнительная копия проекта формата А3 3 000 ₽ 3 рабочих дня в корзину
Две дополнительные копии проекта формата А3 + 1 паспорт рабочего проекта 10 100 ₽ 3 рабочих дня в корзину
Электронная копия проекта (скан распечатанной версии) 4 000 ₽ 3 рабочих дня в корзину
Разрабатывается отдельно
Цена, руб. Сроки, дней
Адаптация фундамента (изменение типа фундамента) по запросу 14 рабочих дней
Дизайн интерьера (стоимость от 2200руб. за квад.метр площади) по запросу 30 рабочих дней
Внесение изменений в проект по запросу 20 рабочих дней
Фэншуй дома 20 000 ₽ 14 рабочих дней в корзину
Фэншуй участка 15 000 ₽ 14 рабочих дней в корзину
Фэншуй полная консультация дом+участок с выездом на объект 100 000 ₽ 30 рабочих дней в корзину
Опции проекта вы можете заказать в корзине при оформлении заказа
Предложения строителей Республика Башкортостан
Отзывы покупателей
Рейтинг покупателей
0 / 5 5 5 1
На основе 1 оценок покупателей
0%
0%
0%
0%
0%
Отзывы о проекте D734
Отзыв о проекте D734
Чтобы оставить отзыв, пожалуйста авторизуйтесь.
Подбор строительной компании
Не знаете кому доверить строительство дома? Мы можем помочь! Подберем для вас из сотен наших партнеров несколько компаний с лучшем соотношением цена/качество под конкретно ваш запрос.
Подобрать