Главная Проекты домов Проект двухэтажного жилого дома со строгой отделкой и удобной террасой

D713 Проект двухэтажного жилого дома со строгой отделкой и удобной террасой

Сравнить проект В избранное
Проект двухэтажного жилого дома со строгой отделкой и удобной террасой / 1
Проект двухэтажного жилого дома со строгой отделкой и удобной террасой / 2
Проект двухэтажного жилого дома со строгой отделкой и удобной террасой / 1
Проект двухэтажного жилого дома со строгой отделкой и удобной террасой / 2
D713
156 м²
Подготовка проекта:
3 рабочих дня
Стоимость проекта
Купить проект
Задайте вопросы по проекту нашему архитектору
8 (800) 200-28-83
Время работы: пн-вс: с 9:00 до 20:00
Задать вопрос по проекту

Технические характеристики
Общие
Материал стен
Газобетон
Общая площадь
156 м²
Жилая площадь
94.5 м²
Площадь застройки
125 м²
Приведенная площадь
151.68 м²
Количество жилых комнат/спален
4
Этажи
2 этажа
Гараж
Нет гаража
Подвал / цокольный этаж
Без подвала
Длина дома
11 м
Ширина дома
9 м
Высота в коньке
8.9 м
Кровля
Металлочерепица
Облицовка внешних стен
Деревянная вагонка
,
Мокрая штукатурка
,
Облицовка камнем
Толщина несущих наружных стен
400 мм
Межэтажные перекрытия
Монолитные
Внутренние не несущие перегородки
Газобетонные
,
Каркасно-обшивные
Фундамент
Монолитная ж/бетонная плита
Терраса
Терраса крытая
Дополнительные
Окна
Окна до пола
,
Панорамные окна
Камин
Есть
Сауна/баня внутри
Нет
Площадь гостиной
22.8 м²
Площадь кухни
12.6 м²
Количество санузлов
2
Котельная
Есть
Кабинет
Есть
Кладовая
1
Балкон / лоджия
Балкон
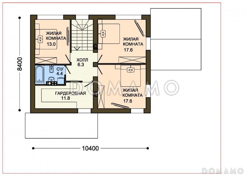
Планы помещений
Фасады
Описание проекта

Двухэтажный дом с двумя крытыми террасами свободно вместит до 8-ми человек — хозяев и их гостей. Внешнее оформление экстерьера гармонично вписывает его в природный ландшафт загородной зоны, а подбор материалов и внутреннее устройство специально продуманы для размещения разновозрастной семьи. Для этого в проекте предусмотрены:

  • Возведение стен из пеноблоков для обеспечения энергоэффективности постройки,
  • Наличие 4-х жилых комнат, одна из которых находится на первом этаже для удобства пожилых жильцов или гостей,
  • Каминный зал, смежный с кухней-столовой для удобства проведения домашних торжеств.
Категории проекта: для постоянного проживания пенобетон современные от 100 до 200 кв.м в европейском стиле с террасой из газобетона в немецком стиле из газобетона готовые в стиле минимализм двухэтажные с котельной двухэтажные из газобетона из газосиликатных блоков двухэтажные из пеноблоков до 200 кв.м с двухскатной крышей 9х12 загородные из керамзитобетонных блоков с камином прямоугольные с балконом с панорамным остеклением из газобетона с террасой из блоков двухэтажные из блоков из пеноблоков с террасой загородные из газобетона Проекты двухэтажных домов с террасой Проекты двухэтажных домов с верандой без гаража с террасой и камином с кабинетом каменные двухэтажные 200 кв м с 4 спальнями с панорамными окнами и террасой 11x9 двухэтажные от 150 до 200 кв м с балконом и террасой из пеноблоков загородные двухэтажные до 180 кв.м двухэтажные с камином двухэтажные с двускатной крышей двухэтажные с панорамными окнами двухэтажные с 4 спальнями двухэтажные с балконом двухэтажные с балконом и террасой двухэтажные в современном стиле двухэтажные без гаража из газобетона до 200 кв.м из газобетона от 100 до 200 кв.м из газобетона с двухскатной крышей из газобетона в европейском стиле из газобетона в стиле минимализм из газобетона современные из газобетона с панорамными окнами из газобетона с балконом из газобетона с котельной из газобетона прямоугольные из газобетона готовые из газобетона с камином из газобетона с четырьмя спальнями из газобетона с кабинетом из газобетона 8х11 из газобетона для постоянного проживания двухэтажные из газобетона без гаража двухэтажные из газобетона с террасой двухэтажные из газобетона с камином двухэтажные из газобетона с кабинетом двухэтажные из газобетона с котельной двухэтажные из газобетона в европейском стиле двухэтажные из газобетона в стиле минимализм двухэтажные из газобетона современные двухэтажные из газобетона с двухскатной крышей двухэтажные из газобетона до 200 кв. м двухэтажные из газобетона без подвала двухэтажные из газобетона с 4 спальнями современные без гаража современные с двухскатной крышей современные с панорамными окнами современные с окнами в пол современные с террасой современные от 100 до 200 кв. м европейские для постоянного проживания европейские готовые европейские без подвала европейские с террасой европейские с 2 санузлами европейские с котельной европейские с кабинетом европейские с кладовой европейские с балконом европейские прямоугольные европейские с панорамными окнами европейские с окнами в пол европейские с двухскатной крышей европейские с камином европейские 100-200 м2 из пеноблоков в современном стиле из пеноблоков в европейском стиле из пеноблоков в стиле минимализм из пеноблоков с двухскатной крышей из пеноблоков с окнами до пола из пеноблоков с панорамными окнами из пеноблоков прямоугольные из пеноблоков с балконом из пеноблоков для постоянного проживания из пеноблоков готовые из пеноблоков с камином из пеноблоков от 100 до 200 м2 из пеноблоков с 4 спальнями в стиле минимализм для постоянного проживания в стиле минимализм без гаража в стиле минимализм прямоугольные в стиле минимализм с двухскатной крышей в стиле минимализм с окнами в пол в стиле минимализм с панорамными окнами в стиле минимализм с террасой в стиле минимализм с 4 спальнями в стиле минимализм с кабинетом в стиле минимализм с котельной в стиле минимализм с камином в стиле минимализм недорогие в стиле минимализм от 100 до 200 м2 в стиле минимализм с монолитным фундаментом недорогие двухэтажные недорогие без гаража недорогие с террасой недорогие для постоянного проживания недорогие с двухскатной крышей недорогие с окнами до пола недорогие с панорамными окнами недорогие без бани недорогие с кабинетом недорогие с котельной недорогие с балконом недорогие с камином недорогие прямоугольные недорогие от 100 до 200 м2 из клееного бруса без гаража Показать все категории Скрыть категории

Похожие проекты
Состав проекта
Входит в стоимость
Цена, руб. Сроки, дней
Комплект архитектурно-строительных чертежей (АС) Входит в стоимость 3 рабочих дня
Готово к продаже
Цена, руб. Сроки, дней
Паспорт рабочего проекта 4 000 ₽ 3 рабочих дня в корзину
Дополнительная копия проекта формата А3 3 000 ₽ 3 рабочих дня в корзину
Две дополнительные копии проекта формата А3 + 1 паспорт рабочего проекта 10 000 ₽ 3 рабочих дня в корзину
Разрабатывается отдельно
Цена, руб. Сроки, дней
Адаптация фундамента (изменение типа фундамента) по запросу 14 рабочих дней
Дизайн интерьера (стоимость от 2200руб. за квад.метр площади) по запросу 30 рабочих дней
Внесение изменений в проект по запросу 20 рабочих дней
Фэншуй дома 20 000 ₽ 14 рабочих дней в корзину
Фэншуй участка 15 000 ₽ 14 рабочих дней в корзину
Фэншуй полная консультация дом+участок с выездом на объект 100 000 ₽ 30 рабочих дней в корзину
Опции проекта вы можете заказать в корзине при оформлении заказа
Предложения строителей Республика Башкортостан
Отзывы покупателей
Рейтинг покупателей
0 / 5 5 5 1
На основе 1 оценок покупателей
0%
0%
0%
0%
0%
Отзывы о проекте D713
Отзыв о проекте D713
Чтобы оставить отзыв, пожалуйста авторизуйтесь.
Подбор строительной компании
Не знаете кому доверить строительство дома? Мы можем помочь! Подберем для вас из сотен наших партнеров несколько компаний с лучшем соотношением цена/качество под конкретно ваш запрос.
Подобрать