Главная Проекты домов Проект современного дома с большой гостиной, кабинетом и мастер-спальней на первом этаже

D6884 Проект современного дома с большой гостиной, кабинетом и мастер-спальней на первом этаже

Сравнить проект В избранное
Технические характеристики
Общие
Материал стен
Газобетон
Общая площадь
263 м²
Жилая площадь
110.93 м²
Площадь застройки
267.68 м²
Приведенная площадь
271.033 м²
Количество жилых комнат/спален
5
Этажи
2 этажа
Гараж
Нет гаража
Подвал / цокольный этаж
Без подвала
Длина дома
22.01 м
Ширина дома
14.47 м
Высота в коньке
8.6 м
Кровля
Фальцевая кровля
Облицовка внешних стен
Деревянная вагонка
,
Керамогранит
,
Облицовочный кирпич
Толщина несущих наружных стен
500 мм
Межэтажные перекрытия
Монолитные
Внутренние не несущие перегородки
Газобетонные
Фундамент
Монолитная ж/бетонная плита
Терраса
Терраса крытая
Дополнительные
Камин
Есть
Сауна/баня внутри
Нет
Площадь гостиной
32.29 м²
Площадь кухни
26.65 м²
Количество санузлов
4
Окно в ванной комнате
Есть
Котельная
Есть
Кабинет
Есть
Постирочная
Есть
Хозяйский санузел
Есть
Хозяйская гардеробная
Есть
Кладовая
4
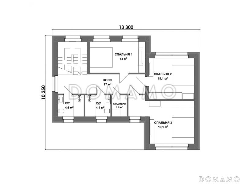
Планы помещений
Описание проекта
Компания Domamo предлагает проект современного дома с большой гостиной, кабинетом и мастер-спальней на первом этаже D6884. Общая площадь - 263 м2, размер - 22.01х14.47 м. Фундамент - монолитная ж/бетонная плита, кровля - фальцевая кровля, внешняя отделка - облицовочный кирпич деревянная вагонка керамогранит. Для заказа проекта или внесения изменений свяжитесь с нами с помощью форм обратной связи на сайте или по телефону +7 (831) 231-05-02.

Похожие проекты
Состав проекта
Входит в стоимость
Цена, руб. Сроки, дней
Комплект архитектурно-строительных чертежей (АС) Входит в стоимость 5 рабочих дней
Разрабатывается отдельно
Цена, руб. Сроки, дней
Адаптация фундамента (изменение типа фундамента) по запросу 14 рабочих дней
Дизайн интерьера (стоимость от 2200руб. за квад.метр площади) по запросу 30 рабочих дней
Внесение изменений в проект по запросу 20 рабочих дней
Фэншуй дома 20 000 ₽ 14 рабочих дней в корзину
Фэншуй участка 15 000 ₽ 14 рабочих дней в корзину
Фэншуй полная консультация дом+участок с выездом на объект 100 000 ₽ 30 рабочих дней в корзину
Опции проекта вы можете заказать в корзине при оформлении заказа
Предложения строителей Выбрать регион
Минимальная
9 215 020 ₽
Стандарт
11 383 259 ₽
Под чистовую отделку
14 906 649 ₽
Показать подробные комплектации
Минимальная
22 807 174 ₽
Стандарт
26 831 969 ₽
Под чистовую отделку
34 881 561 ₽
Показать подробные комплектации
Минимальная
11 594 663 ₽
Стандарт
17 204 984 ₽
Под чистовую отделку
27 303 562 ₽
Показать подробные комплектации
Минимальная
9 486 049 ₽
Стандарт
11 383 259 ₽
Под чистовую отделку
12 738 409 ₽
Показать подробные комплектации
Минимальная
8 747 764 ₽
Стандарт
12 838 691 ₽
Под чистовую отделку
13 735 800 ₽
Показать подробные комплектации
Минимальная
7 588 839 ₽
Стандарт
8 672 960 ₽
Под чистовую отделку
11 383 259 ₽
Показать подробные комплектации
Подбор строительной компании
Не знаете кому доверить строительство дома? Мы можем помочь! Подберем для вас из сотен наших партнеров несколько компаний с лучшем соотношением цена/качество под конкретно ваш запрос.
Подобрать
Посмотреть еще 32 компании Свернуть
Отзывы покупателей
Рейтинг покупателей
0 / 5 5 5 1
На основе 1 оценок покупателей
0%
0%
0%
0%
0%
Отзывы о проекте D6884
Отзыв о проекте D6884
Чтобы оставить отзыв, пожалуйста авторизуйтесь.
Подбор строительной компании
Не знаете кому доверить строительство дома? Мы можем помочь! Подберем для вас из сотен наших партнеров несколько компаний с лучшем соотношением цена/качество под конкретно ваш запрос.
Подобрать