Главная Проекты домов Проект двухэтажного дома из клеенного бруса со вторым светом и двумя балконами

D677 Проект двухэтажного дома из клеенного бруса со вторым светом и двумя балконами

Сравнить проект В избранное
Проект двухэтажного дома из клеенного бруса со вторым светом и двумя балконами / 1
Проект двухэтажного дома из клеенного бруса со вторым светом и двумя балконами / 2
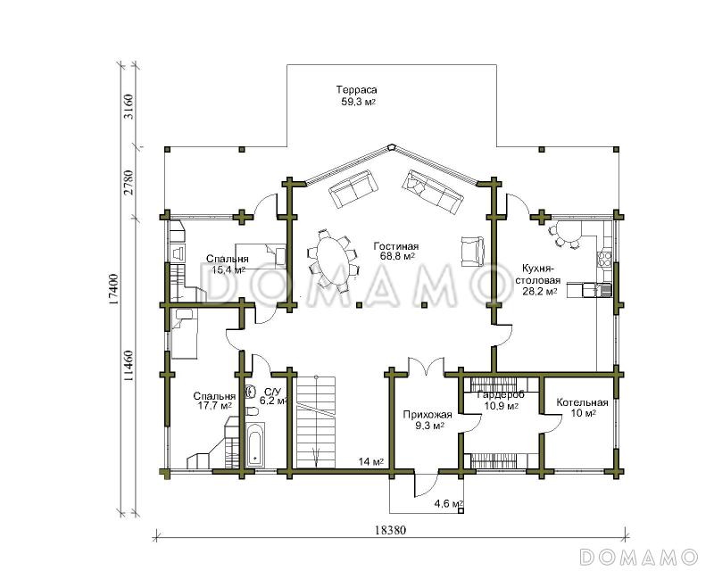
Проект двухэтажного дома из клеенного бруса со вторым светом и двумя балконами / 1
Проект двухэтажного дома из клеенного бруса со вторым светом и двумя балконами / 2
D677
422.1 м²
Подготовка проекта:
Готов к отправке
Стоимость проекта
Купить проект
Задайте вопросы по проекту нашему архитектору
8 (800) 200-28-83
Время работы: пн-вс: с 9:00 до 20:00
Задать вопрос по проекту

Технические характеристики
Общие
Материал стен
Клееный брус
Общая площадь
422.1 м²
Жилая площадь
186.6 м²
Площадь застройки
261.0 м²
Приведенная площадь
349.65 м²
Количество жилых комнат/спален
6
Этажи
2 этажа
Гараж
Нет гаража
Количество машин
нет
Подвал / цокольный этаж
Без подвала
Длина дома
19.1 м
Ширина дома
17.4 м
Кровля
Металлочерепица
Облицовка внешних стен
Без облицовки
Толщина несущих наружных стен
195 мм
Межэтажные перекрытия
По деревянным балкам
Фундамент
Свайно-ростверковый
Терраса
Терраса открытая
Дополнительные
Окна
Окна до пола
,
Панорамные окна
Второй свет
Есть
Сауна/баня внутри
Нет
Площадь гостиной
68.8 м²
Площадь кухни
28.2 м²
Количество санузлов
4
Окно в ванной комнате
Есть
Котельная
Есть
Хозяйский санузел
Есть
Кладовая
1
Балкон / лоджия
Балкон
Планы помещений
Описание проекта
Компания Domamo предлагает проект двухэтажного дома из клеенного бруса со вторым светом и двумя балконами D677. Общая площадь - 422.1 м2, размер - 19.1х17.4 м. Фундамент - свайно-ростверковый, кровля - металлочерепица, внешняя отделка - без облицовки. Для заказа проекта или внесения изменений свяжитесь с нами с помощью форм обратной связи на сайте или по телефону +7 (831) 231-05-02.
Категории проекта: деревянные для постоянного проживания из клееного бруса в английском стиле в скандинавском стиле современные дачные дома от 400 до 500 кв.м в европейском стиле с эркером с террасой из бруса в стиле замка готовые в финском стиле двухэтажные с котельной со вторым светом двухэтажные деревянные дачные с верандой с двухскатной крышей загородные элитные с балконом с панорамным остеклением двухэтажные с эркером Проекты деревянных домов с террасой дачные деревянные Проекты двухэтажных домов из клееного бруса Проекты двухэтажных домов с террасой Проекты двухэтажных домов с верандой на две семьи без гаража дачные с террасой деревянные для круглогодичного проживания с панорамными окнами и террасой с балконом и террасой большие двухэтажные с двускатной крышей двухэтажные со вторым светом двухэтажные с панорамными окнами двухэтажные с балконом двухэтажные с балконом и террасой двухэтажные дачные двухэтажные в современном стиле двухэтажные без гаража современные без гаража современные с двухскатной крышей современные с панорамными окнами современные с окнами в пол современные с террасой современные большие современные со вторым светом скандинавские для постоянного проживания скандинавские дачные скандинавские без гаража скандинавские с окнами в пол скандинавские с панорамными окнами скандинавские с террасой скандинавские с большой гостиной скандинавские с большой кухней скандинавские готовые скандинавские с вторым светом скандинавские с балконом скандинавские большие скандинавские с двухскатной крышей скандинавские с котельной европейские для постоянного проживания европейские дачные европейские готовые европейские без подвала европейские с террасой европейские с изолированной кухней европейские с котельной европейские с кладовой европейские с балконом европейские с вторым светом европейские с панорамными окнами европейские с окнами в пол европейские с двухскатной крышей европейские 400-500 м2 большие готовые большие в европейском стиле большие с двухскатной крышей большие с вторым светом большие с балконом большие с окном в ванной комнате большие с панорамными окнами большие с окнами в пол большие без гаража большие с большой кухней большие с изолированной кухней большие с террасой большие с котельной деревянные в скандинавском стиле деревянные современные деревянные с окнами в пол деревянные с вторым светом деревянные с панорамными окнами деревянные с балконом деревянные без гаража деревянные готовые деревянные без подвала деревянные с большой гостиной деревянные с большой кухней деревянные с изолированной кухней деревянные от 400 до 500 м2 деревянные большие деревянные в европейском стиле недорогие с панорамными окнами из клееного бруса готовый проект из клееного бруса дачный дом из клееного бруса для постоянного проживания из клееного бруса с окном в ванной комнате из клееного бруса с балконом из клееного бруса с вторым светом из клееного бруса с окнами в пол (в гостиной) из клееного бруса с окнами в пол (на кухне) из клееного бруса с окнами в пол из клееного бруса с панорамными окнами из клееного бруса в европейском стиле из клееного бруса в скандинавском стиле из клееного бруса в современном стиле из клееного бруса с двухскатной крышей из клееного бруса с крышей сложной формы из клееного бруса без облицовки из клееного бруса с перекрытиями по деревянным балкам из клееного бруса с кровлей из металлочерепицы из клееного бруса с хозяйским санузлом из клееного бруса с котельной из клееного бруса с изолированной кухней из клееного бруса с 1 эркером из клееного бруса с выходом на терассу из кухни из клееного бруса с открытой терассой из клееного бруса без подвала из клееного бруса без гаража из клееного бруса двухэтажные из клееного бруса с большой гостиной Показать все категории Скрыть категории

Похожие проекты
Состав проекта
Входит в стоимость
Цена, руб. Сроки, дней
Комплект архитектурно-строительных чертежей (АС) Входит в стоимость Готов к отправке
Готово к продаже
Цена, руб. Сроки, дней
Паспорт рабочего проекта 4 000 ₽ 3 рабочих дня в корзину
Дополнительная копия проекта формата А3 4 000 ₽ Готов к отправке в корзину
Электронная копия проекта (скан распечатанной версии) 4 000 ₽ 3 рабочих дня в корзину
Разрабатывается отдельно
Цена, руб. Сроки, дней
Адаптация фундамента (изменение типа фундамента) по запросу 14 рабочих дней
Дизайн интерьера (стоимость от 2200руб. за квад.метр площади) по запросу 30 рабочих дней
Внесение изменений в проект по запросу 20 рабочих дней
Разработка Генплана участка, в масштабе 1:250 7 500 ₽ 5 рабочих дней в корзину
Фэншуй дома 20 000 ₽ 14 рабочих дней в корзину
Фэншуй участка 15 000 ₽ 14 рабочих дней в корзину
Фэншуй полная консультация дом+участок с выездом на объект 100 000 ₽ 30 рабочих дней в корзину
Опции проекта вы можете заказать в корзине при оформлении заказа
Отзывы покупателей
Рейтинг покупателей
0 / 5 5 5 1
На основе 1 оценок покупателей
0%
0%
0%
0%
0%
Отзывы о проекте D677
Отзыв о проекте D677
Чтобы оставить отзыв, пожалуйста авторизуйтесь.
Подбор строительной компании
Не знаете кому доверить строительство дома? Мы можем помочь! Подберем для вас из сотен наших партнеров несколько компаний с лучшем соотношением цена/качество под конкретно ваш запрос.
Подобрать