Главная Проекты домов Проект двухэтажного газобетонного дома c пристроенным гаражом и котельной

D6600 Проект двухэтажного газобетонного дома c пристроенным гаражом и котельной

Сравнить проект В избранное
Технические характеристики
Общие
Материал стен
Газобетон
Общая площадь
189 м²
Жилая площадь
106 м²
Приведенная площадь
190.09 м²
Количество жилых комнат/спален
4
Этажи
2 этажа
Гараж
Пристроенный гараж
Количество машин
1
Подвал / цокольный этаж
Без подвала
Длина дома
14.9 м
Ширина дома
14.5 м
Высота в коньке
9.8 м
Кровля
Гибкая черепица
Облицовка внешних стен
Деревянная вагонка
,
Мокрая штукатурка
Толщина несущих наружных стен
375 мм
Межэтажные перекрытия
По деревянным балкам
Внутренние не несущие перегородки
Газобетонные
Фундамент
Монолитная ж/бетонная плита
Терраса
Терраса крытая
Дополнительные
Окна
Окна до пола
Камин
Есть
Сауна/баня внутри
Нет
Площадь гостиной
28.9 м²
Площадь кухни
12.5 м²
Количество санузлов
2
Окно в ванной комнате
Есть
Котельная
Есть
Кабинет
Есть
Кладовая
1
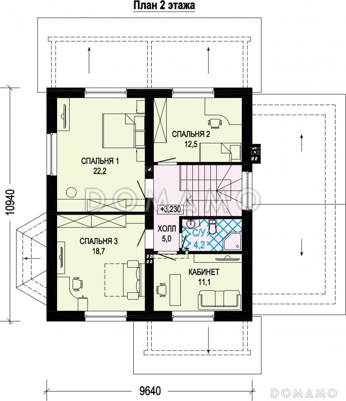
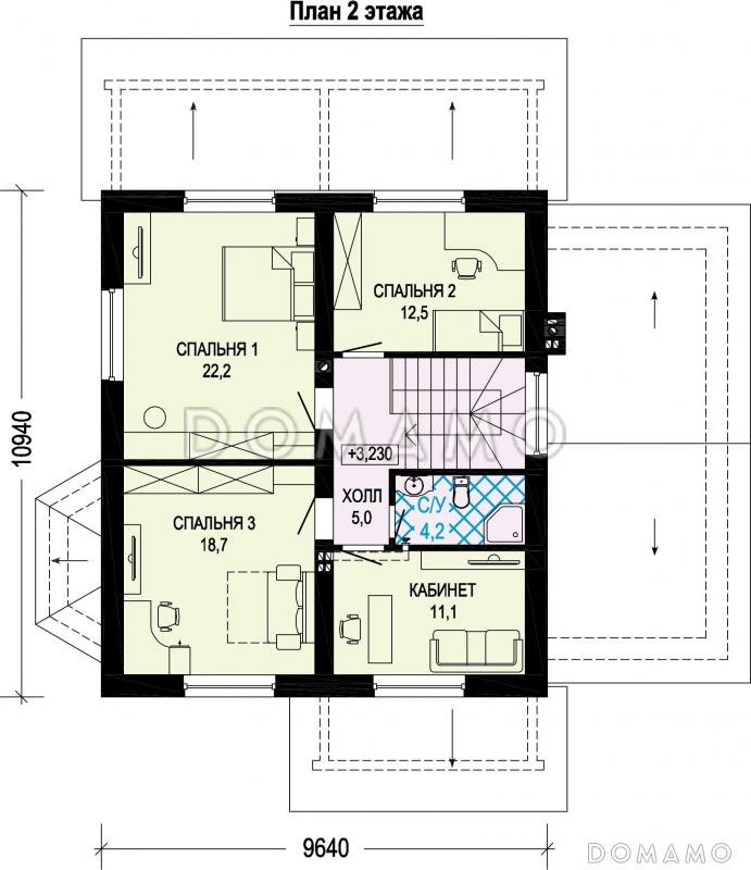
Планы помещений
Фасады
Описание проекта
Компания Domamo предлагает проект двухэтажного газобетонного дома c пристроенным гаражом и котельной D6600. Общая площадь - 189 м2, размер - 14.9х14.5 м. Фундамент - монолитная ж/бетонная плита, кровля - гибкая черепица, внешняя отделка - деревянная вагонка мокрая штукатурка. Для заказа проекта или внесения изменений свяжитесь с нами с помощью форм обратной связи на сайте или по телефону +7 (831) 231-05-02.

Похожие проекты
Состав проекта
Входит в стоимость
Цена, руб. Сроки, дней
Комплект архитектурно-строительных чертежей (АС) Входит в стоимость 3 рабочих дня
Готово к продаже
Цена, руб. Сроки, дней
Паспорт рабочего проекта 5 000 ₽ 3 рабочих дня в корзину
Инженерные разделы: ВК + ОВ + ЭО 23 000 ₽ 3 рабочих дня в корзину
Дополнительная копия проекта формата А3 3 000 ₽ 3 рабочих дня в корзину
Две дополнительные копии проекта формата А3 + 1 паспорт рабочего проекта 10 100 ₽ 3 рабочих дня в корзину
Электронная копия проекта (скан распечатанной версии) 4 000 ₽ 3 рабочих дня в корзину
Разрабатывается отдельно
Цена, руб. Сроки, дней
Адаптация фундамента (изменение типа фундамента) по запросу 14 рабочих дней
Дизайн интерьера (стоимость от 2200руб. за квад.метр площади) по запросу 30 рабочих дней
Внесение изменений в проект по запросу 20 рабочих дней
Фэншуй дома 20 000 ₽ 14 рабочих дней в корзину
Фэншуй участка 15 000 ₽ 14 рабочих дней в корзину
Фэншуй полная консультация дом+участок с выездом на объект 100 000 ₽ 30 рабочих дней в корзину
Опции проекта вы можете заказать в корзине при оформлении заказа
Варианты проекта Сравнить все варианты
Избранные проекты
Избранные строители
Предложения строителей Выбрать регион
Минимальная
6 463 060 ₽
Стандарт
7 983 780 ₽
Под чистовую отделку
10 454 950 ₽
Показать подробные комплектации
Минимальная
16 157 650 ₽
Стандарт
19 009 000 ₽
Под чистовую отделку
24 711 700 ₽
Показать подробные комплектации
Минимальная
8 603 473 ₽
Стандарт
12 766 444 ₽
Под чистовую отделку
20 259 792 ₽
Показать подробные комплектации
Минимальная
6 653 150 ₽
Стандарт
7 983 780 ₽
Под чистовую отделку
8 934 230 ₽
Показать подробные комплектации
Минимальная
6 135 344 ₽
Стандарт
9 004 563 ₽
Под чистовую отделку
9 633 761 ₽
Показать подробные комплектации
Минимальная
5 588 646 ₽
Стандарт
6 387 024 ₽
Под чистовую отделку
8 382 969 ₽
Показать подробные комплектации
Подбор строительной компании
Не знаете кому доверить строительство дома? Мы можем помочь! Подберем для вас из сотен наших партнеров несколько компаний с лучшем соотношением цена/качество под конкретно ваш запрос.
Подобрать
Посмотреть еще 32 компании Свернуть
Отзывы покупателей
Рейтинг покупателей
0 / 5 5 5 1
На основе 1 оценок покупателей
0%
0%
0%
0%
0%
Отзывы о проекте D6600
Отзыв о проекте D6600
Чтобы оставить отзыв, пожалуйста авторизуйтесь.
Подбор строительной компании
Не знаете кому доверить строительство дома? Мы можем помочь! Подберем для вас из сотен наших партнеров несколько компаний с лучшем соотношением цена/качество под конкретно ваш запрос.
Подобрать