Главная Проекты домов Проект коттеджа с зеленой крышей и желтыми кирпичными вставками

D656 Проект коттеджа с зеленой крышей и желтыми кирпичными вставками

Сравнить проект В избранное
Технические характеристики
Общие
Материал стен
Газобетон
Общая площадь
155 м²
Жилая площадь
89.2 м²
Площадь застройки
109.5 м²
Приведенная площадь
145.19 м²
Количество жилых комнат/спален
5
Этажи
2 этажа
Гараж
Нет гаража
Подвал / цокольный этаж
Без подвала
Длина дома
10.2 м
Ширина дома
10 м
Высота в коньке
8.44 м
Кровля
Металлочерепица
Облицовка внешних стен
Мокрая штукатурка
,
Облицовка камнем
Толщина несущих наружных стен
400 мм
Межэтажные перекрытия
По деревянным балкам
Внутренние не несущие перегородки
Газобетонные
,
Каркасно-обшивные
Фундамент
Монолитная ж/бетонная плита
Терраса
Терраса крытая
Дополнительные
Камин
Есть
Сауна/баня внутри
Нет
Площадь гостиной
21.6 м²
Площадь кухни
11.6 м²
Количество санузлов
2
Окно в ванной комнате
Есть
Котельная
Есть
Кабинет
Есть
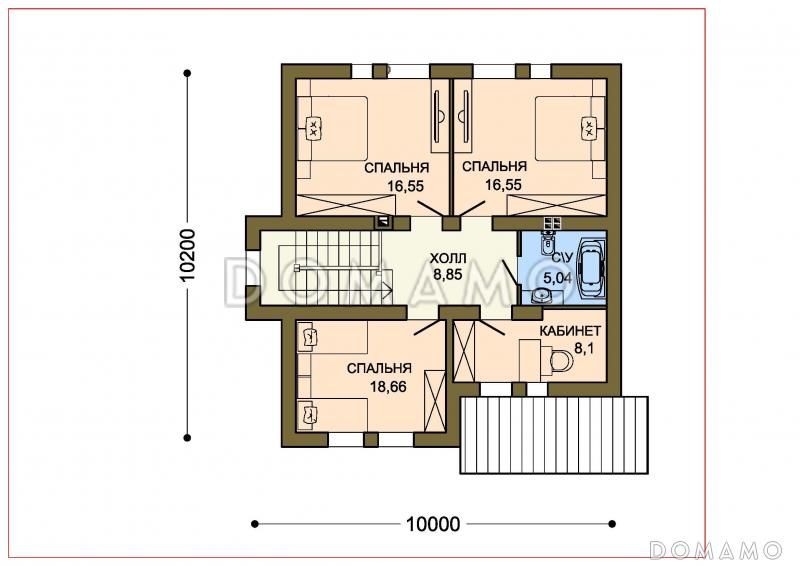
Планы помещений
Фасады
Описание проекта

Типовой проект двухэтажного коттеджа с привлекательным вариантом комбинированной отделки наружного фасада — сочетанием эстетичного декоративного кирпича и штукатурки. Стеновой материал, пенобетон, обеспечивает высокую теплоизоляцию здания, позволяет уменьшить расходы на отопление. Внутренняя планировка подразумевает полное деление жилой и функциональных зон, максимальное использование каждого метра пространства, как например, в объединенной кухне-гостиной с камином.

Особенности проекта:

  • Пять жилых комнат для большой семьи.
  • Гостевая спальня на первом этаже — удобный вариант комнаты для пожилых людей.
  • Просторная терраса — достаточно места для установки столика для вечернего чаепития.
  • Санузел на каждом этаже.
  • Отдельное помещение для котельной.
Категории проекта: для постоянного проживания пенобетон современные от 100 до 200 кв.м 10х10 в европейском стиле с эркером с террасой из газобетона с эркером из газобетона готовые в стиле минимализм двухэтажные с котельной двухэтажные из газобетона из газосиликатных блоков двухэтажные из пеноблоков до 200 кв.м с двухскатной крышей 6х10 9х10 9х12 загородные из керамзитобетонных блоков с камином квадратные 10х12 из газобетона с террасой двухэтажные с эркером из блоков двухэтажные из блоков из блоков с эркером Проекты домов из пеноблоков с эркером из пеноблоков с террасой загородные из газобетона Проекты двухэтажных домов с террасой Проекты двухэтажных домов с верандой без гаража с террасой и камином с кабинетом двухэтажные 10 на 12 каменные двухэтажные 200 кв м из газобетона 10x10 двухэтажные от 150 до 200 кв м недорогие из пеноблоков загородные с 5 спальнями 10x10 из пеноблоков двухэтажные до 180 кв.м двухэтажные с камином двухэтажные с двускатной крышей двухэтажные в современном стиле двухэтажные без гаража из газобетона до 200 кв.м из газобетона от 100 до 200 кв.м из газобетона с двухскатной крышей из газобетона в стиле минимализм из газобетона современные из газобетона с котельной из газобетона квадратные из газобетона готовые из газобетона с камином из газобетона с кабинетом из газобетона для постоянного проживания двухэтажные из газобетона без гаража двухэтажные из газобетона с террасой двухэтажные из газобетона с камином двухэтажные из газобетона с кабинетом двухэтажные из газобетона с котельной двухэтажные из газобетона в стиле минимализм двухэтажные из газобетона современные двухэтажные из газобетона с двухскатной крышей двухэтажные из газобетона до 200 кв. м двухэтажные из газобетона без подвала двухэтажные из газобетона с эркером современные без гаража современные с двухскатной крышей современные с террасой современные 10х10 современные от 100 до 200 кв. м европейские 10х10 из пеноблоков в современном стиле из пеноблоков в стиле минимализм из пеноблоков с двухскатной крышей из пеноблоков квадратные из пеноблоков для постоянного проживания из пеноблоков недорогие из пеноблоков готовые из пеноблоков с камином из пеноблоков 10х10 из пеноблоков от 100 до 200 м2 в стиле минимализм для постоянного проживания в стиле минимализм без гаража в стиле минимализм квадратные в стиле минимализм с двухскатной крышей в стиле минимализм с террасой в стиле минимализм с кабинетом в стиле минимализм с котельной в стиле минимализм с камином в стиле минимализм недорогие в стиле минимализм от 100 до 200 м2 в стиле минимализм с монолитным фундаментом недорогие двухэтажные недорогие без гаража недорогие с террасой недорогие для постоянного проживания недорогие с двухскатной крышей недорогие без бани недорогие с кабинетом недорогие с котельной недорогие с камином недорогие квадратные недорогие 10х10 недорогие от 100 до 200 м2 из клееного бруса без гаража Показать все категории Скрыть категории

Похожие проекты
Состав проекта
Входит в стоимость
Цена, руб. Сроки, дней
Комплект архитектурно-строительных чертежей (АС) Входит в стоимость 3 рабочих дня
Готово к продаже
Цена, руб. Сроки, дней
Паспорт рабочего проекта 4 000 ₽ 3 рабочих дня в корзину
Дополнительная копия проекта формата А3 3 000 ₽ 3 рабочих дня в корзину
Две дополнительные копии проекта формата А3 + 1 паспорт рабочего проекта 10 000 ₽ 3 рабочих дня в корзину
Разрабатывается отдельно
Цена, руб. Сроки, дней
Адаптация фундамента (изменение типа фундамента) по запросу 14 рабочих дней
Дизайн интерьера (стоимость от 2200руб. за квад.метр площади) по запросу 30 рабочих дней
Внесение изменений в проект по запросу 20 рабочих дней
Фэншуй дома 20 000 ₽ 14 рабочих дней в корзину
Фэншуй участка 15 000 ₽ 14 рабочих дней в корзину
Фэншуй полная консультация дом+участок с выездом на объект 100 000 ₽ 30 рабочих дней в корзину
Опции проекта вы можете заказать в корзине при оформлении заказа
Варианты проекта Сравнить все варианты
Избранные проекты
Избранные строители
Предложения строителей Выбрать регион
Минимальная
4 936 460 ₽
Стандарт
6 097 980 ₽
Под чистовую отделку
7 985 450 ₽
Показать подробные комплектации
Минимальная
14 809 380 ₽
Стандарт
17 422 800 ₽
Под чистовую отделку
22 649 640 ₽
Показать подробные комплектации
Минимальная
7 246 432 ₽
Стандарт
10 752 771 ₽
Под чистовую отделку
17 064 180 ₽
Показать подробные комплектации
Минимальная
5 081 650 ₽
Стандарт
6 097 980 ₽
Под чистовую отделку
6 823 930 ₽
Показать подробные комплектации
Минимальная
4 686 152 ₽
Стандарт
6 877 650 ₽
Под чистовую отделку
7 358 229 ₽
Показать подробные комплектации
Минимальная
4 675 118 ₽
Стандарт
5 342 992 ₽
Под чистовую отделку
7 012 676 ₽
Показать подробные комплектации
Подбор строительной компании
Не знаете кому доверить строительство дома? Мы можем помочь! Подберем для вас из сотен наших партнеров несколько компаний с лучшем соотношением цена/качество под конкретно ваш запрос.
Подобрать
Посмотреть еще 32 компании Свернуть
Отзывы покупателей
Рейтинг покупателей
0 / 5 5 5 1
На основе 1 оценок покупателей
0%
0%
0%
0%
0%
Отзывы о проекте D656
Отзыв о проекте D656
Чтобы оставить отзыв, пожалуйста авторизуйтесь.
Подбор строительной компании
Не знаете кому доверить строительство дома? Мы можем помочь! Подберем для вас из сотен наших партнеров несколько компаний с лучшем соотношением цена/качество под конкретно ваш запрос.
Подобрать