Главная Проекты домов Проект дома дома с тремя спальнями, кабинетом, баней и постирочной

D6431 Проект дома дома с тремя спальнями, кабинетом, баней и постирочной

Сравнить проект В избранное
Проект дома дома с тремя спальнями, кабинетом, баней и постирочной / 1
Проект дома дома с тремя спальнями, кабинетом, баней и постирочной / 2
Проект дома дома с тремя спальнями, кабинетом, баней и постирочной / 3
Проект дома дома с тремя спальнями, кабинетом, баней и постирочной / 4
Проект дома дома с тремя спальнями, кабинетом, баней и постирочной / 5
Проект дома дома с тремя спальнями, кабинетом, баней и постирочной / 6
Проект дома дома с тремя спальнями, кабинетом, баней и постирочной / 1
Проект дома дома с тремя спальнями, кабинетом, баней и постирочной / 2
Проект дома дома с тремя спальнями, кабинетом, баней и постирочной / 3
Проект дома дома с тремя спальнями, кабинетом, баней и постирочной / 4
Проект дома дома с тремя спальнями, кабинетом, баней и постирочной / 5
Проект дома дома с тремя спальнями, кабинетом, баней и постирочной / 6
D6431
162 м²
Подготовка проекта:
3 рабочих дня
Стоимость проекта
Купить проект
Задайте вопросы по проекту нашему архитектору
8 (800) 200-28-83
Время работы: пн-вс: с 9:00 до 20:00
Задать вопрос по проекту

Технические характеристики
Общие
Материал стен
Газобетон
Общая площадь
162 м²
Площадь застройки
162.8 м²
Приведенная площадь
149.22 м²
Количество жилых комнат/спален
4
Этажи
1 этаж + мансарда
Гараж
Нет гаража
Подвал / цокольный этаж
Без подвала
Длина дома
12.575 м
Ширина дома
10.33 м
Высота в коньке
6.947 м
Кровля
Оцинкованный стальной лист профилированный
Облицовка внешних стен
Деревянная вагонка
,
Мокрая штукатурка
,
Фасадные панели
Межэтажные перекрытия
Монолитные
Внутренние не несущие перегородки
Газобетонные
Фундамент
Монолитная ж/бетонная плита
Терраса
Терраса крытая
Дополнительные
Окна
Окна до пола
Мансардные окна
Есть
Сауна/баня внутри
Есть
Площадь гостиной
13.9 м²
Площадь кухни
14 м²
Количество санузлов
3
Окно в ванной комнате
Есть
Котельная
Есть
Кабинет
Есть
Постирочная
Есть
Кладовая
1
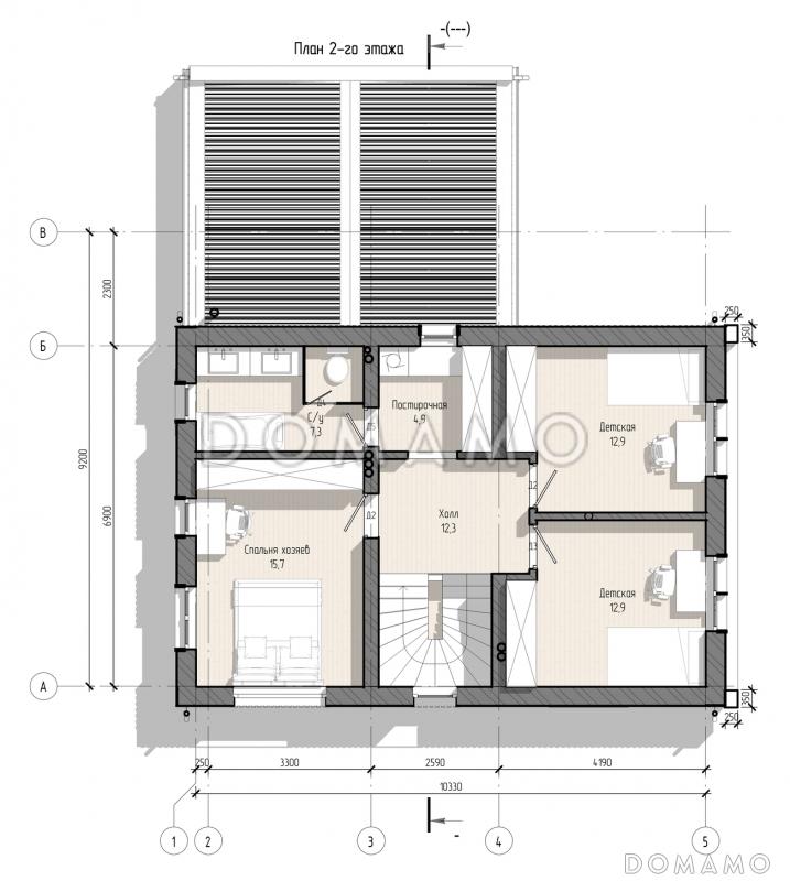
Планы помещений
Фасады
Описание проекта
Компания Domamo предлагает проект дома дома с тремя спальнями, кабинетом, баней и постирочной D6431. Общая площадь - 162 м2, размер - 12.575х10.33 м. Фундамент - монолитная ж/бетонная плита, кровля - оцинкованный стальной лист профилированный, внешняя отделка - фасадные панели деревянная вагонка мокрая штукатурка. Для заказа проекта или внесения изменений свяжитесь с нами с помощью форм обратной связи на сайте или по телефону +7 (831) 231-05-02.
Категории проекта: с мансардой для постоянного проживания пенобетон от 100 до 200 кв.м с террасой из пеноблоков с мансардой из газобетона готовые из газобетона с мансардой одноэтажные с мансардой одноэтажные до 150 кв. м. одноэтажные с котельной с котельной одноэтажные из газобетона из газосиликатных блоков с баней до 120 кв.м до 150 кв.м до 200 кв.м с двухскатной крышей загородные из керамзитобетонных блоков с сауной угловые из газобетона с баней из газобетона с террасой из блоков одноэтажные из блоков из блоков с мансардой из пеноблоков с баней из пеноблоков с террасой загородные из газобетона Проекты одноэтажных домов с террасой Типовые проекты загородных одноэтажных домов Проекты одноэтажных домов с баней без гаража одноэтажные без гаража с кабинетом одноэтажных из керамзитобетонных блоков одноэтажные с 4 спальнями с мансардой до 150 кв м с мансардой и террасой полутораэтажные с мансардой до 120 кв.м одноэтажные до 120 кв.м с 4 спальнями г-образные одноэтажные до 200 кв м до 140 кв м недорогие до 130 кв м из пеноблоков загородные одноэтажные с мансардными окнами с мансардой с баней с мансардой с котельной с мансардой с двухскатной крышей с мансардой с окнами до пола с мансардой с мансардными окнами с мансардой г-образные с мансардой готовые с мансардой для постоянного проживания с мансардой до 200 кв.м с мансардой от 100 до 150 кв.м одноэтажные из газобетона с террасой одноэтажные из газобетона до 120 кв. м одноэтажные из газобетона до 150 кв. м одноэтажные из газобетона с мансардой одноэтажные из газобетона с 4 спальнями из газобетона до 120 кв.м из газобетона до 150 кв.м из газобетона до 200 кв.м из газобетона от 100 до 200 кв.м из газобетона с двухскатной крышей из газобетона с котельной из газобетона угловые из газобетона готовые из газобетона с четырьмя спальнями из газобетона с кабинетом из газобетона недорогие из газобетона для постоянного проживания двухэтажные из газобетона без гаража двухэтажные из газобетона с террасой двухэтажные из газобетона недорогие двухэтажные из газобетона с прачечной двухэтажные из газобетона с кабинетом двухэтажные из газобетона с котельной двухэтажные из газобетона с двухскатной крышей двухэтажные из газобетона маленькие двухэтажные из газобетона до 120 кв. м двухэтажные из газобетона до 150 кв. м двухэтажные из газобетона до 200 кв. м двухэтажные из газобетона без подвала двухэтажные из газобетона с баней двухэтажные из газобетона с 4 спальнями из газобетона с мансардой с террасой из газобетона с мансардой для постоянного проживания из газобетона с мансардой готовые из газобетона с мансардой с двухскатной крышей из газобетона с мансардой маленькие из газобетона с мансардой с 4 спальнями из газобетона с мансардой с баней из газобетона с мансардой угловые из газобетона с мансардой с прачечной одноэтажные с мансардой для постоянного проживания до 120 кв.м готовые до 120 кв.м для постоянного проживания до 120 кв.м без гаража до 120 кв.м с двухскатной крышей до 120 кв.м с окнами в пол до 120 кв.м с террасой до 120 кв.м с баней до 120 кв.м с котельной до 120 кв.м с кабинетом до 120 кв.м с прачечной до 120 кв.м с 4 спальнями до 150 кв.м для постоянного проживания до 150 кв.м без гаража до 150 кв.м с двухскатной крышей до 150 кв.м с окнами до пола до 150 кв.м барнхаус до 150 кв.м готовые до 150 кв.м с мансардными окнами до 150 кв.м угловые до 150 кв.м с котельной до 150 кв.м с кабинетом до 150 кв.м с прачечной до 150 кв.м с баней до 150 кв.м с террасой до 150 кв.м без подвала до 150 кв.м с 4 спальнями из пеноблоков в стиле барнхаус из пеноблоков с двухскатной крышей из пеноблоков с окнами до пола из пеноблоков угловые из пеноблоков для постоянного проживания из пеноблоков недорогие из пеноблоков готовые из пеноблоков до 120 м кв. из пеноблоков до 150 м кв. из пеноблоков от 100 до 200 м2 из пеноблоков с 4 спальнями недорогие с мансардой недорогие без гаража недорогие с террасой недорогие для постоянного проживания недорогие с двухскатной крышей недорогие с окнами до пола недорогие с баней недорогие с кабинетом недорогие с котельной недорогие с мансардными окнами недорогие угловые недорогие до 120 м2 недорогие до 150 м2 недорогие от 100 до 200 м2 из клееного бруса без гаража Показать все категории Скрыть категории

Похожие проекты
Состав проекта
Входит в стоимость
Цена, руб. Сроки, дней
Комплект архитектурно-строительных чертежей (АС) Входит в стоимость 3 рабочих дня
Разрабатывается отдельно
Цена, руб. Сроки, дней
Адаптация фундамента (изменение типа фундамента) по запросу 14 рабочих дней
Дизайн интерьера (стоимость от 2200руб. за квад.метр площади) по запросу 30 рабочих дней
Внесение изменений в проект по запросу 20 рабочих дней
Фэншуй дома 20 000 ₽ 14 рабочих дней в корзину
Фэншуй участка 15 000 ₽ 14 рабочих дней в корзину
Фэншуй полная консультация дом+участок с выездом на объект 100 000 ₽ 30 рабочих дней в корзину
Опции проекта вы можете заказать в корзине при оформлении заказа
Предложения строителей Республика Башкортостан
Отзывы покупателей
Рейтинг покупателей
0 / 5 5 5 1
На основе 1 оценок покупателей
0%
0%
0%
0%
0%
Отзывы о проекте D6431
Отзыв о проекте D6431
Чтобы оставить отзыв, пожалуйста авторизуйтесь.
Подбор строительной компании
Не знаете кому доверить строительство дома? Мы можем помочь! Подберем для вас из сотен наших партнеров несколько компаний с лучшем соотношением цена/качество под конкретно ваш запрос.
Подобрать