Главная Проекты домов Проект кирпичного двухэтажного дома с гаражом, мастер-спальней и террасой на втором этаже

D6133 Проект кирпичного двухэтажного дома с гаражом, мастер-спальней и террасой на втором этаже

Сравнить проект В избранное
Технические характеристики
Общие
Материал стен
Кирпич
Общая площадь
249 м²
Площадь застройки
203.2 м²
Приведенная площадь
248.35 м²
Количество жилых комнат/спален
4
Этажи
2 этажа
Гараж
Встроенный гараж
Количество машин
2
Подвал / цокольный этаж
Без подвала
Длина дома
14.61 м
Ширина дома
13.21 м
Кровля
Металлочерепица
Облицовка внешних стен
Мокрая штукатурка
Межэтажные перекрытия
Монолитные
Внутренние не несущие перегородки
Кирпичные
Фундамент
Ленточный монолитный
Терраса
Терраса открытая
Дополнительные
Окна
Окна до пола
Камин
Есть
Сауна/баня внутри
Нет
Площадь гостиной
33.5 м²
Площадь кухни
7.9 м²
Количество санузлов
3
Котельная
Есть
Кабинет
Есть
Хозяйский санузел
Есть
Хозяйская гардеробная
Есть
Кладовая
4
Длина участка
23.21 м
Ширина участка
20.61 м
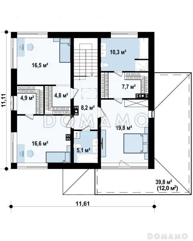
Планы помещений
Описание проекта
Компания Domamo предлагает проект кирпичного двухэтажного дома с гаражом, мастер-спальней и террасой на втором этаже D6133. Общая площадь - 249 м2, размер - 14.61х13.21 м. Фундамент - ленточный монолитный, кровля - металлочерепица, внешняя отделка - мокрая штукатурка. Для заказа проекта или внесения изменений свяжитесь с нами с помощью форм обратной связи на сайте или по телефону +7 (831) 231-05-02.

Похожие проекты
Состав проекта
Входит в стоимость
Цена, руб. Сроки, дней
Комплект архитектурно-строительных чертежей (АС) Входит в стоимость Готов к отправке
Готово к продаже
Цена, руб. Сроки, дней
Паспорт рабочего проекта 8 000 ₽ 33 рабочих дня в корзину
Инженерные разделы: ВК + ОВ + ЭО 30 130 ₽ 33 рабочих дня в корзину
Дополнительная копия проекта формата А3 6 500 ₽ 33 рабочих дня в корзину
Электронная копия проекта (скан распечатанной версии) 4 000 ₽ 33 рабочих дня в корзину
Разрабатывается отдельно
Цена, руб. Сроки, дней
Адаптация фундамента (изменение типа фундамента) по запросу 14 рабочих дней
Дизайн интерьера (стоимость от 2200руб. за квад.метр площади) по запросу 30 рабочих дней
Внесение изменений в проект по запросу 20 рабочих дней
Разработка Генплана участка, в масштабе 1:250 7 500 ₽ 15 рабочих дней в корзину
Фэншуй дома 20 000 ₽ 14 рабочих дней в корзину
Фэншуй участка 15 000 ₽ 14 рабочих дней в корзину
Фэншуй полная консультация дом+участок с выездом на объект 100 000 ₽ 30 рабочих дней в корзину
Опции проекта вы можете заказать в корзине при оформлении заказа
Варианты проекта Сравнить все варианты
Избранные проекты
Избранные строители
Предложения строителей Выбрать регион
Минимальная
8 692 250 ₽
Стандарт
10 679 050 ₽
Под чистовую отделку
13 907 600 ₽
Показать подробные комплектации
Минимальная
20 898 652 ₽
Стандарт
24 586 650 ₽
Под чистовую отделку
31 962 645 ₽
Показать подробные комплектации
Минимальная
10 967 136 ₽
Стандарт
16 107 980 ₽
Под чистовую отделку
25 361 501 ₽
Показать подробные комплектации
Минимальная
9 951 384 ₽
Стандарт
11 426 583 ₽
Под чистовую отделку
14 630 795 ₽
Показать подробные комплектации
Минимальная
4 638 929 ₽
Стандарт
5 744 583 ₽
Под чистовую отделку
6 914 312 ₽
Показать подробные комплектации
Подбор строительной компании
Не знаете кому доверить строительство дома? Мы можем помочь! Подберем для вас из сотен наших партнеров несколько компаний с лучшем соотношением цена/качество под конкретно ваш запрос.
Подобрать
Посмотреть еще 20 компаний Свернуть
Отзывы покупателей
Рейтинг покупателей
0 / 5 5 5 1
На основе 1 оценок покупателей
0%
0%
0%
0%
0%
Отзывы о проекте D6133
Отзыв о проекте D6133
Чтобы оставить отзыв, пожалуйста авторизуйтесь.
Подбор строительной компании
Не знаете кому доверить строительство дома? Мы можем помочь! Подберем для вас из сотен наших партнеров несколько компаний с лучшем соотношением цена/качество под конкретно ваш запрос.
Подобрать