Главная Проекты домов Проект просторного коттеджа в стиле модерн с бассейном и гаражом

D609 Проект просторного коттеджа в стиле модерн с бассейном и гаражом

Сравнить проект В избранное
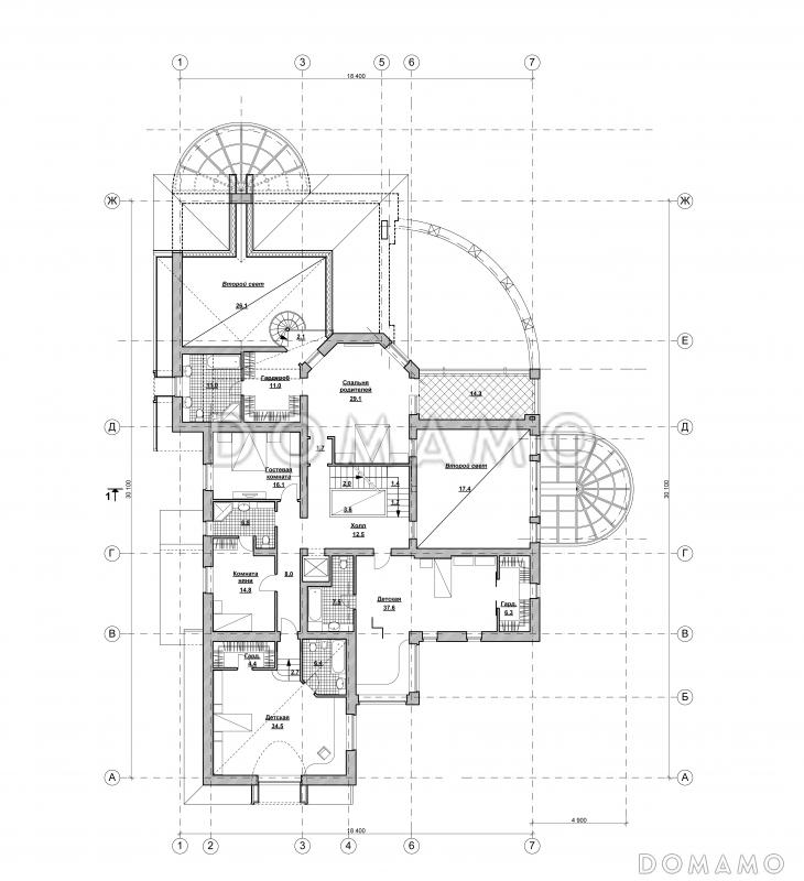
Проект просторного коттеджа в стиле модерн с бассейном и гаражом / 1
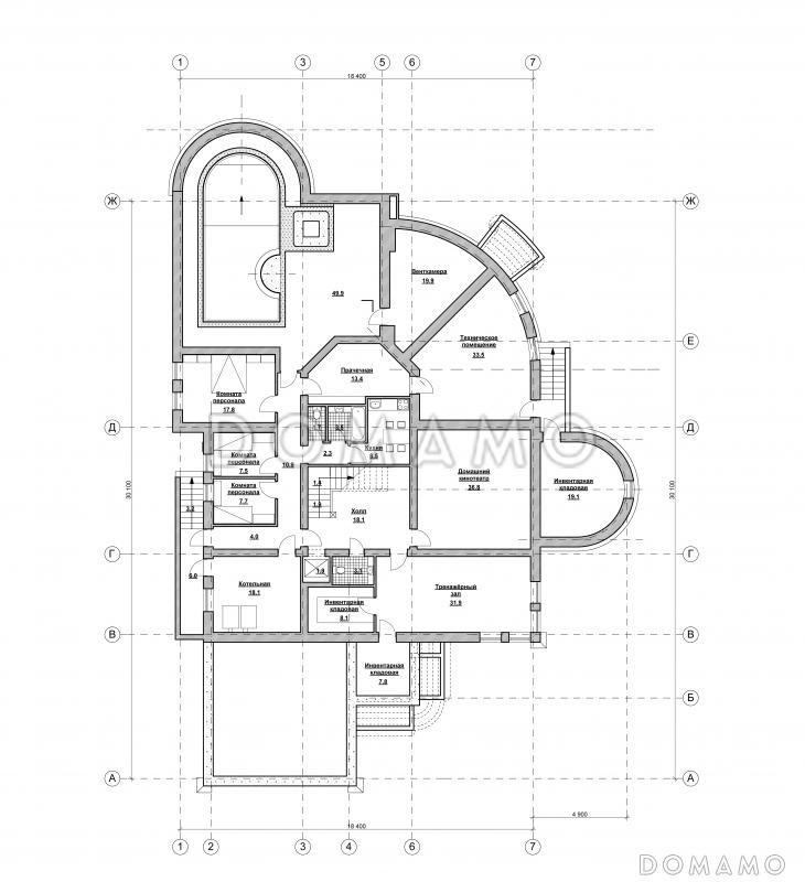
Проект просторного коттеджа в стиле модерн с бассейном и гаражом / 2
Проект просторного коттеджа в стиле модерн с бассейном и гаражом / 1
Проект просторного коттеджа в стиле модерн с бассейном и гаражом / 2
D609
1102 м²
Подготовка проекта:
Готов к отправке
Стоимость проекта
Купить проект
Задайте вопросы по проекту нашему архитектору
8 (800) 200-28-83
Время работы: пн-вс: с 9:00 до 20:00
Задать вопрос по проекту

Технические характеристики
Общие
Материал стен
Кирпич
Общая площадь
1102 м²
Жилая площадь
410 м²
Приведенная площадь
1059.83 м²
Количество жилых комнат/спален
9
Этажи
2 этажа + мансарда
Гараж
Встроенный гараж
Количество машин
2
Подвал / цокольный этаж
С окнами
Длина дома
31.1 м
Ширина дома
19.4 м
Высота в коньке
16.6 м
Кровля
Гибкая черепица
Облицовка внешних стен
Мокрая штукатурка
,
Облицовка камнем
Толщина несущих наружных стен
640 мм
Терраса
Терраса открытая
,
Терраса крытая
Дополнительные
Окна
Панорамные окна
Второй свет
Есть
Камин
Есть
Сауна/баня внутри
Есть
Купель
Есть
Бассейн
Есть
Площадь гостиной
38.7 м²
Площадь кухни
18 м²
Количество санузлов
12
Окно в ванной комнате
Есть
Котельная
Есть
Кабинет
Есть
Постирочная
Есть
Спортзал / детский / игровой зал
Есть
Хозяйский санузел
Есть
Хозяйская гардеробная
Есть
Кладовая
11
Зимний сад
Есть
Балкон / лоджия
Балкон
Планы помещений
Фасады
Описание проекта

Кирпичный четырехуровневый особняк для комфортной жизни семьи с детьми. Габариты здания позволяют разместить в нем практически все возможные виды комнат. На цокольном этаже кроме многочисленных кладовок и технических помещений предусмотрены две жилые комнаты и дополнительная кухня. Первый этаж предназначен для проведения времени всей семьей и приема гостей. Гостиная дополнена полукруглым зимним садом с застекленной крышей. В дальнем конце дома расположен бассейн с сауной. Просторная столовая находится в центре этажа, логично соединяя между собой кухню и гостиную. 

Верхние этажи дома предназначены уже для личных комнат членов семьи. Две просторных детских и спальня родителей дополнены комнатой няни и еще одной спальней. На мансарде можно запланировать 2 кабинета и игровую комнату.

Преимущества и особенности

  • бассейн с выходом на просторную террасу дает возможность устроить комфортабельный курорт прямо у себя дома,

  • в бассейн можно спуститься прямо из спальни родителей по винтовой лестнице,

  • комнаты на цокольном этаже подойдут для размещения обслуживающего персонала.

Категории проекта: с мансардой с гаражом с мансардой и гаражом для постоянного проживания кирпич от 500 кв.м кирпичные дома с мансардой дома из кирпича с гаражом с террасой из кирпича с террасой готовые в стиле модерн с цокольным этажом загородные из кирпича двухэтажные из кирпича двухэтажные кирпичные с гаражом двухэтажные из кирпича с мансардой двухэтажные двухэтажные с гаражом двухэтажные с мансардой кирпичные с цокольным этажом кирпичные с котельной с котельной со вторым светом с баней с цокольным этажом и мансардой с бассейном загородные с четырехскатной крышей с мансардной крышей с баней и гаражом с баней и бассейном с камином с сауной с гардеробной с балконом с барбекю со встроенным гаражом с зимним садом с панорамным остеклением кирпичные с баней кирпичные с бассейном двухэтажные с цокольным этажом Проекты двухэтажных домов с террасой Проекты двухэтажных домов с верандой на две семьи с террасой и камином с кабинетом с гаражом под одной крышей с гаражом на 2 машины с мансардой и террасой особняки каменные с гаражом и террасой двухэтажные с террасой и гаражом с панорамными окнами и террасой двухэтажные с сауной с цокольным этажом и гаражом с балконом и террасой с бассейном и гаражом большие сложной формы двухэтажные с камином двухэтажные со вторым светом двухэтажные с панорамными окнами двухэтажные с балконом двухэтажные с балконом и террасой двухэтажные с бассейном с мансардой с баней с мансардой с котельной с мансардой с зимним садом с мансардой с камином с мансардой с бассейном с мансардой с четырехскатной крышей с мансардой с панорамными окнами с мансардой со вторым светом с мансардой с балконом с мансардой сложной формы с мансардой готовые с мансардой для постоянного проживания с мансардой элитные с мансардой большие большие готовые большие в стиле модерн большие с четырехскатной крышей большие с вторым светом большие с балконом большие сложной формы большие с камином большие с бассейном большие с окном в ванной комнате большие с панорамными окнами большие с гаражом большие с гаражом на 2 машины большие с большой кухней большие с изолированной кухней большие с террасой большие с баней большие с прачечной большие с котельной большие с кабинетом большие с мастер-спальней большие с спортзалом большие с зимним садом недорогие с панорамными окнами из клееного бруса без гаража Показать все категории Скрыть категории

Похожие проекты
Состав проекта
Входит в стоимость
Цена, руб. Сроки, дней
Комплект архитектурно-строительных чертежей (АС) Входит в стоимость Готов к отправке
Разрабатывается отдельно
Цена, руб. Сроки, дней
Адаптация фундамента (изменение типа фундамента) по запросу 14 рабочих дней
Дизайн интерьера (стоимость от 2200руб. за квад.метр площади) по запросу 30 рабочих дней
Внесение изменений в проект по запросу 20 рабочих дней
Фэншуй дома 20 000 ₽ 14 рабочих дней в корзину
Фэншуй участка 15 000 ₽ 14 рабочих дней в корзину
Фэншуй полная консультация дом+участок с выездом на объект 100 000 ₽ 30 рабочих дней в корзину
Опции проекта вы можете заказать в корзине при оформлении заказа
Отзывы покупателей
Рейтинг покупателей
0 / 5 5 5 1
На основе 1 оценок покупателей
0%
0%
0%
0%
0%
Отзывы о проекте D609
Отзыв о проекте D609
Чтобы оставить отзыв, пожалуйста авторизуйтесь.
Подбор строительной компании
Не знаете кому доверить строительство дома? Мы можем помочь! Подберем для вас из сотен наших партнеров несколько компаний с лучшем соотношением цена/качество под конкретно ваш запрос.
Подобрать