Главная Проекты домов Проект двухэтажного дома с тремя спальнями наверху и одной внизу, крытой террасой и котельной

D6036 Проект двухэтажного дома с тремя спальнями наверху и одной внизу, крытой террасой и котельной

Сравнить проект В избранное
Проект двухэтажного дома с тремя спальнями наверху и одной внизу, крытой террасой и котельной / 1
Проект двухэтажного дома с тремя спальнями наверху и одной внизу, крытой террасой и котельной / 2
Проект двухэтажного дома с тремя спальнями наверху и одной внизу, крытой террасой и котельной / 3
Проект двухэтажного дома с тремя спальнями наверху и одной внизу, крытой террасой и котельной / 4
Проект двухэтажного дома с тремя спальнями наверху и одной внизу, крытой террасой и котельной / 5
Проект двухэтажного дома с тремя спальнями наверху и одной внизу, крытой террасой и котельной / 1
Проект двухэтажного дома с тремя спальнями наверху и одной внизу, крытой террасой и котельной / 2
Проект двухэтажного дома с тремя спальнями наверху и одной внизу, крытой террасой и котельной / 3
Проект двухэтажного дома с тремя спальнями наверху и одной внизу, крытой террасой и котельной / 4
Проект двухэтажного дома с тремя спальнями наверху и одной внизу, крытой террасой и котельной / 5
D6036
216 м²
Подготовка проекта:
Готов к отправке
Стоимость проекта
Купить проект
Задайте вопросы по проекту нашему архитектору
8 (800) 200-28-83
Время работы: пн-вс: с 9:00 до 20:00
Задать вопрос по проекту

Технические характеристики
Общие
Материал стен
Газобетон
Общая площадь
216 м²
Приведенная площадь
189.282 м²
Количество жилых комнат/спален
4
Этажи
2 этажа
Гараж
Нет гаража
Подвал / цокольный этаж
Без подвала
Длина дома
13.02 м
Ширина дома
10.4 м
Кровля
Гибкая черепица
Облицовка внешних стен
Деревянная вагонка
,
Мокрая штукатурка
,
Облицовка камнем
Толщина несущих наружных стен
475 мм
Межэтажные перекрытия
Монолитные
Внутренние не несущие перегородки
Газобетонные
Фундамент
Монолитная ж/бетонная плита
Терраса
Терраса крытая
Дополнительные
Окна
Окна до пола
Сауна/баня внутри
Нет
Площадь гостиной
26.65 м²
Площадь кухни
16.73 м²
Количество санузлов
3
Окно в ванной комнате
Есть
Котельная
Есть
Планы помещений
Фасады
Описание проекта
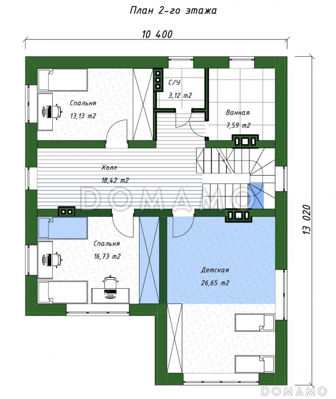
Компания Domamo предлагает проект двухэтажного дома с тремя спальнями наверху и одной внизу, крытой террасой и котельной D6036. Общая площадь - 216 м2, размер - 13.02х10.4 м. Фундамент - монолитная ж/бетонная плита, кровля - гибкая черепица, внешняя отделка - деревянная вагонка мокрая штукатурка облицовка камнем. Для заказа проекта или внесения изменений свяжитесь с нами с помощью форм обратной связи на сайте или по телефону +7 (831) 231-05-02.
Категории проекта: для постоянного проживания пенобетон современные от 200 до 300 кв.м в европейском стиле с террасой из газобетона готовые двухэтажные с котельной двухэтажные из газобетона из газосиликатных блоков двухэтажные из пеноблоков загородные с четырехскатной крышей из керамзитобетонных блоков угловые из газобетона с террасой из блоков двухэтажные из блоков из пеноблоков с террасой загородные из газобетона Проекты двухэтажных домов с террасой Проекты двухэтажных домов с верандой без гаража каменные с 4 спальнями г-образные из пеноблоков загородные от 200 до 250 м двухэтажные с 4 спальнями двухэтажные в современном стиле двухэтажные без гаража из газобетона от 200 до 300 кв.м из газобетона с четырехскатной крышей из газобетона современные из газобетона с котельной из газобетона угловые из газобетона готовые из газобетона с большой кухней из газобетона с четырьмя спальнями из газобетона с изолированной кухней из газобетона для постоянного проживания двухэтажные из газобетона без гаража двухэтажные из газобетона с террасой двухэтажные из газобетона с котельной двухэтажные из газобетона современные двухэтажные из газобетона с четырехскатной крышей двухэтажные из газобетона без подвала двухэтажные из газобетона с изолированной кухней двухэтажные из газобетона с 4 спальнями современные без гаража современные с окнами в пол современные с террасой из пеноблоков в современном стиле из пеноблоков с четырехскатной крышей из пеноблоков с окнами до пола из пеноблоков угловые из пеноблоков для постоянного проживания из пеноблоков готовые из пеноблоков от 200 до 300 м2 из пеноблоков с 4 спальнями из пеноблоков с большой кухней из пеноблоков с изолированной кухней недорогие двухэтажные недорогие без гаража недорогие с террасой недорогие для постоянного проживания недорогие с четырехскатной крышей недорогие с окнами до пола недорогие с изолированной кухней недорогие без бани недорогие с котельной недорогие угловые недорогие от 200 до 300 м2 из клееного бруса без гаража Показать все категории Скрыть категории

Похожие проекты
Состав проекта
Входит в стоимость
Цена, руб. Сроки, дней
Комплект архитектурно-строительных чертежей (АС) Входит в стоимость Готов к отправке
Готово к продаже
Цена, руб. Сроки, дней
Дополнительная копия проекта формата А3 3 000 ₽ Готов к отправке в корзину
Электронная версия проекта (PDF) 4 000 ₽ Готов к отправке в корзину
Разрабатывается отдельно
Цена, руб. Сроки, дней
Адаптация фундамента (изменение типа фундамента) по запросу 14 рабочих дней
Дизайн интерьера (стоимость от 2200руб. за квад.метр площади) по запросу 30 рабочих дней
Внесение изменений в проект по запросу 20 рабочих дней
Фэншуй дома 20 000 ₽ 14 рабочих дней в корзину
Фэншуй участка 15 000 ₽ 14 рабочих дней в корзину
Фэншуй полная консультация дом+участок с выездом на объект 100 000 ₽ 30 рабочих дней в корзину
Опции проекта вы можете заказать в корзине при оформлении заказа
Предложения строителей Республика Башкортостан
Отзывы покупателей
Рейтинг покупателей
0 / 5 5 5 1
На основе 1 оценок покупателей
0%
0%
0%
0%
0%
Отзывы о проекте D6036
Отзыв о проекте D6036
Чтобы оставить отзыв, пожалуйста авторизуйтесь.
Подбор строительной компании
Не знаете кому доверить строительство дома? Мы можем помочь! Подберем для вас из сотен наших партнеров несколько компаний с лучшем соотношением цена/качество под конкретно ваш запрос.
Подобрать