Главная Проекты домов Проект одноэтажного дома с верандой, гаражом и тремя спальнями

D5892 Проект одноэтажного дома с верандой, гаражом и тремя спальнями

Сравнить проект В избранное
Технические характеристики
Общие
Материал стен
Кирпич
Общая площадь
182 м²
Жилая площадь
69 м²
Площадь застройки
193 м²
Приведенная площадь
183.55 м²
Количество жилых комнат/спален
3
Этажи
1 этаж
Гараж
Нет гаража
Количество машин
1
Подвал / цокольный этаж
Без подвала
Длина дома
18.5 м
Ширина дома
15.3 м
Высота в коньке
5.9 м
Кровля
Металлочерепица
Облицовка внешних стен
Облицовочный кирпич
Толщина несущих наружных стен
380 мм
Межэтажные перекрытия
По деревянным балкам
Внутренние не несущие перегородки
Кирпичные
Фундамент
Малозаглубленные ростверки
Терраса
Терраса застекленная (веранда)
Дополнительные
Окна
Окна до пола
Камин
Есть
Сауна/баня внутри
Нет
Площадь гостиной
25.5 м²
Площадь кухни
15 м²
Количество санузлов
2
Окно в ванной комнате
Есть
Котельная
Есть
Хозяйский санузел
Есть
Хозяйская гардеробная
Есть
Кладовая
1
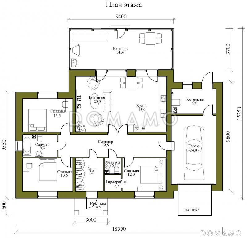
Планы помещений
Фасады
Описание проекта
Компания Domamo предлагает проект одноэтажного дома с верандой, гаражом и тремя спальнями D5892. Общая площадь - 182 м2, размер - 18.5х15.3 м. Фундамент - малозаглубленные ростверки, кровля - металлочерепица, внешняя отделка - облицовочный кирпич. Для заказа проекта или внесения изменений свяжитесь с нами с помощью форм обратной связи на сайте или по телефону +7 (831) 231-05-02.
Категории проекта: для постоянного проживания кирпич современные дачные дома гостевые от 100 до 200 кв.м в европейском стиле кирпичные европейские дома с террасой из кирпича с террасой готовые гостевые из кирпича дачные из кирпича загородные из кирпича одноэтажные из кирпича одноэтажные кирпичные с котельной одноэтажные кирпичные с котельной одноэтажные с котельной с котельной кирпичные до 200 кв.м дачные с верандой до 200 кв.м загородные с ломаной крышей с камином с гардеробной с печью с верандой кирпичные с верандой современные кирпичные Проекты одноэтажных домов с террасой дачные одноэтажные Проекты одноэтажных домов с верандой Типовые проекты загородных одноэтажных домов без гаража одноэтажные без гаража дачные с террасой с террасой и камином облицованные кирпичом дачные с камином одноэтажные с тремя спальнями Проекты домов с тремя спальнями одноэтажные до 200 кв м сложной формы одноэтажные современные одноэтажные с окнами в пол одноэтажные с камином одноэтажные гостевые одноэтажные европейские одноэтажные с 2 санузлами одноэтажные из кирпича с террасой одноэтажные из кирпича с 3 спальнями готовые для постоянного проживания гостевые дачные с камином без гаража с верандой без подвала в европейском стиле современные сложной формы современные без гаража современные с окнами в пол современные с террасой современные от 100 до 200 кв. м европейские для постоянного проживания европейские дачные европейские гостевые европейские готовые европейские без подвала европейские с террасой европейские с 2 санузлами европейские с котельной европейские с кладовой европейские с окнами в пол европейские с вальмовой крышей европейские с камином европейские 100-200 м2 недорогие кирпичные недорогие без гаража недорогие с террасой недорогие для постоянного проживания недорогие гостевые недорогие дачные недорогие с вальмовой крышей недорогие с окнами до пола недорогие без бани недорогие с котельной недорогие с камином недорогие сложной формы недорогие от 100 до 200 м2 из клееного бруса без гаража Показать все категории Скрыть категории

Похожие проекты
Состав проекта
Входит в стоимость
Цена, руб. Сроки, дней
Комплект архитектурно-строительных чертежей (АС) Входит в стоимость Готов к отправке
Готово к продаже
Цена, руб. Сроки, дней
Паспорт рабочего проекта 5 000 ₽ 3 рабочих дня в корзину
Дополнительная копия проекта формата А3 4 000 ₽ Готов к отправке в корзину
Электронная копия проекта (скан распечатанной версии) 4 000 ₽ 3 рабочих дня в корзину
Разрабатывается отдельно
Цена, руб. Сроки, дней
Адаптация фундамента (изменение типа фундамента) по запросу 14 рабочих дней
Дизайн интерьера (стоимость от 2200руб. за квад.метр площади) по запросу 30 рабочих дней
Внесение изменений в проект по запросу 20 рабочих дней
Инженерные разделы: ВК + ОВ + ЭО 40 000 ₽ 20 рабочих дней в корзину
Зеркалирование проекта (для которого нет зеркальной версии) 8 000 ₽ 5 рабочих дней в корзину
Разработка Генплана участка, в масштабе 1:250 7 500 ₽ 5 рабочих дней в корзину
Фэншуй дома 20 000 ₽ 14 рабочих дней в корзину
Фэншуй участка 15 000 ₽ 14 рабочих дней в корзину
Фэншуй полная консультация дом+участок с выездом на объект 100 000 ₽ 30 рабочих дней в корзину
Опции проекта вы можете заказать в корзине при оформлении заказа
Предложения строителей Выбрать регион
Минимальная
6 424 250 ₽
Стандарт
7 892 650 ₽
Под чистовую отделку
10 278 800 ₽
Показать подробные комплектации
Минимальная
15 601 750 ₽
Стандарт
18 355 000 ₽
Под чистовую отделку
23 861 500 ₽
Показать подробные комплектации
Минимальная
8 575 456 ₽
Стандарт
12 595 201 ₽
Под чистовую отделку
19 830 742 ₽
Показать подробные комплектации
Минимальная
7 354 848 ₽
Стандарт
8 445 135 ₽
Под чистовую отделку
10 813 297 ₽
Показать подробные комплектации
Минимальная
3 599 956 ₽
Стандарт
4 457 979 ₽
Под чистовую отделку
5 365 726 ₽
Показать подробные комплектации
Подбор строительной компании
Не знаете кому доверить строительство дома? Мы можем помочь! Подберем для вас из сотен наших партнеров несколько компаний с лучшем соотношением цена/качество под конкретно ваш запрос.
Подобрать
Посмотреть еще 20 компаний Свернуть
Отзывы покупателей
Рейтинг покупателей
0 / 5 5 5 1
На основе 1 оценок покупателей
0%
0%
0%
0%
0%
Отзывы о проекте D5892
Отзыв о проекте D5892
Чтобы оставить отзыв, пожалуйста авторизуйтесь.
Подбор строительной компании
Не знаете кому доверить строительство дома? Мы можем помочь! Подберем для вас из сотен наших партнеров несколько компаний с лучшем соотношением цена/качество под конкретно ваш запрос.
Подобрать