Главная Проекты домов Проект современного одноэтажного дома с плоской кровлей и гаражом на две машины

D5872 Проект современного одноэтажного дома с плоской кровлей и гаражом на две машины

Сравнить проект В избранное
Технические характеристики
Общие
Материал стен
Газобетон
Общая площадь
180 м²
Площадь застройки
267.3 м²
Приведенная площадь
179.38 м²
Количество жилых комнат/спален
3
Этажи
1 этаж
Гараж
Пристроенный гараж
Количество машин
2
Подвал / цокольный этаж
Без подвала
Длина дома
21.01 м
Ширина дома
11.41 м
Высота в коньке
3.84 м
Кровля
Полимерная мембрана
Облицовка внешних стен
Мокрая штукатурка
Толщина несущих наружных стен
375 мм
Межэтажные перекрытия
Монолитные
Внутренние не несущие перегородки
Газобетонные
Фундамент
Ленточный монолитный
Терраса
Терраса открытая
Дополнительные
Окна
Окна до пола
,
Панорамные окна
Сауна/баня внутри
Нет
Площадь гостиной
23.2 м²
Площадь кухни
9.9 м²
Количество санузлов
3
Окно в ванной комнате
Есть
Котельная
Есть
Хозяйский санузел
Есть
Хозяйская гардеробная
Есть
Кладовая
3
Длина участка
31.01 м
Ширина участка
17.41 м
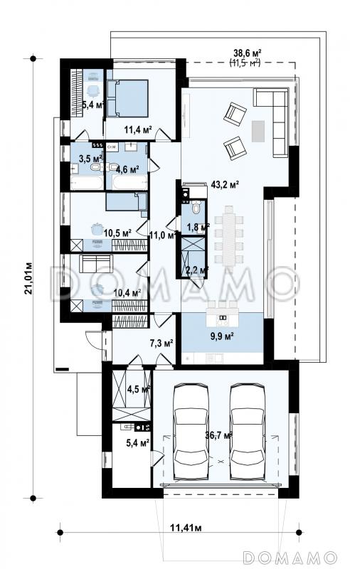
Планы помещений
Описание проекта
Компания Domamo предлагает проект современного одноэтажного дома с плоской кровлей и гаражом на две машины D5872. Общая площадь - 180 м2, размер - 21.01х11.41 м. Фундамент - ленточный монолитный, кровля - полимерная мембрана, внешняя отделка - мокрая штукатурка. Для заказа проекта или внесения изменений свяжитесь с нами с помощью форм обратной связи на сайте или по телефону +7 (831) 231-05-02.
Категории проекта: с гаражом для постоянного проживания пенобетон в стиле хай-тек современные от 100 до 200 кв.м в европейском стиле с террасой из газобетона в стиле хай-тек из газобетона одноэтажные из пеноблоков готовые из газобетона с гаражом в стиле минимализм одноэтажные одноэтажные с гаражом одноэтажные с котельной с котельной одноэтажные из газобетона из газосиликатных блоков из пеноблоков с гаражом с плоской крышей до 200 кв.м загородные из керамзитобетонных блоков с гардеробной с панорамным остеклением из газобетона с террасой из блоков одноэтажные из блоков из блоков с гаражом одноэтажные в стиле хай-тек в стиле хай-тек с плоской крышей из пеноблоков с террасой загородные из газобетона Проекты одноэтажных домов с террасой Типовые проекты загородных одноэтажных домов одноэтажные с тремя спальнями Проекты домов с тремя спальнями с гаражом под одной крышей одноэтажных из керамзитобетонных блоков одноэтажные с гаражом и террасой с гаражом на 2 машины одноэтажные с плоской крышей с гаражом и террасой с панорамными окнами и террасой одноэтажные до 200 кв м современный с плоской крышей из пеноблоков загородные сложной формы одноэтажные современные одноэтажные в стиле минимализм одноэтажные с панорамными окнами одноэтажные с окнами в пол одноэтажные до 180 м2 одноэтажные из газобетона с гаражом одноэтажные из газобетона с террасой одноэтажные из газобетона с мансардой одноэтажные из газобетона с 3 спальнями минимализм современные панорамные окна окна в пол плоская крыша сложной формы готовые проекты для постоянного проживания с котельной с гардеробной из газобетона до 200 кв.м из газобетона от 100 до 200 кв.м из газобетона с плоской крышей из газобетона в стиле минимализм из газобетона современные из газобетона с панорамными окнами из газобетона с котельной из газобетона готовые из газобетона с тремя спальнями из газобетона для постоянного проживания современные с гаражом современные с панорамными окнами современные с окнами в пол современные с террасой современные от 100 до 200 кв. м европейские с плоской крышей из пеноблоков в современном стиле из пеноблоков в стиле минимализм из пеноблоков в стиле хай-тек из пеноблоков с плоской крышей из пеноблоков с окнами до пола из пеноблоков с панорамными окнами из пеноблоков нестандартные из пеноблоков для постоянного проживания из пеноблоков готовые из пеноблоков от 100 до 200 м2 из пеноблоков с 3 спальнями хай-тек для постоянного проживания хай-тек с гаражом хай-тек с окнами в пол хай-тек с панорамными окнами хай-тек с террасой хай-тек нестандартные хай-тек готовые хай-тек на ленточном фундаменте хай-тек с котельной хай-тек с мастер-спальней хай-тек с 3 спальнями хай-тек без бани хай-тек с гаражом на 2 машины хай-тек без подвала хай-тек от 100 до 200 м2 в стиле минимализм для постоянного проживания в стиле минимализм с гаражом в стиле минимализм нестандартные в стиле минимализм с плоской крышей в стиле минимализм с окнами в пол в стиле минимализм с панорамными окнами в стиле минимализм с террасой в стиле минимализм с 3 спальнями в стиле минимализм с котельной в стиле минимализм от 100 до 200 м2 в стиле минимализм с гардеробной в стиле минимализм с ленточным фундаментом недорогие с панорамными окнами из клееного бруса без гаража с плоской крышей и большой террасой с плоской крышей готовые с плоской крышей для постоянного проживания с плоской крышей и окном в ванной комнате с плоской крышей сложной формы с плоской крышей и окнами в пол в гостиной с плоской крышей и окнами в пол на кухне с плоской крышей и окнами до пола с плоской крышей и панорамными окнами с плоской крышей и монолитными перекрытиями с плоской крышей и облицовкой мокрой штукатуркой с плоской крышей и хозяйской гардеробной с плоской крышей и хозяйским санузлом с плоской крышей и котельной с плоской крышей без сауны Показать все категории Скрыть категории

Похожие проекты
Состав проекта
Входит в стоимость
Цена, руб. Сроки, дней
Комплект архитектурно-строительных чертежей (АС) Входит в стоимость Готов к отправке
Готово к продаже
Цена, руб. Сроки, дней
Паспорт рабочего проекта 8 000 ₽ 5 рабочих дней в корзину
Инженерные разделы: ВК + ОВ + ЭО 36 900 ₽ Готов к отправке в корзину
Дополнительная копия проекта формата А3 6 500 ₽ 5 рабочих дней в корзину
Электронная копия проекта (скан распечатанной версии) 4 000 ₽ 3 рабочих дня в корзину
Разрабатывается отдельно
Цена, руб. Сроки, дней
Адаптация фундамента (изменение типа фундамента) по запросу 14 рабочих дней
Дизайн интерьера (стоимость от 2200руб. за квад.метр площади) по запросу 30 рабочих дней
Внесение изменений в проект по запросу 20 рабочих дней
Разработка Генплана участка, в масштабе 1:250 7 500 ₽ 15 рабочих дней в корзину
Фэншуй дома 20 000 ₽ 14 рабочих дней в корзину
Фэншуй участка 15 000 ₽ 14 рабочих дней в корзину
Фэншуй полная консультация дом+участок с выездом на объект 100 000 ₽ 30 рабочих дней в корзину
Опции проекта вы можете заказать в корзине при оформлении заказа
Предложения строителей Выбрать регион
Минимальная
6 098 920 ₽
Стандарт
7 533 960 ₽
Под чистовую отделку
9 865 900 ₽
Показать подробные комплектации
Минимальная
15 247 300 ₽
Стандарт
17 938 000 ₽
Под чистовую отделку
23 319 400 ₽
Показать подробные комплектации
Минимальная
8 118 738 ₽
Стандарт
12 047 160 ₽
Под чистовую отделку
19 118 320 ₽
Показать подробные комплектации
Минимальная
6 278 300 ₽
Стандарт
7 533 960 ₽
Под чистовую отделку
8 430 860 ₽
Показать подробные комплектации
Минимальная
5 789 668 ₽
Стандарт
8 497 230 ₽
Под чистовую отделку
9 090 978 ₽
Показать подробные комплектации
Минимальная
5 273 772 ₽
Стандарт
6 027 168 ₽
Под чистовую отделку
7 910 658 ₽
Показать подробные комплектации
Подбор строительной компании
Не знаете кому доверить строительство дома? Мы можем помочь! Подберем для вас из сотен наших партнеров несколько компаний с лучшем соотношением цена/качество под конкретно ваш запрос.
Подобрать
Посмотреть еще 32 компании Свернуть
Отзывы покупателей
Рейтинг покупателей
0 / 5 5 5 1
На основе 1 оценок покупателей
0%
0%
0%
0%
0%
Отзывы о проекте D5872
Отзыв о проекте D5872
Чтобы оставить отзыв, пожалуйста авторизуйтесь.
Подбор строительной компании
Не знаете кому доверить строительство дома? Мы можем помочь! Подберем для вас из сотен наших партнеров несколько компаний с лучшем соотношением цена/качество под конкретно ваш запрос.
Подобрать