Главная Проекты домов Проект двухэтажного дома с совмещенными гостиной, столовой, холлом и кухней

D5705 Проект двухэтажного дома с совмещенными гостиной, столовой, холлом и кухней

Сравнить проект В избранное
Проект двухэтажного дома с совмещенными гостиной, столовой, холлом и кухней / 1
Проект двухэтажного дома с совмещенными гостиной, столовой, холлом и кухней / 2
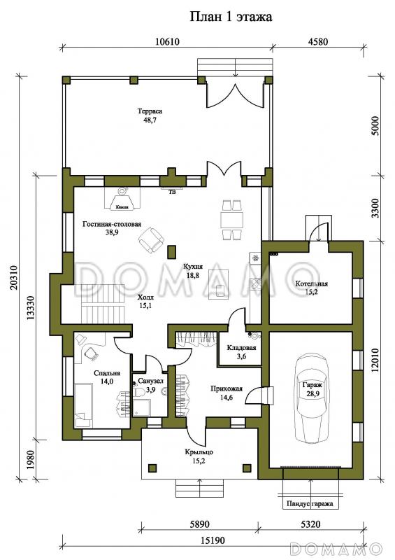
Проект двухэтажного дома с совмещенными гостиной, столовой, холлом и кухней / 3
Проект двухэтажного дома с совмещенными гостиной, столовой, холлом и кухней / 4
Проект двухэтажного дома с совмещенными гостиной, столовой, холлом и кухней / 1
Проект двухэтажного дома с совмещенными гостиной, столовой, холлом и кухней / 2
Проект двухэтажного дома с совмещенными гостиной, столовой, холлом и кухней / 3
Проект двухэтажного дома с совмещенными гостиной, столовой, холлом и кухней / 4
D5705
302 м²
Подготовка проекта:
5 рабочих дней
Стоимость проекта
Купить проект
Задайте вопросы по проекту нашему архитектору
8 (800) 200-28-83
Время работы: пн-вс: с 9:00 до 20:00
Задать вопрос по проекту

Технические характеристики
Общие
Материал стен
Кирпич
Общая площадь
302 м²
Жилая площадь
130 м²
Площадь застройки
285 м²
Приведенная площадь
270.47 м²
Количество жилых комнат/спален
5
Этажи
2 этажа
Гараж
Нет гаража
Количество машин
1
Подвал / цокольный этаж
Без подвала
Длина дома
20.3 м
Ширина дома
15.2 м
Высота в коньке
9.3 м
Кровля
Металлочерепица
Облицовка внешних стен
Облицовочный кирпич
Толщина несущих наружных стен
380 мм
Межэтажные перекрытия
Монолитные
Внутренние не несущие перегородки
Кирпичные
Фундамент
Малозаглубленные ростверки
Терраса
Терраса крытая
Дополнительные
Камин
Есть
Сауна/баня внутри
Нет
Площадь гостиной
20 м²
Площадь кухни
18.8 м²
Количество санузлов
3
Окно в ванной комнате
Есть
Котельная
Есть
Хозяйский санузел
Есть
Кладовая
1
Планы помещений
Описание проекта
Компания Domamo предлагает проект двухэтажного дома с совмещенными гостиной, столовой, холлом и кухней D5705. Общая площадь - 302 м2, размер - 20.3х15.2 м. Фундамент - малозаглубленные ростверки, кровля - металлочерепица, внешняя отделка - облицовочный кирпич. Для заказа проекта или внесения изменений свяжитесь с нами с помощью форм обратной связи на сайте или по телефону +7 (831) 231-05-02.
Категории проекта: для постоянного проживания кирпич в классическом стиле современные от 300 до 400 кв.м кирпичные дома хай-тек классические кирпичные дома в европейском стиле кирпичные европейские дома с террасой из кирпича с террасой готовые загородные из кирпича двухэтажные из кирпича двухэтажные кирпичные с котельной с котельной загородные с камином современные кирпичные Проекты двухэтажных домов с террасой Проекты двухэтажных домов с верандой без гаража с террасой и камином облицованные кирпичом с 5 спальнями сложной формы двухэтажные с камином двухэтажные в классическом стиле двухэтажные в современном стиле двухэтажные без гаража современные без гаража современные с террасой современные большие классические для постоянного проживания классические без гаража классические с террасой классические готовые классические элитные классические с котельной классические с большой кухней классические без подвала классические нестандартные классические с камином классические с вальмовой крышей европейские для постоянного проживания европейские готовые европейские без подвала европейские с террасой европейские с котельной европейские с кладовой европейские с вальмовой крышей европейские с камином европейские 300-400 м2 из клееного бруса без гаража Показать все категории Скрыть категории

Похожие проекты
Состав проекта
Входит в стоимость
Цена, руб. Сроки, дней
Комплект архитектурно-строительных чертежей (АС) Входит в стоимость Готов к отправке
Готово к продаже
Цена, руб. Сроки, дней
Паспорт рабочего проекта 5 000 ₽ 3 рабочих дня в корзину
Дополнительная копия проекта формата А3 4 000 ₽ Готов к отправке в корзину
Электронная копия проекта (скан распечатанной версии) 4 000 ₽ 3 рабочих дня в корзину
Разрабатывается отдельно
Цена, руб. Сроки, дней
Адаптация фундамента (изменение типа фундамента) по запросу 14 рабочих дней
Дизайн интерьера (стоимость от 2200руб. за квад.метр площади) по запросу 30 рабочих дней
Внесение изменений в проект по запросу 20 рабочих дней
Инженерные разделы: ВК + ОВ + ЭО 40 000 ₽ 20 рабочих дней в корзину
Зеркалирование проекта (для которого нет зеркальной версии) 8 000 ₽ 5 рабочих дней в корзину
Разработка Генплана участка, в масштабе 1:250 7 500 ₽ 5 рабочих дней в корзину
Фэншуй дома 20 000 ₽ 14 рабочих дней в корзину
Фэншуй участка 15 000 ₽ 14 рабочих дней в корзину
Фэншуй полная консультация дом+участок с выездом на объект 100 000 ₽ 30 рабочих дней в корзину
Опции проекта вы можете заказать в корзине при оформлении заказа
Отзывы покупателей
Рейтинг покупателей
0 / 5 5 5 1
На основе 1 оценок покупателей
0%
0%
0%
0%
0%
Отзывы о проекте D5705
Отзыв о проекте D5705
Чтобы оставить отзыв, пожалуйста авторизуйтесь.
Подбор строительной компании
Не знаете кому доверить строительство дома? Мы можем помочь! Подберем для вас из сотен наших партнеров несколько компаний с лучшем соотношением цена/качество под конкретно ваш запрос.
Подобрать