Главная Проекты домов Проект загородного дома с гаражом на одну машину, кладовой на кухне, мастер-спальней в мансарде

D561 Проект загородного дома с гаражом на одну машину, кладовой на кухне, мастер-спальней в мансарде

Сравнить проект В избранное
Технические характеристики
Общие
Материал стен
Кирпич
Общая площадь
157 м²
Жилая площадь
74.4 м²
Площадь застройки
106.9 м²
Приведенная площадь
150.5 м²
Количество жилых комнат/спален
3
Этажи
1 этаж + мансарда
Гараж
Нет гаража
Количество машин
1
Подвал / цокольный этаж
Без подвала
Длина дома
12.27 м
Ширина дома
12.26 м
Кровля
Металлочерепица
Облицовка внешних стен
Мокрая штукатурка
,
Облицовочный кирпич
Толщина несущих наружных стен
380 мм
Межэтажные перекрытия
Монолитные
Фундамент
Ленточный монолитный
Терраса
Без террасы
Дополнительные
Окна
Окна до пола
Мансардные окна
Есть
Камин
Есть
Сауна/баня внутри
Нет
Площадь гостиной
27.2 м²
Площадь кухни
8.2 м²
Количество санузлов
3
Котельная
Есть
Хозяйский санузел
Есть
Хозяйская гардеробная
Есть
Кладовая
2
Длина участка
19.27 м
Ширина участка
16.76 м
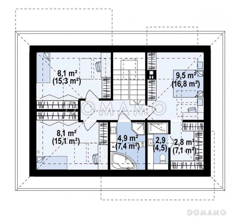
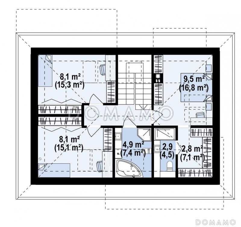
Планы помещений
Фасады
Описание проекта
Компания Domamo предлагает проект загородного дома с гаражом на одну машину, кладовой на кухне, мастер-спальней в мансарде D561. Общая площадь - 157 м2, размер - 12.27х12.26 м. Фундамент - ленточный монолитный, кровля - металлочерепица, внешняя отделка - облицовочный кирпич мокрая штукатурка. Для заказа проекта или внесения изменений свяжитесь с нами с помощью форм обратной связи на сайте или по телефону +7 (831) 231-05-02.
Категории проекта: с мансардой для постоянного проживания кирпич современные от 100 до 200 кв.м кирпичные дома с мансардой в европейском стиле готовые загородные из кирпича одноэтажные из кирпича одноэтажные из кирпича с мансардой одноэтажные кирпичные с котельной одноэтажные с мансардой кирпичные с котельной одноэтажные с котельной с котельной кирпичные до 200 кв.м до 200 кв.м 12х12 9х12 загородные с четырехскатной крышей с камином с гардеробной квадратные 10х12 современные кирпичные Типовые проекты загородных одноэтажных домов без гаража одноэтажные без гаража облицованные кирпичом одноэтажные с тремя спальнями Проекты домов с тремя спальнями одноэтажные 12 на 12 с мансардой 12 на 12 полутораэтажные 9 на 12 с мансардой одноэтажные до 200 кв м полутораэтажные из кирпича 10x12 с мансардой одноэтажные с мансардными окнами с мансардой с котельной с мансардой с камином с мансардой с четырехскатной крышей с мансардой современные с мансардой с окнами до пола с мансардой с мансардными окнами с мансардой квадратные с мансардой готовые с мансардой для постоянного проживания с мансардой до 200 кв.м одноэтажные из кирпича с 3 спальнями с четырехскатной крышей готовые для постоянного проживания с камином без гаража без террасы без подвала современные квадратные одноэтажные с мансардой для постоянного проживания одноэтажные с мансардой современные современные без гаража современные с окнами в пол современные без террасы современные 12х12 современные от 100 до 200 кв. м европейские 12х12 из клееного бруса без гаража Показать все категории Скрыть категории

Похожие проекты
Состав проекта
Входит в стоимость
Цена, руб. Сроки, дней
Комплект архитектурно-строительных чертежей (АС) Входит в стоимость Готов к отправке
Готово к продаже
Цена, руб. Сроки, дней
Паспорт рабочего проекта 8 000 ₽ 5 рабочих дней в корзину
Инженерные разделы: ВК + ОВ + ЭО 16 325 ₽ Готов к отправке в корзину
Дополнительная копия проекта формата А3 6 500 ₽ 5 рабочих дней в корзину
Электронная копия проекта (скан распечатанной версии) 4 000 ₽ 3 рабочих дня в корзину
Разрабатывается отдельно
Цена, руб. Сроки, дней
Адаптация фундамента (изменение типа фундамента) по запросу 14 рабочих дней
Дизайн интерьера (стоимость от 2200руб. за квад.метр площади) по запросу 30 рабочих дней
Внесение изменений в проект по запросу 20 рабочих дней
Разработка Генплана участка, в масштабе 1:250 7 500 ₽ 15 рабочих дней в корзину
Фэншуй дома 20 000 ₽ 14 рабочих дней в корзину
Фэншуй участка 15 000 ₽ 14 рабочих дней в корзину
Фэншуй полная консультация дом+участок с выездом на объект 100 000 ₽ 30 рабочих дней в корзину
Опции проекта вы можете заказать в корзине при оформлении заказа
Предложения строителей Выбрать регион
Минимальная
5 267 500 ₽
Стандарт
6 471 500 ₽
Под чистовую отделку
8 428 000 ₽
Показать подробные комплектации
Минимальная
15 351 000 ₽
Стандарт
18 060 000 ₽
Под чистовую отделку
23 478 000 ₽
Показать подробные комплектации
Минимальная
7 753 760 ₽
Стандарт
11 388 335 ₽
Под чистовую отделку
17 930 570 ₽
Показать подробные комплектации
Минимальная
6 030 535 ₽
Стандарт
6 924 505 ₽
Под чистовую отделку
8 866 256 ₽
Показать подробные комплектации
Минимальная
3 232 867 ₽
Стандарт
4 003 397 ₽
Под чистовую отделку
4 818 581 ₽
Показать подробные комплектации
Подбор строительной компании
Не знаете кому доверить строительство дома? Мы можем помочь! Подберем для вас из сотен наших партнеров несколько компаний с лучшем соотношением цена/качество под конкретно ваш запрос.
Подобрать
Посмотреть еще 20 компаний Свернуть
Отзывы покупателей
Рейтинг покупателей
0 / 5 5 5 1
На основе 1 оценок покупателей
0%
0%
0%
0%
0%
Отзывы о проекте D561
Отзыв о проекте D561
Чтобы оставить отзыв, пожалуйста авторизуйтесь.
Подбор строительной компании
Не знаете кому доверить строительство дома? Мы можем помочь! Подберем для вас из сотен наших партнеров несколько компаний с лучшем соотношением цена/качество под конкретно ваш запрос.
Подобрать