Главная Проекты домов Проект дома из газобетона с эркером, крыльцом-террасой и 4 спальнями

D5565 Проект дома из газобетона с эркером, крыльцом-террасой и 4 спальнями

Сравнить проект В избранное
Проект дома из газобетона с эркером, крыльцом-террасой и 4 спальнями / 1
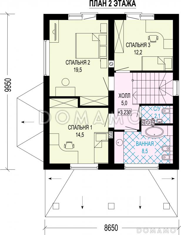
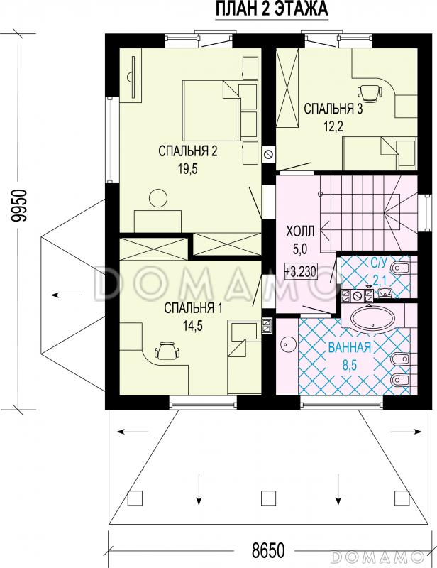
Проект дома из газобетона с эркером, крыльцом-террасой и 4 спальнями / 2
Проект дома из газобетона с эркером, крыльцом-террасой и 4 спальнями / 1
Проект дома из газобетона с эркером, крыльцом-террасой и 4 спальнями / 2
D5565
137 м²
Подготовка проекта:
20 рабочих дней
Стоимость проекта
Купить проект
Задайте вопросы по проекту нашему архитектору
8 (800) 200-28-83
Время работы: пн-вс: с 9:00 до 20:00
Задать вопрос по проекту

Технические характеристики
Общие
Материал стен
Газобетон
Общая площадь
137 м²
Жилая площадь
87.7 м²
Приведенная площадь
135.88 м²
Количество жилых комнат/спален
4
Этажи
2 этажа
Гараж
Нет гаража
Подвал / цокольный этаж
Без подвала
Длина дома
13.39 м
Ширина дома
9.85 м
Высота в коньке
9.49 м
Кровля
Натуральная черепица
Облицовка внешних стен
Деревянная вагонка
,
Мокрая штукатурка
Толщина несущих наружных стен
380 мм
Межэтажные перекрытия
По деревянным балкам
Внутренние не несущие перегородки
Газобетонные
Фундамент
Монолитная ж/бетонная плита
Терраса
Терраса крытая
Дополнительные
Окна
Окна до пола
,
Окна с французским балконом
Камин
Есть
Сауна/баня внутри
Нет
Площадь гостиной
29.3 м²
Площадь кухни
8.7 м²
Количество санузлов
3
Окно в ванной комнате
Есть
Котельная
Есть
Планы помещений
Фасады
Описание проекта
Компания Domamo предлагает проект дома из газобетона с эркером, крыльцом-террасой и 4 спальнями D5565. Общая площадь - 137 м2, размер - 13.39х9.85 м. Фундамент - монолитная ж/бетонная плита, кровля - натуральная черепица, внешняя отделка - деревянная вагонка мокрая штукатурка. Для заказа проекта или внесения изменений свяжитесь с нами с помощью форм обратной связи на сайте или по телефону +7 (831) 231-05-02.
Категории проекта: для постоянного проживания пенобетон современные от 100 до 200 кв.м в европейском стиле с эркером с террасой из газобетона с эркером из газобетона готовые двухэтажные с котельной двухэтажные из газобетона из газосиликатных блоков двухэтажные из пеноблоков до 150 кв.м до 200 кв.м загородные с четырехскатной крышей из керамзитобетонных блоков с камином прямоугольные из газобетона с террасой двухэтажные с эркером из блоков двухэтажные из блоков из блоков с эркером Проекты домов из пеноблоков с эркером из пеноблоков с террасой загородные из газобетона Проекты двухэтажных домов с террасой Проекты двухэтажных домов с верандой без гаража с террасой и камином двухэтажные до 150 кв м двухэтажные 200 кв м с 4 спальнями до 140 кв м из пеноблоков загородные двухэтажные до 180 кв.м двухэтажные с камином двухэтажные с 4 спальнями двухэтажные в современном стиле двухэтажные до 150 кв.м с террасой двухэтажные без гаража из газобетона до 150 кв.м из газобетона до 200 кв.м из газобетона от 100 до 200 кв.м из газобетона с четырехскатной крышей из газобетона современные из газобетона с котельной из газобетона прямоугольные из газобетона готовые из газобетона с камином из газобетона с четырьмя спальнями из газобетона для постоянного проживания двухэтажные из газобетона без гаража двухэтажные из газобетона с террасой двухэтажные из газобетона с камином двухэтажные из газобетона с котельной двухэтажные из газобетона современные двухэтажные из газобетона с четырехскатной крышей двухэтажные из газобетона до 150 кв. м двухэтажные из газобетона до 200 кв. м двухэтажные из газобетона без подвала двухэтажные из газобетона с эркером двухэтажные из газобетона с 4 спальнями современные без гаража современные с окнами в пол современные с террасой современные до 150 кв. м современные от 100 до 200 кв. м до 150 кв.м для постоянного проживания до 150 кв.м без гаража до 150 кв.м с четырехскатной крышей до 150 кв.м с окнами до пола до 150 кв.м готовые до 150 кв.м прямоугольные до 150 кв.м с котельной до 150 кв.м без бани до 150 кв.м с террасой до 150 кв.м без подвала до 150 кв.м с 4 спальнями до 150 кв.м с камином из пеноблоков в современном стиле из пеноблоков с четырехскатной крышей из пеноблоков с окнами до пола из пеноблоков прямоугольные из пеноблоков для постоянного проживания из пеноблоков готовые из пеноблоков с камином из пеноблоков до 150 м кв. из пеноблоков от 100 до 200 м2 из пеноблоков с 4 спальнями из клееного бруса без гаража Показать все категории Скрыть категории

Похожие проекты
Состав проекта
Входит в стоимость
Цена, руб. Сроки, дней
Комплект архитектурно-строительных чертежей (АС) Входит в стоимость 20 рабочих дней
Готово к продаже
Цена, руб. Сроки, дней
Паспорт рабочего проекта 5 000 ₽ 20 рабочих дней в корзину
Инженерные разделы: ВК + ОВ + ЭО 23 000 ₽ 20 рабочих дней в корзину
Дополнительная копия проекта формата А3 3 000 ₽ 20 рабочих дней в корзину
Две дополнительные копии проекта формата А3 + 1 паспорт рабочего проекта 10 100 ₽ 20 рабочих дней в корзину
Электронная копия проекта (скан распечатанной версии) 4 000 ₽ 3 рабочих дня в корзину
Разрабатывается отдельно
Цена, руб. Сроки, дней
Адаптация фундамента (изменение типа фундамента) по запросу 14 рабочих дней
Дизайн интерьера (стоимость от 2200руб. за квад.метр площади) по запросу 30 рабочих дней
Внесение изменений в проект по запросу 20 рабочих дней
Фэншуй дома 20 000 ₽ 14 рабочих дней в корзину
Фэншуй участка 15 000 ₽ 14 рабочих дней в корзину
Фэншуй полная консультация дом+участок с выездом на объект 100 000 ₽ 30 рабочих дней в корзину
Опции проекта вы можете заказать в корзине при оформлении заказа
Варианты проекта Сравнить все варианты
Предложения строителей Республика Башкортостан
Отзывы покупателей
Рейтинг покупателей
0 / 5 5 5 1
На основе 1 оценок покупателей
0%
0%
0%
0%
0%
Отзывы о проекте D5565
Отзыв о проекте D5565
Чтобы оставить отзыв, пожалуйста авторизуйтесь.
Подбор строительной компании
Не знаете кому доверить строительство дома? Мы можем помочь! Подберем для вас из сотен наших партнеров несколько компаний с лучшем соотношением цена/качество под конкретно ваш запрос.
Подобрать