Главная Проекты домов Проект одноэтажного дома в стиле хай-тек с тремя спальнями и просторной гостиной

D5501 Проект одноэтажного дома в стиле хай-тек с тремя спальнями и просторной гостиной

Сравнить проект В избранное
Проект одноэтажного дома в стиле хай-тек с тремя спальнями и просторной гостиной / 1
Проект одноэтажного дома в стиле хай-тек с тремя спальнями и просторной гостиной / 2
Проект одноэтажного дома в стиле хай-тек с тремя спальнями и просторной гостиной / 1
Проект одноэтажного дома в стиле хай-тек с тремя спальнями и просторной гостиной / 2
D5501
208.2 м²
Подготовка проекта:
Готов к отправке
Стоимость проекта
Купить проект
Задайте вопросы по проекту нашему архитектору
8 (800) 200-28-83
Время работы: пн-вс: с 9:00 до 20:00
Задать вопрос по проекту

Технические характеристики
Общие
Материал стен
Кирпич
Общая площадь
208.2 м²
Жилая площадь
101.6 м²
Площадь застройки
256.6 м²
Приведенная площадь
208.22 м²
Количество жилых комнат/спален
3
Этажи
1 этаж
Гараж
Нет гаража
Количество машин
нет
Подвал / цокольный этаж
Без подвала
Длина дома
19.9 м
Ширина дома
16.1 м
Кровля
Рулонная кровля
Облицовка внешних стен
Мокрая штукатурка
Толщина несущих наружных стен
450 мм
Межэтажные перекрытия
По деревянным балкам
Внутренние не несущие перегородки
Каркасно-обшивные
Фундамент
Ленточный монолитный
Терраса
Терраса крытая
Дополнительные
Окна
Окна до пола
,
Панорамные окна
Камин
Есть
Сауна/баня внутри
Нет
Площадь гостиной
37.2 м²
Площадь кухни
21.1 м²
Количество санузлов
3
Окно в ванной комнате
Есть
Котельная
Есть
Постирочная
Есть
Хозяйский санузел
Есть
Хозяйская гардеробная
Есть
Кладовая
2
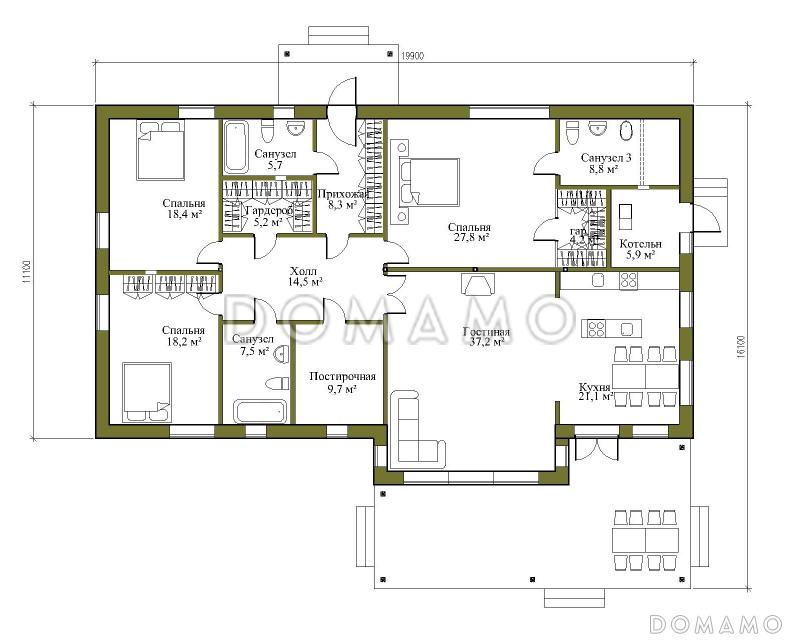
Планы помещений
Описание проекта
Компания Domamo предлагает проект одноэтажного дома в стиле хай-тек с тремя спальнями и просторной гостиной D5501. Общая площадь - 208.2 м2, размер - 19.9х16.1 м. Фундамент - ленточный монолитный, кровля - рулонная кровля, внешняя отделка - мокрая штукатурка. Для заказа проекта или внесения изменений свяжитесь с нами с помощью форм обратной связи на сайте или по телефону +7 (831) 231-05-02.
Категории проекта: для постоянного проживания кирпич в стиле хай-тек дачные дома гостевые от 200 до 300 кв.м кирпичные дома хай-тек с террасой из кирпича с террасой готовые гостевые из кирпича дачные из кирпича загородные из кирпича одноэтажные из кирпича одноэтажные кирпичные с котельной одноэтажные кирпичные с котельной одноэтажные с котельной с котельной дачные с верандой с плоской крышей загородные с камином с гардеробной прямоугольные с панорамным остеклением одноэтажные в стиле хай-тек в стиле хай-тек с плоской крышей Проекты одноэтажных домов с террасой дачные одноэтажные Типовые проекты загородных одноэтажных домов без гаража одноэтажные без гаража дачные с террасой с террасой и камином дачные с камином одноэтажные с тремя спальнями Проекты домов с тремя спальнями одноэтажные с плоской крышей с панорамными окнами и террасой от 200 до 250 м одноэтажные прямоугольные одноэтажные с панорамными окнами одноэтажные с окнами в пол одноэтажные с камином одноэтажные гостевые одноэтажные из кирпича с террасой одноэтажные из кирпича с плоской крышей одноэтажные из кирпича с 3 спальнями готовые для постоянного проживания гостевые дачные с камином без гаража без подвала с панорамными окнами прямоугольные с большой гостиной хай-тек для постоянного проживания гостевые в стиле хай-тек дачные в стиле хай-тек хай-тек без гаража хай-тек с окнами в пол хай-тек с панорамными окнами хай-тек с террасой хай-тек прямоугольные хай-тек готовые хай-тек недорогие хай-тек с камином хай-тек на ленточном фундаменте хай-тек с котельной хай-тек с прачечной хай-тек с мастер-спальней хай-тек с 3 спальнями хай-тек без бани хай-тек без подвала хай-тек от 200 до 300 м2 недорогие кирпичные недорогие без гаража недорогие с террасой недорогие для постоянного проживания недорогие гостевые недорогие дачные недорогие с плоской крышей недорогие с окнами до пола недорогие с панорамными окнами недорогие без бани недорогие с котельной недорогие с камином недорогие прямоугольные недорогие от 200 до 300 м2 из клееного бруса без гаража с плоской крышей и большой террасой с плоской крышей и большой гостиной с плоской крышей готовые с плоской крышей для постоянного проживания с плоской крышей и окном в ванной комнате с плоской крышей и камином с плоской крышей прямоугольные с плоской крышей и окнами в пол в гостиной с плоской крышей и окнами до пола с плоской крышей и панорамными окнами с плоской крышей и облицовкой мокрой штукатуркой с плоской крышей кирпичные с плоской крышей и хозяйской гардеробной с плоской крышей и хозяйским санузлом с плоской крышей и постирочной с плоской крышей и котельной с плоской крышей без сауны Показать все категории Скрыть категории

Похожие проекты
Состав проекта
Входит в стоимость
Цена, руб. Сроки, дней
Комплект архитектурно-строительных чертежей (АС) Входит в стоимость Готов к отправке
Готово к продаже
Цена, руб. Сроки, дней
Паспорт рабочего проекта 4 000 ₽ 3 рабочих дня в корзину
Дополнительная копия проекта формата А3 4 000 ₽ Готов к отправке в корзину
Электронная копия проекта (скан распечатанной версии) 4 000 ₽ 3 рабочих дня в корзину
Разрабатывается отдельно
Цена, руб. Сроки, дней
Адаптация фундамента (изменение типа фундамента) по запросу 14 рабочих дней
Дизайн интерьера (стоимость от 2200руб. за квад.метр площади) по запросу 30 рабочих дней
Внесение изменений в проект по запросу 20 рабочих дней
Разработка Генплана участка, в масштабе 1:250 7 500 ₽ 5 рабочих дней в корзину
Фэншуй дома 20 000 ₽ 14 рабочих дней в корзину
Фэншуй участка 15 000 ₽ 14 рабочих дней в корзину
Фэншуй полная консультация дом+участок с выездом на объект 100 000 ₽ 30 рабочих дней в корзину
Опции проекта вы можете заказать в корзине при оформлении заказа
Отзывы покупателей
Рейтинг покупателей
0 / 5 5 5 1
На основе 1 оценок покупателей
0%
0%
0%
0%
0%
Отзывы о проекте D5501
Отзыв о проекте D5501
Чтобы оставить отзыв, пожалуйста авторизуйтесь.
Подбор строительной компании
Не знаете кому доверить строительство дома? Мы можем помочь! Подберем для вас из сотен наших партнеров несколько компаний с лучшем соотношением цена/качество под конкретно ваш запрос.
Подобрать