Главная Проекты домов Проект одноэтажного дома с подвалом, гаражом на две машины, панорамным остеклением гостиной

D5279 Проект одноэтажного дома с подвалом, гаражом на две машины, панорамным остеклением гостиной

Сравнить проект В избранное
Проект одноэтажного дома с подвалом, гаражом на две машины, панорамным остеклением  гостиной / 1
Проект одноэтажного дома с подвалом, гаражом на две машины, панорамным остеклением  гостиной / 2
Проект одноэтажного дома с подвалом, гаражом на две машины, панорамным остеклением  гостиной / 3
Проект одноэтажного дома с подвалом, гаражом на две машины, панорамным остеклением  гостиной / 4
Проект одноэтажного дома с подвалом, гаражом на две машины, панорамным остеклением  гостиной / 5
Проект одноэтажного дома с подвалом, гаражом на две машины, панорамным остеклением  гостиной / 6
Проект одноэтажного дома с подвалом, гаражом на две машины, панорамным остеклением  гостиной / 1
Проект одноэтажного дома с подвалом, гаражом на две машины, панорамным остеклением  гостиной / 2
Проект одноэтажного дома с подвалом, гаражом на две машины, панорамным остеклением  гостиной / 3
Проект одноэтажного дома с подвалом, гаражом на две машины, панорамным остеклением  гостиной / 4
Проект одноэтажного дома с подвалом, гаражом на две машины, панорамным остеклением  гостиной / 5
Проект одноэтажного дома с подвалом, гаражом на две машины, панорамным остеклением  гостиной / 6
D5279
407 м²
Подготовка проекта:
Готов к отправке
Стоимость проекта
Купить проект
Задайте вопросы по проекту нашему архитектору
8 (800) 200-28-83
Время работы: пн-вс: с 9:00 до 20:00
Задать вопрос по проекту

Технические характеристики
Общие
Материал стен
Газобетон
Общая площадь
407 м²
Жилая площадь
86.9 м²
Площадь застройки
392.1 м²
Приведенная площадь
379.61 м²
Количество жилых комнат/спален
4
Этажи
1 этаж
Гараж
Пристроенный гараж
Количество машин
2
Подвал / цокольный этаж
Без окон
Длина дома
19.01 м
Ширина дома
16.91 м
Кровля
Металлочерепица
Облицовка внешних стен
Мокрая штукатурка
Толщина несущих наружных стен
375 мм
Межэтажные перекрытия
Монолитные
Фундамент
Ленточный монолитный
Терраса
Терраса крытая
Дополнительные
Окна
Окна до пола
,
Панорамные окна
Камин
Есть
Сауна/баня внутри
Нет
Площадь гостиной
39.2 м²
Площадь кухни
9.2 м²
Количество санузлов
4
Окно в ванной комнате
Есть
Хозяйский санузел
Есть
Хозяйская гардеробная
Есть
Кладовая
5
Длина участка
29.01 м
Ширина участка
26.91 м
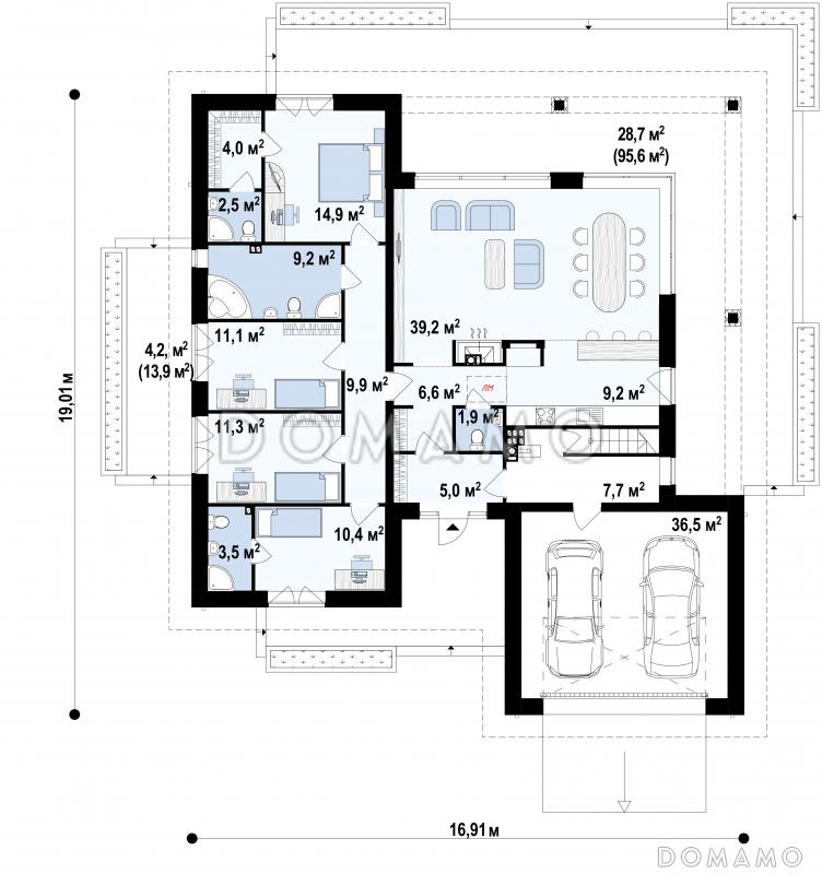
Планы помещений
Описание проекта
Компания Domamo предлагает проект одноэтажного дома с подвалом, гаражом на две машины, панорамным остеклением гостиной D5279. Общая площадь - 407 м2, размер - 19.01х16.91 м. Фундамент - ленточный монолитный, кровля - металлочерепица, внешняя отделка - мокрая штукатурка. Для заказа проекта или внесения изменений свяжитесь с нами с помощью форм обратной связи на сайте или по телефону +7 (831) 231-05-02.
Категории проекта: для постоянного проживания пенобетон современные от 400 до 500 кв.м в европейском стиле с террасой из газобетона с цокольным этажом из газобетона одноэтажные из пеноблоков готовые с цокольным этажом одноэтажные одноэтажные с подвалом с подвалом одноэтажные из газобетона из газосиликатных блоков загородные с четырехскатной крышей из керамзитобетонных блоков с камином с гардеробной элитные прямоугольные с панорамным остеклением из газобетона с террасой из блоков одноэтажные из блоков из пеноблоков с террасой загородные из газобетона Проекты одноэтажных домов с террасой Типовые проекты загородных одноэтажных домов без гаража одноэтажные без гаража с террасой и камином одноэтажных из керамзитобетонных блоков одноэтажные с 4 спальнями с 4 спальнями с панорамными окнами и террасой из пеноблоков загородные большие одноэтажные современные одноэтажные с четырехскатной крышей одноэтажные прямоугольные одноэтажные с панорамными окнами одноэтажные с окнами в пол одноэтажные с камином одноэтажные из газобетона с террасой одноэтажные из газобетона с мансардой одноэтажные из газобетона с 4 спальнями современные панорамные окна окна в пол четырехскатная крыша прямоугольные с большой гостиной с камином готовые проекты для постоянного проживания с подвалом с гардеробной из газобетона с четырехскатной крышей из газобетона современные из газобетона с панорамными окнами из газобетона прямоугольные из газобетона готовые из газобетона с камином из газобетона с четырьмя спальнями из газобетона большие из газобетона для постоянного проживания современные без гаража современные с панорамными окнами современные с окнами в пол современные с террасой современные большие современные с подвалом большие готовые большие с четырехскатной крышей большие прямоугольные большие с камином большие с окном в ванной комнате большие с панорамными окнами большие с окнами в пол большие без гаража большие с террасой большие с мастер-спальней большие с 4 спальнями из пеноблоков в современном стиле из пеноблоков с четырехскатной крышей из пеноблоков с окнами до пола из пеноблоков с панорамными окнами из пеноблоков прямоугольные из пеноблоков для постоянного проживания из пеноблоков готовые из пеноблоков с камином из пеноблоков от 400 до 500 м2 из пеноблоков большие из пеноблоков с 4 спальнями недорогие с панорамными окнами из клееного бруса без гаража Показать все категории Скрыть категории

Похожие проекты
Состав проекта
Входит в стоимость
Цена, руб. Сроки, дней
Комплект архитектурно-строительных чертежей (АС) Входит в стоимость Готов к отправке
Готово к продаже
Цена, руб. Сроки, дней
Паспорт рабочего проекта 8 000 ₽ 5 рабочих дней в корзину
Инженерные разделы: ВК + ОВ + ЭО 30 850 ₽ Готов к отправке в корзину
Дополнительная копия проекта формата А3 6 500 ₽ 5 рабочих дней в корзину
Электронная копия проекта (скан распечатанной версии) 4 000 ₽ 3 рабочих дня в корзину
Разрабатывается отдельно
Цена, руб. Сроки, дней
Адаптация фундамента (изменение типа фундамента) по запросу 14 рабочих дней
Дизайн интерьера (стоимость от 2200руб. за квад.метр площади) по запросу 30 рабочих дней
Внесение изменений в проект по запросу 20 рабочих дней
Разработка Генплана участка, в масштабе 1:250 7 500 ₽ 15 рабочих дней в корзину
Фэншуй дома 20 000 ₽ 14 рабочих дней в корзину
Фэншуй участка 15 000 ₽ 14 рабочих дней в корзину
Фэншуй полная консультация дом+участок с выездом на объект 100 000 ₽ 30 рабочих дней в корзину
Опции проекта вы можете заказать в корзине при оформлении заказа
Предложения строителей Республика Башкортостан
Отзывы покупателей
Рейтинг покупателей
0 / 5 5 5 1
На основе 1 оценок покупателей
0%
0%
0%
0%
0%
Отзывы о проекте D5279
Отзыв о проекте D5279
Чтобы оставить отзыв, пожалуйста авторизуйтесь.
Подбор строительной компании
Не знаете кому доверить строительство дома? Мы можем помочь! Подберем для вас из сотен наших партнеров несколько компаний с лучшем соотношением цена/качество под конкретно ваш запрос.
Подобрать