Главная Проекты домов Проект одноэтажного дома с тремя спальнями, гардеробной, сауной и террасой

D5166 Проект одноэтажного дома с тремя спальнями, гардеробной, сауной и террасой

Сравнить проект В избранное
Технические характеристики
Общие
Материал стен
Газобетон
Общая площадь
146 м²
Площадь застройки
188 м²
Приведенная площадь
124.61 м²
Количество жилых комнат/спален
3
Этажи
1 этаж
Гараж
Нет гаража
Подвал / цокольный этаж
Без подвала
Длина дома
13.8 м
Ширина дома
10.1 м
Высота в коньке
5.754 м
Кровля
Оцинкованный стальной лист профилированный
Облицовка внешних стен
Деревянная вагонка
,
Мокрая штукатурка
Межэтажные перекрытия
Монолитные
Внутренние не несущие перегородки
Газобетонные
Фундамент
Утепленная шведская плита (УШП)
Терраса
Терраса крытая
Дополнительные
Окна
Окна до пола
,
Панорамные окна
Сауна/баня внутри
Есть
Площадь гостиной
23 м²
Площадь кухни
13.8 м²
Количество санузлов
2
Окно в ванной комнате
Есть
Котельная
Есть
Кладовая
1
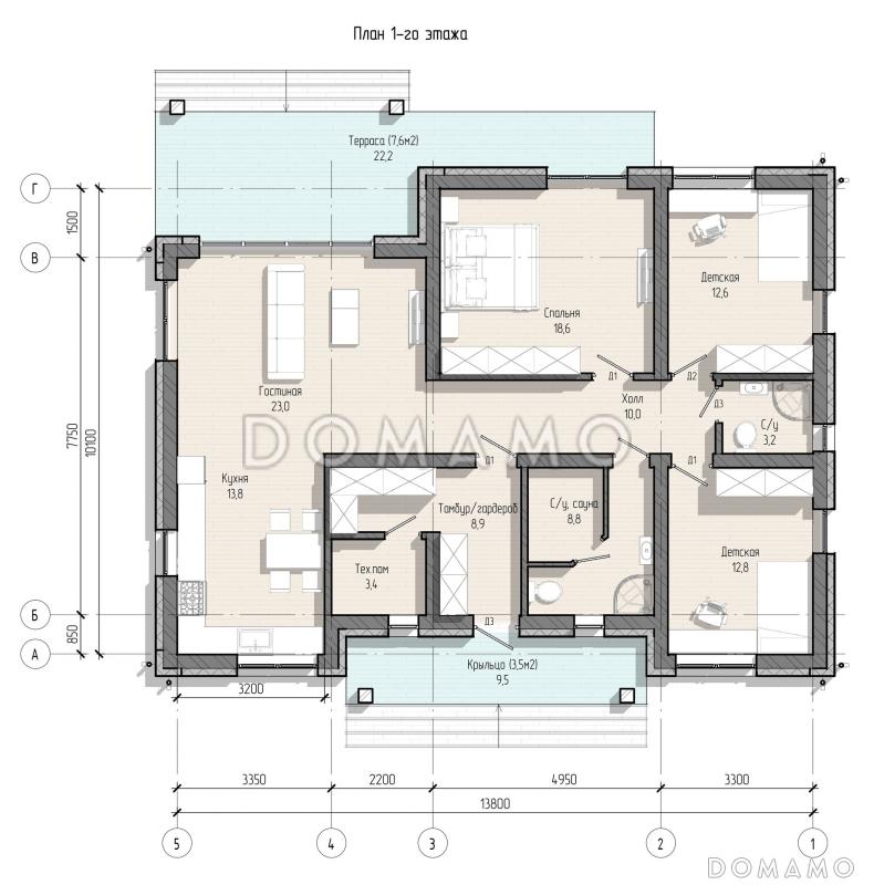
Планы помещений
Фасады
Описание проекта
Компания Domamo предлагает проект одноэтажного дома с тремя спальнями, гардеробной, сауной и террасой D5166. Общая площадь - 146 м2, размер - 13.8х10.1 м. Фундамент - утепленная шведская плита (ушп), кровля - оцинкованный стальной лист профилированный, внешняя отделка - деревянная вагонка мокрая штукатурка. Для заказа проекта или внесения изменений свяжитесь с нами с помощью форм обратной связи на сайте или по телефону +7 (831) 231-05-02.
Категории проекта: для постоянного проживания пенобетон от 100 до 200 кв.м в европейском стиле с террасой из газобетона в немецком стиле из газобетона одноэтажные из пеноблоков готовые одноэтажные одноэтажные до 150 кв. м. одноэтажные с котельной с котельной одноэтажные из газобетона из газосиликатных блоков с баней до 150 кв.м до 200 кв.м загородные из керамзитобетонных блоков с сауной прямоугольные с панорамным остеклением из газобетона с баней из газобетона с террасой из блоков одноэтажные из блоков из пеноблоков с баней из пеноблоков с террасой загородные из газобетона Проекты одноэтажных домов с террасой Типовые проекты загородных одноэтажных домов Проекты одноэтажных домов с баней без гаража одноэтажные без гаража одноэтажные с тремя спальнями Проекты домов с тремя спальнями одноэтажных из керамзитобетонных блоков с панорамными окнами и террасой одноэтажные до 200 кв м до 140 кв м недорогие из пеноблоков загородные одноэтажные прямоугольные одноэтажные с панорамными окнами одноэтажные с окнами в пол одноэтажные европейские одноэтажные бюджетные одноэтажные с 2 санузлами одноэтажные до 180 м2 одноэтажные из газобетона с террасой одноэтажные из газобетона до 150 кв. м одноэтажные из газобетона с мансардой одноэтажные из газобетона с 3 спальнями европейские панорамные окна окна в пол прямоугольные готовые проекты для постоянного проживания с сауной с котельной из газобетона до 150 кв.м из газобетона до 200 кв.м из газобетона от 100 до 200 кв.м из газобетона в европейском стиле из газобетона с панорамными окнами из газобетона с котельной из газобетона прямоугольные из газобетона готовые из газобетона с тремя спальнями из газобетона недорогие из газобетона для постоянного проживания европейские для постоянного проживания европейские недорогие европейские готовые европейские без подвала европейские с террасой европейские с сауной европейские с 2 санузлами европейские с котельной европейские с кладовой европейские прямоугольные европейские с панорамными окнами европейские с окнами в пол европейские с вальмовой крышей европейские до 150 м2 европейские 100-200 м2 до 150 кв.м для постоянного проживания до 150 кв.м без гаража до 150 кв.м с вальмовой крышей до 150 кв.м с окнами до пола до 150 кв.м с панорамными окнами до 150 кв.м готовые до 150 кв.м прямоугольные до 150 кв.м с котельной до 150 кв.м с баней до 150 кв.м с террасой до 150 кв.м без подвала до 150 кв.м с 3 спальнями из пеноблоков в европейском стиле из пеноблоков с вальмовой крышей из пеноблоков с окнами до пола из пеноблоков с панорамными окнами из пеноблоков прямоугольные из пеноблоков для постоянного проживания из пеноблоков недорогие из пеноблоков готовые из пеноблоков до 150 м кв. из пеноблоков от 100 до 200 м2 из пеноблоков с 3 спальнями недорогие без гаража недорогие с террасой недорогие для постоянного проживания недорогие с вальмовой крышей недорогие с окнами до пола недорогие с панорамными окнами недорогие с баней недорогие с котельной недорогие прямоугольные недорогие до 150 м2 недорогие от 100 до 200 м2 из клееного бруса без гаража Показать все категории Скрыть категории

Похожие проекты
Состав проекта
Входит в стоимость
Цена, руб. Сроки, дней
Комплект архитектурно-строительных чертежей (АС) Входит в стоимость 3 рабочих дня
Разрабатывается отдельно
Цена, руб. Сроки, дней
Адаптация фундамента (изменение типа фундамента) по запросу 14 рабочих дней
Дизайн интерьера (стоимость от 2200руб. за квад.метр площади) по запросу 30 рабочих дней
Внесение изменений в проект по запросу 20 рабочих дней
Фэншуй дома 20 000 ₽ 14 рабочих дней в корзину
Фэншуй участка 15 000 ₽ 14 рабочих дней в корзину
Фэншуй полная консультация дом+участок с выездом на объект 100 000 ₽ 30 рабочих дней в корзину
Опции проекта вы можете заказать в корзине при оформлении заказа
Предложения строителей Выбрать регион
Минимальная
4 236 740 ₽
Стандарт
5 233 620 ₽
Под чистовую отделку
6 853 550 ₽
Показать подробные комплектации
Минимальная
12 710 220 ₽
Стандарт
14 953 200 ₽
Под чистовую отделку
19 439 160 ₽
Показать подробные комплектации
Минимальная
6 373 801 ₽
Стандарт
9 457 899 ₽
Под чистовую отделку
15 009 274 ₽
Показать подробные комплектации
Минимальная
4 361 350 ₽
Стандарт
5 233 620 ₽
Под чистовую отделку
5 856 670 ₽
Показать подробные комплектации
Минимальная
4 021 912 ₽
Стандарт
5 902 775 ₽
Под чистовую отделку
6 315 234 ₽
Показать подробные комплектации
Минимальная
4 361 350 ₽
Стандарт
4 984 400 ₽
Под чистовую отделку
6 542 025 ₽
Показать подробные комплектации
Подбор строительной компании
Не знаете кому доверить строительство дома? Мы можем помочь! Подберем для вас из сотен наших партнеров несколько компаний с лучшем соотношением цена/качество под конкретно ваш запрос.
Подобрать
Посмотреть еще 32 компании Свернуть
Отзывы покупателей
Рейтинг покупателей
0 / 5 5 5 1
На основе 1 оценок покупателей
0%
0%
0%
0%
0%
Отзывы о проекте D5166
Отзыв о проекте D5166
Чтобы оставить отзыв, пожалуйста авторизуйтесь.
Подбор строительной компании
Не знаете кому доверить строительство дома? Мы можем помочь! Подберем для вас из сотен наших партнеров несколько компаний с лучшем соотношением цена/качество под конкретно ваш запрос.
Подобрать