Главная Проекты домов Проект дома из панелей SIP в стиле фахверк с двусветной гостиной и навесом для машины

D5129 Проект дома из панелей SIP в стиле фахверк с двусветной гостиной и навесом для машины

Сравнить проект В избранное
Проект дома из панелей SIP в стиле фахверк с двусветной гостиной и навесом для машины / 1
Проект дома из панелей SIP в стиле фахверк с двусветной гостиной и навесом для машины / 2
Проект дома из панелей SIP в стиле фахверк с двусветной гостиной и навесом для машины / 1
Проект дома из панелей SIP в стиле фахверк с двусветной гостиной и навесом для машины / 2
D5129
198 м²
Подготовка проекта:
25 рабочих дней
Стоимость проекта
Купить проект
Задайте вопросы по проекту нашему архитектору
8 (800) 200-28-83
Время работы: пн-вс: с 9:00 до 20:00
Задать вопрос по проекту

Технические характеристики
Общие
Материал стен
SIP
Общая площадь
198 м²
Жилая площадь
100.8 м²
Приведенная площадь
197.27 м²
Количество жилых комнат/спален
4
Этажи
1 этаж + мансарда
Гараж
Нет гаража
Количество машин
1
Подвал / цокольный этаж
Без подвала
Длина дома
15.8 м
Ширина дома
10.8 м
Высота в коньке
8.4 м
Кровля
Металлочерепица
Облицовка внешних стен
Мокрая штукатурка
Толщина несущих наружных стен
375-400 мм
Межэтажные перекрытия
Сборные
Внутренние не несущие перегородки
Газобетонные
Фундамент
Монолитная ж/бетонная плита
Терраса
Терраса крытая
Дополнительные
Второй свет
Есть
Мансардные окна
Есть
Камин
Есть
Сауна/баня внутри
Нет
Площадь гостиной
33 м²
Площадь кухни
25.3 м²
Количество санузлов
2
Котельная
Есть
Хозяйская гардеробная
Есть
Кладовая
3
Балкон / лоджия
Балкон
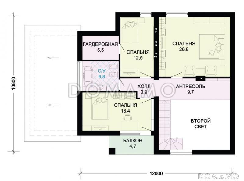
Планы помещений
Фасады
Описание проекта

Проект современного коттеджа, который станет идеальным вариантом для проживания в нем семьи из трех-четырех человек. Визуально постройка разделена на две части, такой эффект достигается при помощи использования различных материалов при облицовке верхнего и нижнего этажей. Нижний этаж здесь отделан декоративной штукатуркой пастельного оттенка, верхний украшен элементами фахверка. Именно он и формирует своеобразную стилистику всего здания. В качестве навеса для машины здесь используется часть крыши, что выглядит довольно эффектно. Два этажа, заложенные в проекте, использованы максимально рационально. На первом этаже дома расположен объединенная кухня-столовая и гостевая комната, просторная двусветная гостиная с камином и широкой деревянной лестницей, ведущей в мансарду, где находятся спальные комнаты: одна большая, и две детские, чуть меньше размером.

Ключевые особенности:

  • Навес для машины с одним парковочным местом.
  • Спальня на первом этаже, подходящая для старших членов семьи или гостевой.
  • Мастер–спальня.
  • Второй свет в гостиной.
Категории проекта: с мансардой для постоянного проживания фахверк из сип панелей современные по технологии Velox от 100 до 200 кв.м в европейском стиле с террасой готовые одноэтажные с мансардой одноэтажные с котельной с котельной со вторым светом из сип панелей с мансардой до 200 кв.м с двухскатной крышей загородные с камином с гардеробной прямоугольные с балконом Проекты одноэтажных домов из сип панелей Проекты одноэтажных домов с террасой Типовые проекты загородных одноэтажных домов без гаража одноэтажные без гаража с террасой и камином одноэтажные с 4 спальнями с мансардой и террасой полутораэтажные с 4 спальнями одноэтажные до 200 кв м с балконом и террасой одноэтажные с мансардными окнами с мансардой с котельной с мансардой с камином с мансардой с двухскатной крышей с мансардой современные с мансардой фахверк с мансардой в европейском стиле с мансардой со вторым светом с мансардой с мансардными окнами с мансардой с балконом с мансардой прямоугольные с мансардой готовые с мансардой для постоянного проживания с мансардой до 200 кв.м одноэтажные с мансардой из SIP-панелей одноэтажные с мансардой для постоянного проживания одноэтажные с мансардой со вторым светом одноэтажные с мансардой с большой кухней одноэтажные с мансардой с изолированной кухней одноэтажные с мансардой в европейском стиле одноэтажные с мансардой современные одноэтажные с мансардой в стиле фахверк одноэтажные с мансардой с балконом современные без гаража современные с двухскатной крышей современные с террасой современные от 100 до 200 кв. м современные со вторым светом европейские для постоянного проживания европейские дорогие европейские готовые европейские без подвала европейские с террасой европейские с изолированной кухней европейские с 2 санузлами европейские с котельной европейские с кладовой европейские с балконом европейские прямоугольные европейские с вторым светом европейские с мансардными окнами европейские с двухскатной крышей европейские с камином европейские 100-200 м2 из клееного бруса без гаража Показать все категории Скрыть категории

Похожие проекты
Состав проекта
Входит в стоимость
Цена, руб. Сроки, дней
Комплект архитектурно-строительных чертежей (АС) Входит в стоимость 25 рабочих дней
Готово к продаже
Цена, руб. Сроки, дней
Инженерные разделы: ВК + ОВ + ЭО 23 000 ₽ 3 рабочих дня в корзину
Электронная копия проекта (скан распечатанной версии) 4 000 ₽ 3 рабочих дня в корзину
Разрабатывается отдельно
Цена, руб. Сроки, дней
Адаптация фундамента (изменение типа фундамента) по запросу 14 рабочих дней
Дизайн интерьера (стоимость от 2200руб. за квад.метр площади) по запросу 30 рабочих дней
Внесение изменений в проект по запросу 20 рабочих дней
Фэншуй дома 20 000 ₽ 14 рабочих дней в корзину
Фэншуй участка 15 000 ₽ 14 рабочих дней в корзину
Фэншуй полная консультация дом+участок с выездом на объект 100 000 ₽ 30 рабочих дней в корзину
Опции проекта вы можете заказать в корзине при оформлении заказа
Предложения строителей Выбрать регион
Минимальная
5 720 830 ₽
Стандарт
6 312 640 ₽
Под чистовую отделку
10 258 040 ₽
Показать подробные комплектации
Отзывы покупателей
Рейтинг покупателей
0 / 5 5 5 1
На основе 1 оценок покупателей
0%
0%
0%
0%
0%
Отзывы о проекте D5129
Отзыв о проекте D5129
Чтобы оставить отзыв, пожалуйста авторизуйтесь.
Подбор строительной компании
Не знаете кому доверить строительство дома? Мы можем помочь! Подберем для вас из сотен наших партнеров несколько компаний с лучшем соотношением цена/качество под конкретно ваш запрос.
Подобрать