Главная Проекты домов Проект углового коттеджа из СИП панелей с большой террасой

D4968 Проект углового коттеджа из СИП панелей с большой террасой

Сравнить проект В избранное
Проект углового коттеджа из СИП панелей с большой террасой / 1
Проект углового коттеджа из СИП панелей с большой террасой / 2
Проект углового коттеджа из СИП панелей с большой террасой / 1
Проект углового коттеджа из СИП панелей с большой террасой / 2
D4968
137 м²
Подготовка проекта:
25 рабочих дней
Стоимость проекта
Купить проект
Задайте вопросы по проекту нашему архитектору
8 (800) 200-28-83
Время работы: пн-вс: с 9:00 до 20:00
Задать вопрос по проекту

Технические характеристики
Общие
Материал стен
SIP
Общая площадь
137 м²
Жилая площадь
95.6 м²
Площадь застройки
130.9 м²
Приведенная площадь
145.79 м²
Количество жилых комнат/спален
4
Этажи
1 этаж + мансарда
Гараж
Нет гаража
Подвал / цокольный этаж
Без подвала
Длина дома
13.64 м
Ширина дома
11.14 м
Высота в коньке
9.5 м
Кровля
Металлочерепица
Облицовка внешних стен
Облицовочный кирпич
Толщина несущих наружных стен
375 мм
Межэтажные перекрытия
Монолитные
Внутренние не несущие перегородки
Газобетонные
Фундамент
Монолитная ж/бетонная плита
Терраса
Терраса крытая
Дополнительные
Окна
Окна до пола
Сауна/баня внутри
Нет
Площадь гостиной
30.4 м²
Площадь кухни
8.4 м²
Количество санузлов
2
Окно в ванной комнате
Есть
Котельная
Есть
Кладовая
1
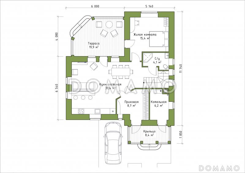
Планы помещений
Фасады
Описание проекта

Просторный дом с двумя полными этажами, рассчитанный на постоянное проживание большой семьи. С архитектурной точки зрения интересна, прежде всего, форма дома, нацеленная на его уединенное расположение в углу участка, вдали от соседей и дороги. Все жилые помещения ориентированы внутрь участка, туда же «смотрит» и большая угловая терраса с выходами из гостиной и кабинета. В плане первого этажа отметим наличие большой прихожей с местом для просторного гардероба, а также кухню-столовую с трехсторонним светом. Второй этаж реализован с тремя спальнями.

Категории проекта: с мансардой для постоянного проживания из сип панелей в английском стиле в классическом стиле по технологии Velox от 100 до 200 кв.м с террасой готовые одноэтажные с мансардой одноэтажные до 150 кв. м. одноэтажные с котельной с котельной из сип панелей с мансардой до 150 кв.м до 200 кв.м загородные угловые Проекты одноэтажных домов из сип панелей Проекты одноэтажных домов с террасой Типовые проекты загородных одноэтажных домов без гаража одноэтажные без гаража облицованные кирпичом одноэтажные с 4 спальнями с мансардой до 150 кв м с мансардой и террасой полутораэтажные с 4 спальнями г-образные одноэтажные до 200 кв м до 140 кв м с мансардой с котельной с мансардой в классическом стиле с мансардой в английском стиле с мансардой с окнами до пола с мансардой г-образные с мансардой готовые с мансардой для постоянного проживания с мансардой до 200 кв.м с мансардой от 100 до 150 кв.м одноэтажные с мансардой из SIP-панелей одноэтажные с мансардой для постоянного проживания одноэтажные с мансардой классические классические из сип-панелей классические для постоянного проживания классические без гаража классические с 4 спальнями классические с окнами в пол классические с террасой классические готовые классические с котельной классические без подвала классические с 2 санузлами классические угловые до 150 кв.м из SIP-панелей до 150 кв.м для постоянного проживания до 150 кв.м без гаража до 150 кв.м с окнами до пола до 150 кв.м классические до 150 кв.м готовые до 150 кв.м угловые до 150 кв.м с котельной до 150 кв.м без бани до 150 кв.м с террасой до 150 кв.м без подвала до 150 кв.м с 4 спальнями до 150 кв.м с большой гостиной из клееного бруса без гаража Показать все категории Скрыть категории

Похожие проекты
Состав проекта
Входит в стоимость
Цена, руб. Сроки, дней
Комплект архитектурно-строительных чертежей (АС) Входит в стоимость 25 рабочих дней
Готово к продаже
Цена, руб. Сроки, дней
Электронная копия проекта (скан распечатанной версии) 4 000 ₽ 3 рабочих дня в корзину
Разрабатывается отдельно
Цена, руб. Сроки, дней
Адаптация фундамента (изменение типа фундамента) по запросу 14 рабочих дней
Дизайн интерьера (стоимость от 2200руб. за квад.метр площади) по запросу 30 рабочих дней
Внесение изменений в проект по запросу 20 рабочих дней
Фэншуй дома 20 000 ₽ 14 рабочих дней в корзину
Фэншуй участка 15 000 ₽ 14 рабочих дней в корзину
Фэншуй полная консультация дом+участок с выездом на объект 100 000 ₽ 30 рабочих дней в корзину
Опции проекта вы можете заказать в корзине при оформлении заказа
Отзывы покупателей
Рейтинг покупателей
0 / 5 5 5 1
На основе 1 оценок покупателей
0%
0%
0%
0%
0%
Отзывы о проекте D4968
Отзыв о проекте D4968
Чтобы оставить отзыв, пожалуйста авторизуйтесь.
Подбор строительной компании
Не знаете кому доверить строительство дома? Мы можем помочь! Подберем для вас из сотен наших партнеров несколько компаний с лучшем соотношением цена/качество под конкретно ваш запрос.
Подобрать