Главная Проекты домов Проект двухэтажного дома из газобетона с четырьмя спальнями и удлинённым двухместным гаражом

D4814 Проект двухэтажного дома из газобетона с четырьмя спальнями и удлинённым двухместным гаражом

Сравнить проект В избранное
Технические характеристики
Общие
Материал стен
Газобетон
Общая площадь
210 м²
Площадь застройки
166.4 м²
Приведенная площадь
220.11 м²
Количество жилых комнат/спален
4
Этажи
2 этажа
Гараж
Встроенный гараж
Количество машин
2
Подвал / цокольный этаж
Без подвала
Длина дома
14.11 м
Ширина дома
11.61 м
Высота в коньке
8.54 м
Кровля
Металлочерепица
Облицовка внешних стен
Деревянная вагонка
,
Мокрая штукатурка
Толщина несущих наружных стен
380 мм
Межэтажные перекрытия
Монолитные
Внутренние не несущие перегородки
Газобетонные
Фундамент
Ленточный монолитный
Терраса
Терраса открытая
Дополнительные
Окна
Окна до пола
Камин
Есть
Площадь гостиной
16.9 м²
Площадь кухни
9.5 м²
Количество санузлов
3
Окно в ванной комнате
Есть
Котельная
Есть
Хозяйский санузел
Есть
Кладовая
2
Длина участка
24.11 м
Ширина участка
17.61 м
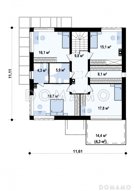
Планы помещений
Фасады
Описание проекта
Компания Domamo предлагает проект двухэтажного дома из газобетона с четырьмя спальнями и удлинённым двухместным гаражом D4814. Общая площадь - 210 м2, размер - 14.11х11.61 м. Фундамент - ленточный монолитный, кровля - металлочерепица, внешняя отделка - деревянная вагонка мокрая штукатурка. Для заказа проекта или внесения изменений свяжитесь с нами с помощью форм обратной связи на сайте или по телефону +7 (831) 231-05-02.
Категории проекта: с гаражом для постоянного проживания пенобетон в классическом стиле от 200 до 300 кв.м с террасой из газобетона готовые из газобетона с гаражом двухэтажные двухэтажные с гаражом с котельной двухэтажные из газобетона из газосиликатных блоков двухэтажные из пеноблоков из пеноблоков с гаражом загородные с четырехскатной крышей из керамзитобетонных блоков с камином угловые со встроенным гаражом из газобетона с террасой из блоков двухэтажные из блоков из блоков с гаражом из пеноблоков с террасой загородные из газобетона Проекты двухэтажных домов с террасой Проекты двухэтажных домов с верандой с террасой и камином с гаражом под одной крышей с гаражом на 2 машины с гаражом и террасой двухэтажные с террасой и гаражом с 4 спальнями г-образные из пеноблоков загородные от 200 до 250 м двухэтажные с камином двухэтажные с 4 спальнями двухэтажные в классическом стиле из газобетона от 200 до 300 кв.м из газобетона с четырехскатной крышей из газобетона в классическом стиле из газобетона с котельной из газобетона угловые из газобетона готовые из газобетона с камином из газобетона с четырьмя спальнями из газобетона для постоянного проживания двухэтажные из газобетона с гаражом двухэтажные из газобетона с террасой двухэтажные из газобетона с камином двухэтажные из газобетона с котельной двухэтажные из газобетона классические двухэтажные из газобетона с четырехскатной крышей двухэтажные из газобетона без подвала двухэтажные из газобетона с 4 спальнями классические для постоянного проживания классические с гаражом классические с гаражом на 2 машины классические с 4 спальнями классические с окнами в пол классические с террасой классические готовые классические с котельной классические без подвала классические угловые классические с камином классические с четырехскатной крышей из пеноблоков в классическом стиле из пеноблоков с четырехскатной крышей из пеноблоков с окнами до пола из пеноблоков угловые из пеноблоков для постоянного проживания из пеноблоков готовые из пеноблоков с камином из пеноблоков от 200 до 300 м2 из пеноблоков с 4 спальнями из клееного бруса без гаража Показать все категории Скрыть категории

Похожие проекты
Состав проекта
Входит в стоимость
Цена, руб. Сроки, дней
Комплект архитектурно-строительных чертежей (АС) Входит в стоимость Готов к отправке
Готово к продаже
Цена, руб. Сроки, дней
Паспорт рабочего проекта 8 000 ₽ 5 рабочих дней в корзину
Инженерные разделы: ВК + ОВ + ЭО 38 700 ₽ Готов к отправке в корзину
Дополнительная копия проекта формата А3 6 500 ₽ 5 рабочих дней в корзину
Электронная копия проекта (скан распечатанной версии) 4 000 ₽ 3 рабочих дня в корзину
Разрабатывается отдельно
Цена, руб. Сроки, дней
Адаптация фундамента (изменение типа фундамента) по запросу 14 рабочих дней
Дизайн интерьера (стоимость от 2200руб. за квад.метр площади) по запросу 30 рабочих дней
Внесение изменений в проект по запросу 20 рабочих дней
Разработка Генплана участка, в масштабе 1:250 7 500 ₽ 15 рабочих дней в корзину
Фэншуй дома 20 000 ₽ 14 рабочих дней в корзину
Фэншуй участка 15 000 ₽ 14 рабочих дней в корзину
Фэншуй полная консультация дом+участок с выездом на объект 100 000 ₽ 30 рабочих дней в корзину
Опции проекта вы можете заказать в корзине при оформлении заказа
Варианты проекта Сравнить все варианты
Избранные проекты
Избранные строители
Предложения строителей Выбрать регион
Минимальная
7 483 740 ₽
Стандарт
9 244 620 ₽
Под чистовую отделку
12 106 050 ₽
Показать подробные комплектации
Минимальная
18 522 256 ₽
Стандарт
21 790 890 ₽
Под чистовую отделку
28 328 157 ₽
Показать подробные комплектации
Минимальная
9 416 305 ₽
Стандарт
13 972 582 ₽
Под чистовую отделку
22 173 881 ₽
Показать подробные комплектации
Минимальная
7 703 850 ₽
Стандарт
9 244 620 ₽
Под чистовую отделку
10 345 170 ₽
Показать подробные комплектации
Минимальная
7 104 270 ₽
Стандарт
10 426 610 ₽
Под чистовую отделку
11 155 174 ₽
Показать подробные комплектации
Минимальная
6 163 080 ₽
Стандарт
7 043 520 ₽
Под чистовую отделку
9 244 620 ₽
Показать подробные комплектации
Подбор строительной компании
Не знаете кому доверить строительство дома? Мы можем помочь! Подберем для вас из сотен наших партнеров несколько компаний с лучшем соотношением цена/качество под конкретно ваш запрос.
Подобрать
Посмотреть еще 32 компании Свернуть
Отзывы покупателей
Рейтинг покупателей
0 / 5 5 5 1
На основе 1 оценок покупателей
0%
0%
0%
0%
0%
Отзывы о проекте D4814
Отзыв о проекте D4814
Чтобы оставить отзыв, пожалуйста авторизуйтесь.
Подбор строительной компании
Не знаете кому доверить строительство дома? Мы можем помочь! Подберем для вас из сотен наших партнеров несколько компаний с лучшем соотношением цена/качество под конкретно ваш запрос.
Подобрать