Главная Проекты домов Проект современного двухэтажного дома из газобетона с плоской крышей, с четырьмя комнатами, гаражом и террасами на двух уровнях

D4570 Проект современного двухэтажного дома из газобетона с плоской крышей, с четырьмя комнатами, гаражом и террасами на двух уровнях

Сравнить проект В избранное
Технические характеристики
Общие
Материал стен
Газобетон
Общая площадь
226 м²
Площадь застройки
198.6 м²
Приведенная площадь
229.2 м²
Количество жилых комнат/спален
4
Этажи
2 этажа
Гараж
Встроенный гараж
Количество машин
2
Подвал / цокольный этаж
Без подвала
Длина дома
15.15 м
Ширина дома
12.75 м
Высота в коньке
7.23 м
Кровля
Рулонная кровля
Облицовка внешних стен
Мокрая штукатурка
,
Облицовочный кирпич
,
Фасадные панели
Толщина несущих наружных стен
380 мм
Межэтажные перекрытия
Монолитные
Внутренние не несущие перегородки
Газобетонные
Фундамент
Ленточный заглубленный из ФБС
Терраса
Терраса открытая
,
Терраса крытая
Дополнительные
Окна
Окна до пола
,
Панорамные окна
Камин
Есть
Площадь гостиной
32.3 м²
Площадь кухни
8.5 м²
Количество санузлов
3
Окно в ванной комнате
Есть
Котельная
Есть
Кабинет
Есть
Хозяйский санузел
Есть
Хозяйская гардеробная
Есть
Кладовая
5
Длина участка
25.15 м
Ширина участка
21.35 м
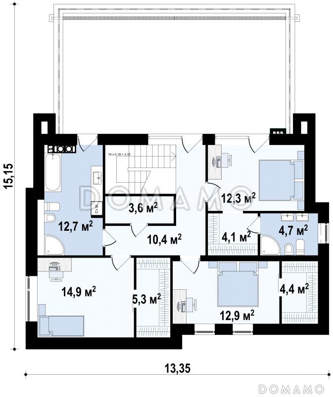
Планы помещений
Описание проекта
Компания Domamo предлагает проект современного двухэтажного дома из газобетона с плоской крышей, с четырьмя комнатами, гаражом и террасами на двух уровнях D4570. Общая площадь - 226 м2, размер - 15.15х12.75 м. Фундамент - ленточный заглубленный из фбс, кровля - рулонная кровля, внешняя отделка - фасадные панели облицовочный кирпич мокрая штукатурка. Для заказа проекта или внесения изменений свяжитесь с нами с помощью форм обратной связи на сайте или по телефону +7 (831) 231-05-02.
Категории проекта: с гаражом для постоянного проживания пенобетон в стиле хай-тек от 200 до 300 кв.м с террасой из газобетона в стиле хай-тек из газобетона готовые из газобетона с гаражом двухэтажные двухэтажные с гаражом с котельной двухэтажные из газобетона из газосиликатных блоков двухэтажные из пеноблоков из пеноблоков с гаражом с плоской крышей загородные из керамзитобетонных блоков с камином с гардеробной угловые со встроенным гаражом с панорамным остеклением из газобетона с террасой из блоков двухэтажные из блоков из блоков с гаражом в стиле хай-тек с плоской крышей из пеноблоков с террасой загородные из газобетона Проекты двухэтажных домов с террасой Проекты двухэтажных домов с верандой с террасой и камином облицованные кирпичом с кабинетом с гаражом под одной крышей с гаражом на 2 машины с гаражом и террасой двухэтажные с террасой и гаражом с 4 спальнями с панорамными окнами и террасой г-образные из пеноблоков загородные от 200 до 250 м двухэтажные с камином двухэтажные с панорамными окнами двухэтажные с 4 спальнями из газобетона от 200 до 300 кв.м из газобетона с плоской крышей из газобетона с панорамными окнами из газобетона с котельной из газобетона угловые из газобетона готовые из газобетона с камином из газобетона с четырьмя спальнями из газобетона с кабинетом из газобетона для постоянного проживания двухэтажные из газобетона с гаражом двухэтажные из газобетона с террасой двухэтажные из газобетона с камином двухэтажные из газобетона с кабинетом двухэтажные из газобетона с котельной двухэтажные из газобетона в стиле хай-тек двухэтажные из газобетона с плоской крышей двухэтажные из газобетона без подвала двухэтажные из газобетона с 4 спальнями из пеноблоков в стиле хай-тек из пеноблоков с плоской крышей из пеноблоков с окнами до пола из пеноблоков с панорамными окнами из пеноблоков угловые из пеноблоков для постоянного проживания из пеноблоков готовые из пеноблоков с камином из пеноблоков от 200 до 300 м2 из пеноблоков с 4 спальнями двухэтажные в стиле хай-тек хай-тек для постоянного проживания хай-тек с гаражом хай-тек с окнами в пол хай-тек с панорамными окнами хай-тек с террасой хай-тек готовые хай-тек элитные хай-тек с камином хай-тек на ленточном фундаменте хай-тек с котельной хай-тек с кабинетом хай-тек с мастер-спальней хай-тек с 4 спальнями хай-тек с гаражом на 2 машины хай-тек без подвала хай-тек от 200 до 300 м2 недорогие с панорамными окнами из клееного бруса без гаража с плоской крышей двухэтажные с плоской крышей и большой террасой с плоской крышей и большой гостиной с плоской крышей готовые с плоской крышей для постоянного проживания с плоской крышей и окном в ванной комнате с плоской крышей и камином с плоской крышей угловые с плоской крышей и окнами в пол в гостиной с плоской крышей и окнами в пол на кухне с плоской крышей и окнами до пола с плоской крышей и панорамными окнами с плоской крышей и монолитными перекрытиями с плоской крышей и облицовкой мокрой штукатуркой с плоской крышей и облицовкой фасадными панелями с плоской крышей и хозяйской гардеробной с плоской крышей и хозяйским санузлом с плоской крышей и кабинетом с плоской крышей и котельной Показать все категории Скрыть категории

Похожие проекты
Состав проекта
Входит в стоимость
Цена, руб. Сроки, дней
Комплект архитектурно-строительных чертежей (АС) Входит в стоимость Готов к отправке
Готово к продаже
Цена, руб. Сроки, дней
Паспорт рабочего проекта 8 000 ₽ 5 рабочих дней в корзину
Инженерные разделы: ВК + ОВ + ЭО 48 400 ₽ Готов к отправке в корзину
Дополнительная копия проекта формата А3 6 500 ₽ 5 рабочих дней в корзину
Электронная копия проекта (скан распечатанной версии) 4 000 ₽ 3 рабочих дня в корзину
Разрабатывается отдельно
Цена, руб. Сроки, дней
Адаптация фундамента (изменение типа фундамента) по запросу 14 рабочих дней
Дизайн интерьера (стоимость от 2200руб. за квад.метр площади) по запросу 30 рабочих дней
Внесение изменений в проект по запросу 20 рабочих дней
Разработка Генплана участка, в масштабе 1:250 7 500 ₽ 15 рабочих дней в корзину
Фэншуй дома 20 000 ₽ 14 рабочих дней в корзину
Фэншуй участка 15 000 ₽ 14 рабочих дней в корзину
Фэншуй полная консультация дом+участок с выездом на объект 100 000 ₽ 30 рабочих дней в корзину
Опции проекта вы можете заказать в корзине при оформлении заказа
Предложения строителей Выбрать регион
Минимальная
7 792 800 ₽
Стандарт
9 626 400 ₽
Под чистовую отделку
12 606 000 ₽
Показать подробные комплектации
Минимальная
19 287 180 ₽
Стандарт
22 690 800 ₽
Под чистовую отделку
29 498 040 ₽
Показать подробные комплектации
Минимальная
9 805 176 ₽
Стандарт
14 549 615 ₽
Под чистовую отделку
23 089 608 ₽
Показать подробные комплектации
Минимальная
8 022 000 ₽
Стандарт
9 626 400 ₽
Под чистовую отделку
10 772 400 ₽
Показать подробные комплектации
Минимальная
7 397 659 ₽
Стандарт
10 857 204 ₽
Под чистовую отделку
11 615 856 ₽
Показать подробные комплектации
Минимальная
6 417 600 ₽
Стандарт
7 334 400 ₽
Под чистовую отделку
9 626 400 ₽
Показать подробные комплектации
Подбор строительной компании
Не знаете кому доверить строительство дома? Мы можем помочь! Подберем для вас из сотен наших партнеров несколько компаний с лучшем соотношением цена/качество под конкретно ваш запрос.
Подобрать
Посмотреть еще 32 компании Свернуть
Отзывы покупателей
Рейтинг покупателей
0 / 5 5 5 1
На основе 1 оценок покупателей
0%
0%
0%
0%
0%
Отзывы о проекте D4570
Отзыв о проекте D4570
Чтобы оставить отзыв, пожалуйста авторизуйтесь.
Подбор строительной компании
Не знаете кому доверить строительство дома? Мы можем помочь! Подберем для вас из сотен наших партнеров несколько компаний с лучшем соотношением цена/качество под конкретно ваш запрос.
Подобрать