Главная Проекты домов Проект загородного дома с широким крыльцом

D451 Проект загородного дома с широким крыльцом

Сравнить проект В избранное
Технические характеристики
Общие
Материал стен
Кирпич
Общая площадь
597 м²
Жилая площадь
161.8 м²
Приведенная площадь
480.15 м²
Количество жилых комнат/спален
5
Этажи
2 этажа
Гараж
Встроенный гараж
Количество машин
2
Подвал / цокольный этаж
Без подвала
Длина дома
24.2 м
Ширина дома
20.2 м
Кровля
Гибкая черепица
Облицовка внешних стен
Мокрая штукатурка
,
Облицовочный кирпич
Межэтажные перекрытия
Сборные
Внутренние не несущие перегородки
Кирпичные
Фундамент
Свайный
Терраса
Терраса крытая
Дополнительные
Окна
Окна до пола
Мансардные окна
Есть
Камин
Есть
Сауна/баня внутри
Есть
Площадь гостиной
44.9 м²
Площадь кухни
16.6 м²
Количество санузлов
6
Окно в ванной комнате
Есть
Котельная
Есть
Кабинет
Есть
Постирочная
Есть
Спортзал / детский / игровой зал
Есть
Бильярдная
Есть
Хозяйский санузел
Есть
Хозяйская гардеробная
Есть
Кладовая
4
Балкон / лоджия
Балкон
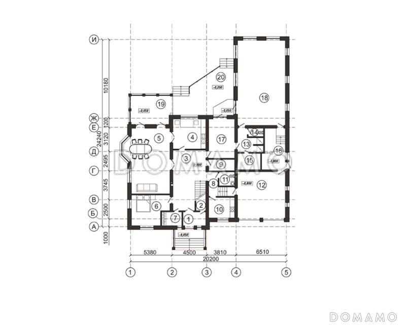
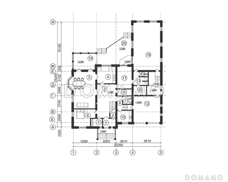
Планы помещений
Описание проекта

Двухэтажный дом объединяет в себе стиль европейского жилья и большую внутреннюю площадь, где размещается ряд функциональных помещений для труда, отдыха, здоровья, организации домашних праздников и торжественных приемов. В планировку дома вошли:

  • 3 спальни наверху и 2 внизу, способные стать жильем пожилых или гостевыми,
  • Отдельный кабинет, бильярдная, большая сауна и тренажерный зал,
  • Широкая терраса и балкон для летнего отдыха,
  • Гараж, позволяющий иметь авто всегда под рукой.
Категории проекта: с гаражом для постоянного проживания кирпич от 500 кв.м дома из кирпича с гаражом с эркером кирпичные дома с эркером с террасой из кирпича с террасой готовые загородные из кирпича двухэтажные из кирпича двухэтажные кирпичные с гаражом двухэтажные двухэтажные с гаражом кирпичные с котельной с котельной с баней загородные с баней и гаражом с бильярдной с камином с сауной с гардеробной угловые с балконом со встроенным гаражом в стиле эклектика кирпичные с баней двухэтажные с эркером Проекты двухэтажных домов с террасой Проекты двухэтажных домов с верандой с террасой и камином облицованные кирпичом с кабинетом с гаражом под одной крышей с гаражом на 2 машины особняки с гаражом и террасой двухэтажные с террасой и гаражом двухэтажные с сауной г-образные с балконом и террасой с эркером и гаражом с 5 спальнями большие двухэтажные с камином двухэтажные с балконом двухэтажные с балконом и террасой большие готовые большие в стиле эклектика большие с балконом большие с камином большие с окном в ванной комнате большие с окнами в пол большие с гаражом большие с гаражом на 2 машины большие с большой кухней большие с изолированной кухней большие с террасой большие с баней большие с прачечной большие с котельной большие с кабинетом большие с мастер-спальней большие с спортзалом из клееного бруса без гаража Показать все категории Скрыть категории

Похожие проекты
Состав проекта
Входит в стоимость
Цена, руб. Сроки, дней
Комплект архитектурно-строительных чертежей (АС) Входит в стоимость Готов к отправке
Паспорт рабочего проекта Входит в стоимость Готов к отправке
Разрабатывается отдельно
Цена, руб. Сроки, дней
Адаптация фундамента (изменение типа фундамента) по запросу 14 рабочих дней
Дизайн интерьера (стоимость от 2200руб. за квад.метр площади) по запросу 30 рабочих дней
Внесение изменений в проект по запросу 20 рабочих дней
Фэншуй дома 20 000 ₽ 14 рабочих дней в корзину
Фэншуй участка 15 000 ₽ 14 рабочих дней в корзину
Фэншуй полная консультация дом+участок с выездом на объект 100 000 ₽ 30 рабочих дней в корзину
Опции проекта вы можете заказать в корзине при оформлении заказа
Предложения строителей Выбрать регион
Минимальная
16 805 250 ₽
Стандарт
20 646 450 ₽
Под чистовую отделку
26 888 400 ₽
Показать подробные комплектации
Минимальная
38 363 985 ₽
Стандарт
45 134 100 ₽
Под чистовую отделку
58 674 330 ₽
Показать подробные комплектации
Минимальная
17 669 520 ₽
Стандарт
25 952 107 ₽
Под чистовую отделку
40 860 765 ₽
Показать подробные комплектации
Минимальная
19 239 610 ₽
Стандарт
22 091 701 ₽
Под чистовую отделку
28 286 596 ₽
Показать подробные комплектации
Минимальная
7 802 788 ₽
Стандарт
9 662 524 ₽
Под чистовую отделку
11 630 034 ₽
Показать подробные комплектации
Подбор строительной компании
Не знаете кому доверить строительство дома? Мы можем помочь! Подберем для вас из сотен наших партнеров несколько компаний с лучшем соотношением цена/качество под конкретно ваш запрос.
Подобрать
Посмотреть еще 20 компаний Свернуть
Отзывы покупателей
Рейтинг покупателей
0 / 5 5 5 1
На основе 1 оценок покупателей
0%
0%
0%
0%
0%
Отзывы о проекте D451
Отзыв о проекте D451
Чтобы оставить отзыв, пожалуйста авторизуйтесь.
Подбор строительной компании
Не знаете кому доверить строительство дома? Мы можем помочь! Подберем для вас из сотен наших партнеров несколько компаний с лучшем соотношением цена/качество под конкретно ваш запрос.
Подобрать