Главная Проекты домов Проект двухэтажного дома с с/у с душем и парной комнатой на первом этаже

D445 Проект двухэтажного дома с с/у с душем и парной комнатой на первом этаже

Сравнить проект В избранное
Проект двухэтажного дома с с/у с душем и парной комнатой на первом этаже / 1
Проект двухэтажного дома с с/у с душем и парной комнатой на первом этаже / 1
D445
116 м²
Домокомплект
Артикул проекта: ПД-1
Компания: Element-House
Стоимость домокомплекта
523 000 ₽
Заказать подробную смету
+7 (909) XXX-XX-XX Показать телефон
Задать вопрос по проекту
Технические характеристики
Общие
Материал стен
Бревно
Общая площадь
116 м²
Приведенная площадь
93.38 м²
Количество жилых комнат/спален
2
Этажи
1 этаж + мансарда
Гараж
Нет гаража
Подвал / цокольный этаж
Без подвала
Длина дома
9.0 м
Ширина дома
8.4 м
Облицовка внешних стен
Без облицовки
Межэтажные перекрытия
По деревянным балкам
Внутренние не несущие перегородки
Каркасно-обшивные
Терраса
Терраса крытая
Дополнительные
Сауна/баня внутри
Есть
Площадь гостиной
12.7 м²
Площадь кухни
11.8 м²
Количество санузлов
1
Балкон / лоджия
Балкон
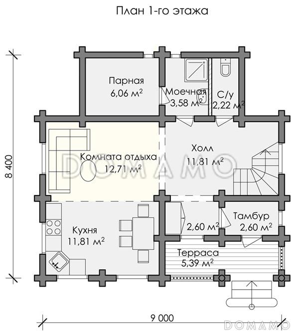
Планы помещений
Описание проекта
Компания Domamo предлагает проект двухэтажного дома с с/у с душем и парной комнатой на первом этаже D445. Общая площадь - 116 м2, размер - 9.0х8.4 м. Фундамент - , кровля - , внешняя отделка - без облицовки. Для заказа проекта или внесения изменений свяжитесь с нами с помощью форм обратной связи на сайте или по телефону +7 (831) 231-05-02.
Категории проекта: с мансардой деревянные из бревна дачные дома гостевые от 100 до 200 кв.м с террасой одноэтажные с мансардой одноэтажные до 150 кв. м. одноэтажные деревянные оцилиндрованное бревно с баней дачные с мансардой дачные с верандой до 120 кв.м до 150 кв.м до 200 кв.м с двухскатной крышей 6х10 8х9 загородные гостевые с баней с сауной прямоугольные с балконом в русском стиле одноэтажные из бревна из бревна с мансардой дачных домов из бревна гостевых домов из бревна Проекты деревянных домов с мансардой Проекты деревянных домов с террасой дачные деревянные Проекты гостевых домов из дерева Проекты деревянных домов с баней Проекты одноэтажных домов с террасой дачные одноэтажные Типовые проекты загородных одноэтажных домов Проекты одноэтажных домов с баней без гаража одноэтажные без гаража дачные с террасой с мансардой до 150 кв м с мансардой и террасой полутораэтажные дачные с мансардой и верандой одноэтажные с 2 спальнями с мансардой до 120 кв.м одноэтажные до 120 кв.м с мансардой 9 на 8 рубленные одноэтажные до 200 кв м до 140 кв м до 130 кв м дачные с баней с балконом и террасой с мансардой с баней с мансардой с двухскатной крышей с мансардой с балконом с мансардой прямоугольные с мансардой гостевые с мансардой до 200 кв.м с мансардой от 100 до 150 кв.м с балконом с террасой прямоугольные 8х9 до 120 кв.м до 150 кв.м. без гаража одноэтажные с мансардой из бревна одноэтажные с мансардой гостевые одноэтажные с мансардой дачные одноэтажные с мансардой в русском стиле одноэтажные с мансардой с балконом до 120 кв.м домокомплекты до 120 кв.м гостевые до 120 кв.м дачные до 120 кв.м без гаража до 120 кв.м с двухскатной крышей до 120 кв.м с террасой до 120 кв.м в русском стиле до 120 кв.м с баней до 120 кв.м с 2 спальнями до 120 кв.м прямоугольные до 120 кв.м с балконом до 120 кв.м 8х9 до 150 кв.м гостевые до 150 кв.м дачные до 150 кв.м без гаража до 150 кв.м с двухскатной крышей до 150 кв.м русские до 150 кв.м домокомплекты до 150 кв.м с балконом до 150 кв.м прямоугольные до 150 кв.м с баней до 150 кв.м с террасой до 150 кв.м без подвала до 150 кв.м с 2 спальнями деревянные в русском стиле деревянные с балконом деревянные прямоугольные деревянные без гаража деревянные домокомплекты деревянные без подвала деревянные с 2 спальнями деревянные с баней деревянные 8х9 деревянные до 120 кв.м деревянные до 150 кв.м деревянные от 100 до 200 м2 недорогие гостевые в русском стиле без гаража в русском стиле с террасой в русском стиле с балконом в русском стиле прямоугольные в русском стиле гостевые в русском стиле дачные в русском стиле с баней в русском стиле с двускатной крышей в русском стиле от 100 до 200 кв м из клееного бруса без гаража Показать все категории Скрыть категории

Похожие проекты
Состав проекта
Входит в стоимость
Цена, руб. Сроки, дней
Комплект архитектурно-строительных чертежей (АС) Входит в стоимость Готов к отправке
Разрабатывается отдельно
Цена, руб. Сроки, дней
Адаптация фундамента (изменение типа фундамента) по запросу 14 рабочих дней
Дизайн интерьера (стоимость от 2200руб. за квад.метр площади) по запросу 30 рабочих дней
Внесение изменений в проект по запросу 20 рабочих дней
Фэншуй дома 20 000 ₽ 14 рабочих дней в корзину
Фэншуй участка 15 000 ₽ 14 рабочих дней в корзину
Фэншуй полная консультация дом+участок с выездом на объект 100 000 ₽ 30 рабочих дней в корзину
Опции проекта вы можете заказать в корзине при оформлении заказа
Отзывы покупателей
Рейтинг покупателей
0 / 5 5 5 1
На основе 1 оценок покупателей
0%
0%
0%
0%
0%
Отзывы о проекте D445
Отзыв о проекте D445
Чтобы оставить отзыв, пожалуйста авторизуйтесь.
Подбор строительной компании
Не знаете кому доверить строительство дома? Мы можем помочь! Подберем для вас из сотен наших партнеров несколько компаний с лучшем соотношением цена/качество под конкретно ваш запрос.
Подобрать