Главная Проекты домов Проект загородного дома с верандой, полукруглым крыльцом, французским балконом, вытянутой кухней-гостиной-столовой

D4425 Проект загородного дома с верандой, полукруглым крыльцом, французским балконом, вытянутой кухней-гостиной-столовой

Сравнить проект В избранное
Технические характеристики
Общие
Материал стен
Газобетон
Общая площадь
260 м²
Жилая площадь
111.8 м²
Площадь застройки
100.91 м²
Приведенная площадь
226.66 м²
Количество жилых комнат/спален
5
Этажи
2 этажа
Гараж
Нет гаража
Подвал / цокольный этаж
Без подвала
Длина дома
14.05 м
Ширина дома
11.29 м
Кровля
Металлочерепица
Облицовка внешних стен
Мокрая штукатурка
,
Облицовочный кирпич
Толщина несущих наружных стен
375 мм
Межэтажные перекрытия
Монолитные
Фундамент
Монолитная ж/бетонная плита
Терраса
Терраса открытая
,
Терраса застекленная (веранда)
Дополнительные
Окна
Окна до пола
,
Круглые окна
Камин
Есть
Сауна/баня внутри
Нет
Площадь гостиной
20.1 м²
Площадь кухни
17 м²
Количество санузлов
3
Окно в ванной комнате
Есть
Котельная
Есть
Кабинет
Есть
Хозяйский санузел
Есть
Кладовая
2
Балкон / лоджия
Балкон
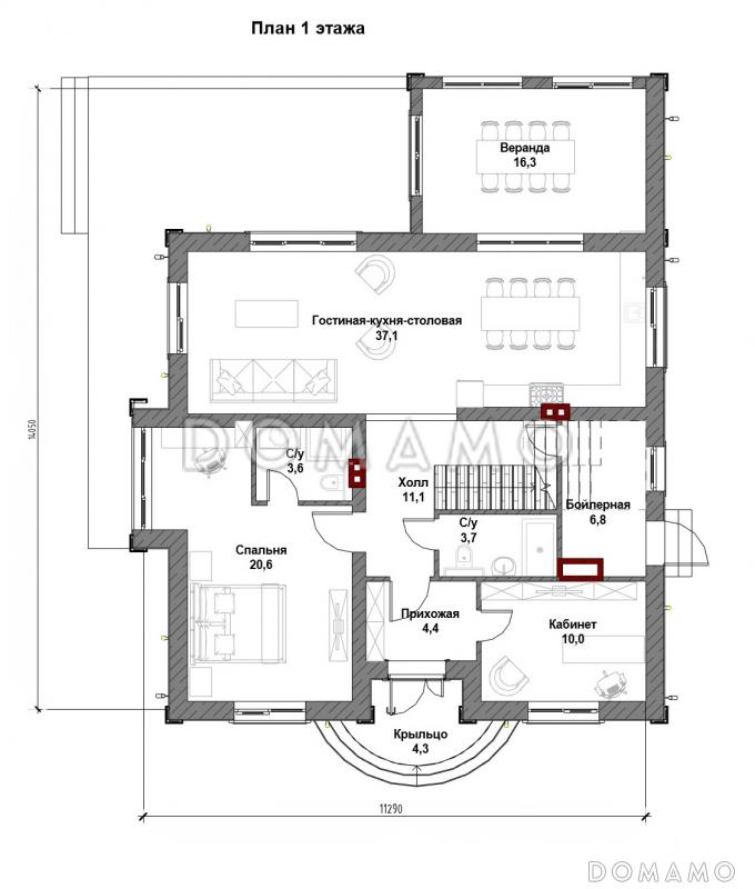
Планы помещений
Фасады
Описание проекта
Компания Domamo предлагает проект загородного дома с верандой, полукруглым крыльцом, французским балконом, вытянутой кухней-гостиной-столовой D4425. Общая площадь - 260 м2, размер - 14.05х11.29 м. Фундамент - монолитная ж/бетонная плита, кровля - металлочерепица, внешняя отделка - облицовочный кирпич мокрая штукатурка. Для заказа проекта или внесения изменений свяжитесь с нами с помощью форм обратной связи на сайте или по телефону +7 (831) 231-05-02.
Категории проекта: для постоянного проживания пенобетон в классическом стиле от 200 до 300 кв.м с эркером с террасой из газобетона с эркером из газобетона готовые двухэтажные с котельной двухэтажные из газобетона из газосиликатных блоков двухэтажные из пеноблоков загородные с четырехскатной крышей из керамзитобетонных блоков с камином прямоугольные с балконом с верандой из газобетона с террасой двухэтажные с эркером из блоков двухэтажные из блоков из блоков с эркером Проекты домов из пеноблоков с эркером из пеноблоков с террасой загородные из газобетона Проекты двухэтажных домов с террасой Проекты двухэтажных домов с верандой без гаража с террасой и камином облицованные кирпичом с кабинетом с балконом и террасой из пеноблоков загородные с 5 спальнями от 200 до 250 м двухэтажные с камином двухэтажные с балконом двухэтажные с балконом и террасой двухэтажные в классическом стиле двухэтажные без гаража из газобетона от 200 до 300 кв.м из газобетона с четырехскатной крышей из газобетона в классическом стиле из газобетона с балконом из газобетона с котельной из газобетона прямоугольные из газобетона готовые из газобетона с камином из газобетона с большой кухней из газобетона с кабинетом из газобетона для постоянного проживания двухэтажные из газобетона без гаража двухэтажные из газобетона с террасой двухэтажные из газобетона с камином двухэтажные из газобетона с кабинетом двухэтажные из газобетона с котельной двухэтажные из газобетона классические двухэтажные из газобетона с четырехскатной крышей двухэтажные из газобетона с вальмовой крышей двухэтажные из газобетона без подвала двухэтажные из газобетона с эркером классические для постоянного проживания классические без гаража классические с окнами в пол классические с террасой классические готовые классические с котельной классические с большой кухней классические без подвала классические с балконом классические прямоугольные классические с камином классические с четырехскатной крышей классические с вальмовой крышей классические с кабинетом из пеноблоков в классическом стиле из пеноблоков с четырехскатной крышей из пеноблоков с вальмовой крышей из пеноблоков с окнами до пола из пеноблоков прямоугольные из пеноблоков с балконом из пеноблоков для постоянного проживания из пеноблоков готовые из пеноблоков с камином из пеноблоков от 200 до 300 м2 из пеноблоков с большой кухней из клееного бруса без гаража Показать все категории Скрыть категории

Похожие проекты
Состав проекта
Входит в стоимость
Цена, руб. Сроки, дней
Комплект архитектурно-строительных чертежей (АС) Входит в стоимость Готов к отправке
Разрабатывается отдельно
Цена, руб. Сроки, дней
Адаптация фундамента (изменение типа фундамента) по запросу 14 рабочих дней
Дизайн интерьера (стоимость от 2200руб. за квад.метр площади) по запросу 30 рабочих дней
Внесение изменений в проект по запросу 20 рабочих дней
Фэншуй дома 20 000 ₽ 14 рабочих дней в корзину
Фэншуй участка 15 000 ₽ 14 рабочих дней в корзину
Фэншуй полная консультация дом+участок с выездом на объект 100 000 ₽ 30 рабочих дней в корзину
Опции проекта вы можете заказать в корзине при оформлении заказа
Предложения строителей Выбрать регион
Минимальная
7 706 440 ₽
Стандарт
9 519 720 ₽
Под чистовую отделку
12 466 300 ₽
Показать подробные комплектации
Минимальная
19 073 439 ₽
Стандарт
22 439 340 ₽
Под чистовую отделку
29 171 142 ₽
Показать подробные комплектации
Минимальная
9 696 514 ₽
Стандарт
14 388 376 ₽
Под чистовую отделку
22 833 728 ₽
Показать подробные комплектации
Минимальная
7 933 100 ₽
Стандарт
9 519 720 ₽
Под чистовую отделку
10 653 020 ₽
Показать подробные комплектации
Минимальная
7 315 678 ₽
Стандарт
10 736 884 ₽
Под чистовую отделку
11 487 128 ₽
Показать подробные комплектации
Минимальная
6 346 480 ₽
Стандарт
7 253 120 ₽
Под чистовую отделку
9 519 720 ₽
Показать подробные комплектации
Подбор строительной компании
Не знаете кому доверить строительство дома? Мы можем помочь! Подберем для вас из сотен наших партнеров несколько компаний с лучшем соотношением цена/качество под конкретно ваш запрос.
Подобрать
Посмотреть еще 32 компании Свернуть
Отзывы покупателей
Рейтинг покупателей
0 / 5 5 5 1
На основе 1 оценок покупателей
0%
0%
0%
0%
0%
Отзывы о проекте D4425
Отзыв о проекте D4425
Чтобы оставить отзыв, пожалуйста авторизуйтесь.
Подбор строительной компании
Не знаете кому доверить строительство дома? Мы можем помочь! Подберем для вас из сотен наших партнеров несколько компаний с лучшем соотношением цена/качество под конкретно ваш запрос.
Подобрать