Главная Проекты домов Проект одноэтажного дома из клееного бруса с двумя спальнями

D431 Проект одноэтажного дома из клееного бруса с двумя спальнями

Сравнить проект В избранное
Проект одноэтажного дома из клееного бруса с двумя спальнями / 1
Проект одноэтажного дома из клееного бруса с двумя спальнями / 2
Проект одноэтажного дома из клееного бруса с двумя спальнями / 1
Проект одноэтажного дома из клееного бруса с двумя спальнями / 2
D431
120.6 м²
Проект с подрядом
Артикул проекта: ЮДЖИН
Компания: Ecohouse Group
Стоимость строительства
2 535 000 ₽
Заказать подробную смету
+7 (812) XXX-XX-XX Показать телефон
Задать вопрос по проекту
Технические характеристики
Общие
Материал стен
Клееный брус
Общая площадь
120.6 м²
Приведенная площадь
84.48 м²
Количество жилых комнат/спален
2
Этажи
1 этаж
Гараж
Нет гаража
Подвал / цокольный этаж
Без подвала
Длина дома
10.5 м
Ширина дома
8.0 м
Кровля
Металлочерепица
Облицовка внешних стен
Без облицовки
Толщина несущих наружных стен
160 мм
Межэтажные перекрытия
По деревянным балкам
Внутренние не несущие перегородки
Каркасно-обшивные
Терраса
Терраса крытая
Дополнительные
Окна
Окна до пола
Сауна/баня внутри
Нет
Площадь гостиной
30.4 м²
Площадь кухни
8 м²
Количество санузлов
1
Окно в ванной комнате
Есть
Котельная
Есть
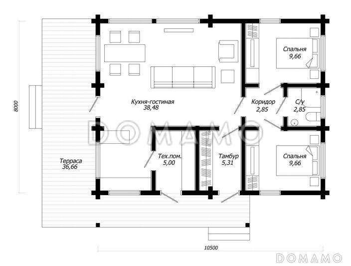
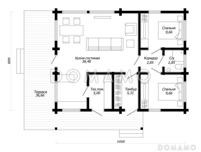
Планы помещений
Описание проекта
Компания Domamo предлагает проект одноэтажного дома из клееного бруса с двумя спальнями D431. Общая площадь - 120.6 м2, размер - 10.5х8.0 м. Фундамент - , кровля - металлочерепица, внешняя отделка - без облицовки. Для заказа проекта или внесения изменений свяжитесь с нами с помощью форм обратной связи на сайте или по телефону +7 (831) 231-05-02.
Категории проекта: деревянные для постоянного проживания из клееного бруса в английском стиле в скандинавском стиле современные для узких участков дачные дома от 100 до 200 кв.м 8х10 8х11 в европейском стиле с террасой из бруса в стиле замка в финском стиле одноэтажные одноэтажные до 150 кв. м. одноэтажные с котельной с котельной одноэтажные деревянные дачные с верандой до 150 кв.м до 200 кв.м с двухскатной крышей 6х10 загородные узкие прямоугольные Проекты деревянных домов с террасой дачные деревянные Проекты одноэтажных домов из клееного бруса Проекты одноэтажных домов с террасой дачные одноэтажные Типовые проекты загородных одноэтажных домов без гаража одноэтажные без гаража дачные с террасой одноэтажные финские деревянные для круглогодичного проживания одноэтажные с 2 спальнями одноэтажные до 200 кв м до 140 кв м одноэтажные 8х10 до 130 кв м одноэтажные современные одноэтажные с двухскатной крышей одноэтажные прямоугольные одноэтажные с окнами в пол одноэтажные до 180 м2 с террасой скандинавские современные с окнами в пол прямоугольные для постоянного проживания дачные современные без гаража современные с двухскатной крышей современные с окнами в пол современные с террасой современные 8х11 современные 8х10 современные до 150 кв. м современные от 100 до 200 кв. м скандинавские для постоянного проживания скандинавские дачные скандинавские без гаража скандинавские с окнами в пол скандинавские с террасой скандинавские прямоугольные скандинавские до 150 кв. м скандинавские от 100 до 200 м2 скандинавские 8х11 скандинавские 8х10 скандинавские с двухскатной крышей скандинавские с котельной европейские 8х10 европейские 8х11 до 150 кв.м из клееного бруса до 150 кв.м для постоянного проживания до 150 кв.м дачные до 150 кв.м без гаража до 150 кв.м с двухскатной крышей до 150 кв.м с окнами до пола до 150 кв.м с подрядом до 150 кв.м прямоугольные до 150 кв.м с котельной до 150 кв.м без бани до 150 кв.м с террасой до 150 кв.м без подвала до 150 кв.м с 2 спальнями до 150 кв.м с большой гостиной деревянные в скандинавском стиле деревянные современные деревянные с окнами в пол деревянные прямоугольные деревянные без гаража деревянные с подрядом деревянные без подвала деревянные с 2 спальнями деревянные с большой гостиной деревянные 8х10 деревянные 8х11 деревянные до 150 кв.м деревянные от 100 до 200 м2 из клееного бруса проект с подрядом из клееного бруса дачный дом из клееного бруса для постоянного проживания из клееного бруса с окном в ванной комнате из клееного бруса прямоугольный из клееного бруса с окнами в пол (в гостиной) из клееного бруса с окнами в пол (на кухне) из клееного бруса с окнами в пол из клееного бруса в скандинавском стиле из клееного бруса в современном стиле из клееного бруса с двухскатной крышей из клееного бруса с каркасно-обшивными перегородками из клееного бруса без облицовки из клееного бруса с перекрытиями по деревянным балкам из клееного бруса с кровлей из металлочерепицы из клееного бруса с котельной из клееного бруса с выходом на терассу из гостиной из клееного бруса с выходом на терассу из кухни из клееного бруса с крытой терассой из клееного бруса без подвала из клееного бруса без гаража из клееного бруса одноэтажные из клееного бруса от 100 до 200 м2 из клееного бруса с большой гостиной Проекты домов с подрядом Показать все категории Скрыть категории

Похожие проекты
Состав проекта
Входит в стоимость
Цена, руб. Сроки, дней
Комплект архитектурно-строительных чертежей (АС) Входит в стоимость Готов к отправке
Разрабатывается отдельно
Цена, руб. Сроки, дней
Адаптация фундамента (изменение типа фундамента) по запросу 14 рабочих дней
Дизайн интерьера (стоимость от 2200руб. за квад.метр площади) по запросу 30 рабочих дней
Внесение изменений в проект по запросу 20 рабочих дней
Фэншуй дома 20 000 ₽ 14 рабочих дней в корзину
Фэншуй участка 15 000 ₽ 14 рабочих дней в корзину
Фэншуй полная консультация дом+участок с выездом на объект 100 000 ₽ 30 рабочих дней в корзину
Опции проекта вы можете заказать в корзине при оформлении заказа
Комплектации
Отзывы покупателей
Рейтинг покупателей
0 / 5 5 5 1
На основе 1 оценок покупателей
0%
0%
0%
0%
0%
Отзывы о проекте D431
Отзыв о проекте D431
Чтобы оставить отзыв, пожалуйста авторизуйтесь.
Подбор строительной компании
Не знаете кому доверить строительство дома? Мы можем помочь! Подберем для вас из сотен наших партнеров несколько компаний с лучшем соотношением цена/качество под конкретно ваш запрос.
Подобрать