Главная Проекты домов Проект маленького одноэтажного дома из газобетона с террасой

D4142 Проект маленького одноэтажного дома из газобетона с террасой

Сравнить проект В избранное
Проект маленького одноэтажного дома из газобетона с террасой / 1
Проект маленького одноэтажного дома из газобетона с террасой / 2
Проект маленького одноэтажного дома из газобетона с террасой / 1
Проект маленького одноэтажного дома из газобетона с террасой / 2
D4142
50 м²
Подготовка проекта:
30 рабочих дней
Стоимость проекта
Купить проект
Задайте вопросы по проекту нашему архитектору
8 (800) 200-28-83
Время работы: пн-вс: с 9:00 до 20:00
Задать вопрос по проекту

Технические характеристики
Общие
Материал стен
Газобетон
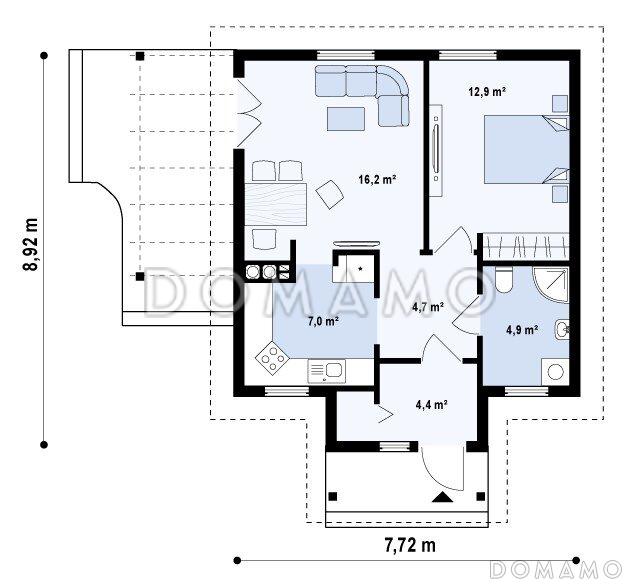
Общая площадь
50 м²
Площадь застройки
64.1 м²
Приведенная площадь
57.6 м²
Количество жилых комнат/спален
1
Этажи
1 этаж
Гараж
Нет гаража
Подвал / цокольный этаж
Без подвала
Длина дома
8.92 м
Ширина дома
7.72 м
Высота в коньке
6.18 м
Кровля
Металлочерепица
Облицовка внешних стен
Деревянная вагонка
,
Мокрая штукатурка
,
Облицовка камнем
Толщина несущих наружных стен
380 мм
Межэтажные перекрытия
По деревянным балкам
Внутренние не несущие перегородки
Газобетонные
Фундамент
Ленточный заглубленный из ФБС
Терраса
Терраса открытая
Дополнительные
Окна
Окна до пола
Сауна/баня внутри
Нет
Площадь гостиной
16.2 м²
Площадь кухни
7 м²
Количество санузлов
1
Окно в ванной комнате
Есть
Кладовая
1
Дом для узких участков
Есть
Длина участка
16.92 м
Ширина участка
14.72 м
Планы помещений
Фасады
Описание проекта
Компания Domamo предлагает проект маленького одноэтажного дома из газобетона с террасой D4142. Общая площадь - 50 м2, размер - 8.92х7.72 м. Фундамент - ленточный заглубленный из фбс, кровля - металлочерепица, внешняя отделка - деревянная вагонка мокрая штукатурка облицовка камнем. Для заказа проекта или внесения изменений свяжитесь с нами с помощью форм обратной связи на сайте или по телефону +7 (831) 231-05-02.
Категории проекта: для постоянного проживания пенобетон для узких участков до 100 кв.м в европейском стиле с террасой из газобетона в немецком стиле из газобетона одноэтажные из пеноблоков готовые одноэтажные одноэтажные из газобетона из газосиликатных блоков 6х10 8х9 загородные с четырехскатной крышей из керамзитобетонных блоков квадратные узкие из газобетона с террасой из блоков одноэтажные из блоков из пеноблоков с террасой загородные из газобетона Проекты одноэтажных домов с террасой Типовые проекты загородных одноэтажных домов без гаража одноэтажные без гаража маленькие одноэтажных из керамзитобетонных блоков маленькие одноэтажные одноэтажные для узких участков каменные одноэтажные до 80 кв м одноэтажные из пеноблоков до 100 кв м одноэтажные из газобетона до 100м2 до 50 кв м до 140 кв м до 130 кв м из пеноблоков загородные одноэтажные с четырехскатной крышей одноэтажные квадратные одноэтажные с окнами в пол одноэтажные европейские одноэтажные до 180 м2 маленькие одноэтажные для постоянного проживания маленькие одноэтажные с террасой маленькие одноэтажные из газобетона одноэтажные из газобетона с террасой одноэтажные из газобетона до 120 кв. м одноэтажные из газобетона до 150 кв. м одноэтажные из газобетона с мансардой европейские окна в пол четырехскатная крыша квадратные для узких участков готовые проекты для постоянного проживания из газобетона до 100 кв.м из газобетона до 120 кв.м из газобетона до 150 кв.м из газобетона до 200 кв.м из газобетона с четырехскатной крышей из газобетона в европейском стиле из газобетона квадратные из газобетона готовые из газобетона для узких участков из газобетона 8х9 из газобетона маленькие из газобетона узкие из газобетона для постоянного проживания европейские для постоянного проживания европейские готовые европейские без подвала европейские с террасой европейские с кладовой европейские квадратные европейские с окнами в пол европейские с четырехскатной крышей европейские для узких участков европейские до 100 м2 европейские до 120 м2 европейские до 150 м2 до 100 кв.м для постоянного проживания до 100 кв.м с террасой до 100 кв.м с окнами в пол до 100 кв.м квадратные до 100 кв.м для узких участков до 100 кв.м с четырехскатной крышей до 100 кв.м 8х9 до 120 кв.м готовые до 120 кв.м для постоянного проживания до 120 кв.м без гаража до 120 кв.м с четырехскатной крышей до 120 кв.м с окнами в пол до 120 кв.м с террасой до 120 кв.м квадратные до 120 кв.м 8х9 маленькие в европейском стиле маленькие с террасой маленькие для постоянного проживания маленькие для узких участков маленькие готовые маленькие квадратные маленькие с окнами до пола маленькие с четырехскатной крышей маленькие без бани маленькие 8х9 из пеноблоков в европейском стиле из пеноблоков с четырехскатной крышей из пеноблоков с окнами до пола из пеноблоков квадратные из пеноблоков для постоянного проживания из пеноблоков для узких участков из пеноблоков готовые из пеноблоков 8х9 из пеноблоков до 120 м кв. из пеноблоков маленькие из пеноблоков узкие из клееного бруса без гаража Показать все категории Скрыть категории

Похожие проекты
Состав проекта
Входит в стоимость
Цена, руб. Сроки, дней
Комплект архитектурно-строительных чертежей (АС) Входит в стоимость 30 рабочих дней
Готово к продаже
Цена, руб. Сроки, дней
Паспорт рабочего проекта 8 000 ₽ 5 рабочих дней в корзину
Инженерные разделы: ВК + ОВ + ЭО 26 000 ₽ 30 рабочих дней в корзину
Дополнительная копия проекта формата А3 6 500 ₽ 5 рабочих дней в корзину
Электронная копия проекта (скан распечатанной версии) 4 000 ₽ 3 рабочих дня в корзину
Разрабатывается отдельно
Цена, руб. Сроки, дней
Адаптация фундамента (изменение типа фундамента) по запросу 14 рабочих дней
Дизайн интерьера (стоимость от 2200руб. за квад.метр площади) по запросу 30 рабочих дней
Внесение изменений в проект по запросу 20 рабочих дней
Разработка Генплана участка, в масштабе 1:250 7 500 ₽ 15 рабочих дней в корзину
Фэншуй дома 20 000 ₽ 14 рабочих дней в корзину
Фэншуй участка 15 000 ₽ 14 рабочих дней в корзину
Фэншуй полная консультация дом+участок с выездом на объект 100 000 ₽ 30 рабочих дней в корзину
Опции проекта вы можете заказать в корзине при оформлении заказа
Предложения строителей Республика Башкортостан
Отзывы покупателей
Рейтинг покупателей
0 / 5 5 5 1
На основе 1 оценок покупателей
0%
0%
0%
0%
0%
Отзывы о проекте D4142
Отзыв о проекте D4142
Чтобы оставить отзыв, пожалуйста авторизуйтесь.
Подбор строительной компании
Не знаете кому доверить строительство дома? Мы можем помочь! Подберем для вас из сотен наших партнеров несколько компаний с лучшем соотношением цена/качество под конкретно ваш запрос.
Подобрать