Главная Проекты домов Проект одноэтажного мансардного дома из кирпича в современном исполнении с четырьмя комнатами и балконом

D3649 Проект одноэтажного мансардного дома из кирпича в современном исполнении с четырьмя комнатами и балконом

Сравнить проект В избранное
Проект одноэтажного мансардного дома из кирпича в современном исполнении с четырьмя комнатами и балконом / 1
Проект одноэтажного мансардного дома из кирпича в современном исполнении с четырьмя комнатами и балконом / 2
Проект одноэтажного мансардного дома из кирпича в современном исполнении с четырьмя комнатами и балконом / 1
Проект одноэтажного мансардного дома из кирпича в современном исполнении с четырьмя комнатами и балконом / 2
D3649
135 м²
Подготовка проекта:
33 рабочих дня
Стоимость проекта
Купить проект
Задайте вопросы по проекту нашему архитектору
8 (800) 200-28-83
Время работы: пн-вс: с 9:00 до 20:00
Задать вопрос по проекту

Технические характеристики
Общие
Материал стен
Кирпич
Общая площадь
135 м²
Площадь застройки
112.9 м²
Приведенная площадь
133.55 м²
Количество жилых комнат/спален
4
Этажи
1 этаж + мансарда
Гараж
Нет гаража
Подвал / цокольный этаж
Без подвала
Длина дома
8.94 м
Ширина дома
9.54 м
Высота в коньке
7.88 м
Кровля
Металлочерепица
Облицовка внешних стен
Мокрая штукатурка
Толщина несущих наружных стен
380 мм
Межэтажные перекрытия
Монолитные
Внутренние не несущие перегородки
Кирпичные
Фундамент
Ленточный заглубленный из ФБС
Терраса
Терраса открытая
Дополнительные
Окна
Окна до пола
Мансардные окна
Есть
Камин
Есть
Сауна/баня внутри
Нет
Площадь гостиной
23.2 м²
Площадь кухни
9.7 м²
Количество санузлов
2
Окно в ванной комнате
Есть
Котельная
Есть
Кладовая
1
Балкон / лоджия
Балкон
Длина участка
16.94 м
Ширина участка
16.54 м
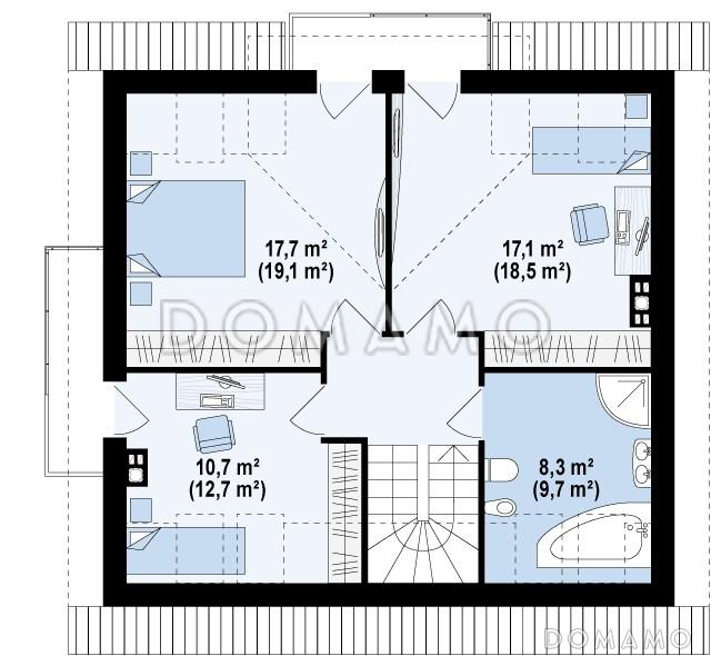
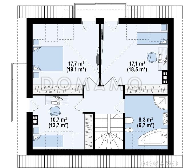
Планы помещений
Фасады
Описание проекта
Компания Domamo предлагает проект одноэтажного мансардного дома из кирпича в современном исполнении с четырьмя комнатами и балконом D3649. Общая площадь - 135 м2, размер - 8.94х9.54 м. Фундамент - ленточный заглубленный из фбс, кровля - металлочерепица, внешняя отделка - мокрая штукатурка. Для заказа проекта или внесения изменений свяжитесь с нами с помощью форм обратной связи на сайте или по телефону +7 (831) 231-05-02.
Категории проекта: с мансардой для постоянного проживания кирпич современные от 100 до 200 кв.м кирпичные дома с мансардой в европейском стиле с террасой из кирпича с террасой готовые загородные из кирпича одноэтажные из кирпича одноэтажные из кирпича с мансардой одноэтажные кирпичные с котельной одноэтажные с мансардой кирпичные площадью до 150 кв. м. кирпичные с котельной одноэтажные до 150 кв. м. одноэтажные с котельной с котельной кирпичные до 200 кв.м до 150 кв.м до 200 кв.м с двухскатной крышей 6х10 9х10 9х12 загородные с камином квадратные с балконом современные кирпичные Проекты одноэтажных домов с террасой Типовые проекты загородных одноэтажных домов без гаража одноэтажные без гаража с террасой и камином одноэтажные с 4 спальнями с мансардой до 150 кв м с мансардой и террасой полутораэтажные с 4 спальнями 9 на 12 с мансардой одноэтажные до 200 кв м до 140 кв м полутораэтажные из кирпича с балконом и террасой одноэтажные с мансардными окнами одноэтажные 9х10 с мансардой с котельной с мансардой с камином с мансардой с двухскатной крышей с мансардой современные с мансардой с окнами до пола с мансардой с мансардными окнами с мансардой с балконом с мансардой квадратные с мансардой готовые с мансардой для постоянного проживания с мансардой 9х10 с мансардой до 200 кв.м с мансардой от 100 до 150 кв.м одноэтажные из кирпича с 4 спальнями готовые для постоянного проживания с камином без гаража без подвала современные квадратные одноэтажные с мансардой для постоянного проживания одноэтажные с мансардой современные одноэтажные с мансардой с балконом современные без гаража современные с двухскатной крышей современные с окнами в пол современные с террасой современные до 150 кв. м современные от 100 до 200 кв. м до 150 кв.м для постоянного проживания до 150 кв.м без гаража до 150 кв.м с двухскатной крышей до 150 кв.м с окнами до пола до 150 кв.м готовые до 150 кв.м с мансардными окнами до 150 кв.м с балконом до 150 кв.м квадратные до 150 кв.м с котельной до 150 кв.м без бани до 150 кв.м с террасой до 150 кв.м без подвала до 150 кв.м с 4 спальнями до 150 кв.м с камином из клееного бруса без гаража Показать все категории Скрыть категории

Похожие проекты
Состав проекта
Входит в стоимость
Цена, руб. Сроки, дней
Комплект архитектурно-строительных чертежей (АС) Входит в стоимость 33 рабочих дня
Готово к продаже
Цена, руб. Сроки, дней
Паспорт рабочего проекта 8 000 ₽ 5 рабочих дней в корзину
Дополнительная копия проекта формата А3 6 500 ₽ 5 рабочих дней в корзину
Электронная копия проекта (скан распечатанной версии) 4 000 ₽ 3 рабочих дня в корзину
Разрабатывается отдельно
Цена, руб. Сроки, дней
Адаптация фундамента (изменение типа фундамента) по запросу 14 рабочих дней
Дизайн интерьера (стоимость от 2200руб. за квад.метр площади) по запросу 30 рабочих дней
Внесение изменений в проект по запросу 20 рабочих дней
Инженерные разделы: ВК + ОВ + ЭО 21 690 ₽ 33 рабочих дня в корзину
Разработка Генплана участка, в масштабе 1:250 7 500 ₽ 15 рабочих дней в корзину
Фэншуй дома 20 000 ₽ 14 рабочих дней в корзину
Фэншуй участка 15 000 ₽ 14 рабочих дней в корзину
Фэншуй полная консультация дом+участок с выездом на объект 100 000 ₽ 30 рабочих дней в корзину
Опции проекта вы можете заказать в корзине при оформлении заказа
Варианты проекта Сравнить все варианты
Избранные проекты
Избранные строители
Отзывы покупателей
Рейтинг покупателей
0 / 5 5 5 1
На основе 1 оценок покупателей
0%
0%
0%
0%
0%
Отзывы о проекте D3649
Отзыв о проекте D3649
Чтобы оставить отзыв, пожалуйста авторизуйтесь.
Подбор строительной компании
Не знаете кому доверить строительство дома? Мы можем помочь! Подберем для вас из сотен наших партнеров несколько компаний с лучшем соотношением цена/качество под конкретно ваш запрос.
Подобрать