Главная Проекты домов Проект классического мансардного дома из кирпича со встроенным гаражом

D3607 Проект классического мансардного дома из кирпича со встроенным гаражом

Сравнить проект В избранное
Технические характеристики
Общие
Материал стен
Кирпич
Общая площадь
197 м²
Площадь застройки
117.4 м²
Приведенная площадь
185.5 м²
Количество жилых комнат/спален
3
Этажи
1 этаж + мансарда
Гараж
Встроенный гараж
Количество машин
1
Подвал / цокольный этаж
Без подвала
Длина дома
10.08 м
Ширина дома
12.48 м
Высота в коньке
7.83 м
Кровля
Металлочерепица
Облицовка внешних стен
Деревянная вагонка
,
Мокрая штукатурка
Толщина несущих наружных стен
380 мм
Межэтажные перекрытия
Монолитные
Внутренние не несущие перегородки
Кирпичные
Фундамент
Ленточный заглубленный из ФБС
Терраса
Терраса крытая
Дополнительные
Окна
Окна до пола
Мансардные окна
Есть
Камин
Есть
Сауна/баня внутри
Нет
Площадь гостиной
31.1 м²
Площадь кухни
9.9 м²
Количество санузлов
3
Окно в ванной комнате
Есть
Котельная
Есть
Хозяйский санузел
Есть
Хозяйская гардеробная
Есть
Кладовая
2
Длина участка
18.08 м
Ширина участка
20.48 м
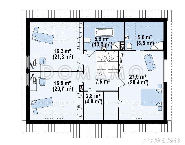
Планы помещений
Фасады
Описание проекта
Компания Domamo предлагает проект классического мансардного дома из кирпича со встроенным гаражом D3607. Общая площадь - 197 м2, размер - 10.08х12.48 м. Фундамент - ленточный заглубленный из фбс, кровля - металлочерепица, внешняя отделка - деревянная вагонка мокрая штукатурка. Для заказа проекта или внесения изменений свяжитесь с нами с помощью форм обратной связи на сайте или по телефону +7 (831) 231-05-02.
Категории проекта: с мансардой с гаражом с мансардой и гаражом для постоянного проживания кирпич в классическом стиле от 100 до 200 кв.м кирпичные дома хай-тек классические кирпичные дома кирпичные дома с мансардой дома из кирпича с гаражом с террасой из кирпича с террасой готовые загородные из кирпича одноэтажные из кирпича одноэтажные из кирпича с гаражом одноэтажные из кирпича с мансардой одноэтажные кирпичные с котельной одноэтажные с гаражом одноэтажные с мансардой кирпичные с котельной одноэтажные с котельной с котельной кирпичные до 200 кв.м одноэтажные с гаражом и мансардой до 200 кв.м с двухскатной крышей 9х12 загородные с камином с гардеробной прямоугольные со встроенным гаражом 10х12 Проекты одноэтажных домов с террасой Типовые проекты загородных одноэтажных домов с террасой и камином одноэтажные с тремя спальнями Проекты домов с тремя спальнями с гаражом под одной крышей одноэтажные с гаражом и террасой с мансардой и террасой полутораэтажные с гаражом и террасой 9 на 12 с мансардой одноэтажные до 200 кв м полутораэтажные из кирпича 10x12 с мансардой одноэтажные с мансардными окнами одноэтажные 10х12 с мансардой с котельной с мансардой с камином с мансардой с двухскатной крышей с мансардой в классическом стиле с мансардой с окнами до пола с мансардой с мансардными окнами с мансардой прямоугольные с мансардой готовые с мансардой для постоянного проживания с мансардой до 200 кв.м одноэтажные из кирпича с 3 спальнями готовые для постоянного проживания с камином без подвала с изолированной кухней классический стиль прямоугольные с большой гостиной одноэтажные с мансардой для постоянного проживания одноэтажные с мансардой с изолированной кухней одноэтажные с мансардой классические классические для постоянного проживания классические с гаражом классические с 3 спальнями классические с окнами в пол классические с террасой классические готовые классические с котельной классические с изолированной кухней классические без подвала классические прямоугольные классические с камином классические с двухскатной крышей из клееного бруса без гаража Показать все категории Скрыть категории

Похожие проекты
Состав проекта
Входит в стоимость
Цена, руб. Сроки, дней
Комплект архитектурно-строительных чертежей (АС) Входит в стоимость 33 рабочих дня
Готово к продаже
Цена, руб. Сроки, дней
Паспорт рабочего проекта 8 000 ₽ 5 рабочих дней в корзину
Дополнительная копия проекта формата А3 6 500 ₽ 5 рабочих дней в корзину
Электронная копия проекта (скан распечатанной версии) 4 000 ₽ 3 рабочих дня в корзину
Разрабатывается отдельно
Цена, руб. Сроки, дней
Адаптация фундамента (изменение типа фундамента) по запросу 14 рабочих дней
Дизайн интерьера (стоимость от 2200руб. за квад.метр площади) по запросу 30 рабочих дней
Внесение изменений в проект по запросу 20 рабочих дней
Инженерные разделы: ВК + ОВ + ЭО 15 300 ₽ 33 рабочих дня в корзину
Разработка Генплана участка, в масштабе 1:250 7 500 ₽ 15 рабочих дней в корзину
Фэншуй дома 20 000 ₽ 14 рабочих дней в корзину
Фэншуй участка 15 000 ₽ 14 рабочих дней в корзину
Фэншуй полная консультация дом+участок с выездом на объект 100 000 ₽ 30 рабочих дней в корзину
Опции проекта вы можете заказать в корзине при оформлении заказа
Предложения строителей Выбрать регион
Минимальная
6 492 500 ₽
Стандарт
7 976 500 ₽
Под чистовую отделку
10 388 000 ₽
Показать подробные комплектации
Минимальная
15 767 500 ₽
Стандарт
18 550 000 ₽
Под чистовую отделку
24 115 000 ₽
Показать подробные комплектации
Минимальная
8 666 560 ₽
Стандарт
12 729 010 ₽
Под чистовую отделку
20 041 420 ₽
Показать подробные комплектации
Минимальная
7 432 985 ₽
Стандарт
8 534 855 ₽
Под чистовую отделку
10 928 176 ₽
Показать подробные комплектации
Минимальная
3 638 202 ₽
Стандарт
4 505 340 ₽
Под чистовую отделку
5 422 730 ₽
Показать подробные комплектации
Подбор строительной компании
Не знаете кому доверить строительство дома? Мы можем помочь! Подберем для вас из сотен наших партнеров несколько компаний с лучшем соотношением цена/качество под конкретно ваш запрос.
Подобрать
Посмотреть еще 20 компаний Свернуть
Отзывы покупателей
Рейтинг покупателей
0 / 5 5 5 1
На основе 1 оценок покупателей
0%
0%
0%
0%
0%
Отзывы о проекте D3607
Отзыв о проекте D3607
Чтобы оставить отзыв, пожалуйста авторизуйтесь.
Подбор строительной компании
Не знаете кому доверить строительство дома? Мы можем помочь! Подберем для вас из сотен наших партнеров несколько компаний с лучшем соотношением цена/качество под конкретно ваш запрос.
Подобрать