Главная Проекты домов Проект мансардного дома из кирпича с кабинетом, тремя спальнями и балконом

D3589 Проект мансардного дома из кирпича с кабинетом, тремя спальнями и балконом

Сравнить проект В избранное
Проект мансардного дома из кирпича с кабинетом, тремя спальнями и балконом / 1
Проект мансардного дома из кирпича с кабинетом, тремя спальнями и балконом / 2
Проект мансардного дома из кирпича с кабинетом, тремя спальнями и балконом / 3
Проект мансардного дома из кирпича с кабинетом, тремя спальнями и балконом / 1
Проект мансардного дома из кирпича с кабинетом, тремя спальнями и балконом / 2
Проект мансардного дома из кирпича с кабинетом, тремя спальнями и балконом / 3
D3589
125 м²
Подготовка проекта:
33 рабочих дня
Стоимость проекта
Купить проект
Задайте вопросы по проекту нашему архитектору
8 (800) 200-28-83
Время работы: пн-вс: с 9:00 до 20:00
Задать вопрос по проекту

Технические характеристики
Общие
Материал стен
Кирпич
Общая площадь
125 м²
Площадь застройки
102 м²
Приведенная площадь
127.014 м²
Количество жилых комнат/спален
4
Этажи
1 этаж + мансарда
Гараж
Нет гаража
Подвал / цокольный этаж
Без подвала
Длина дома
10.86 м
Ширина дома
9.91 м
Высота в коньке
7.63 м
Кровля
Металлочерепица
Облицовка внешних стен
Деревянная вагонка
,
Мокрая штукатурка
,
Облицовка камнем
Толщина несущих наружных стен
380 мм
Межэтажные перекрытия
Монолитные
Внутренние не несущие перегородки
Кирпичные
Фундамент
Ленточный заглубленный из ФБС
Терраса
Терраса открытая
Дополнительные
Окна
Окна до пола
Мансардные окна
Есть
Камин
Есть
Площадь гостиной
24.6 м²
Площадь кухни
11.9 м²
Количество санузлов
2
Окно в ванной комнате
Есть
Кабинет
Есть
Постирочная
Есть
Кладовая
4
Балкон / лоджия
Балкон
Длина участка
16.48 м
Ширина участка
16.78 м
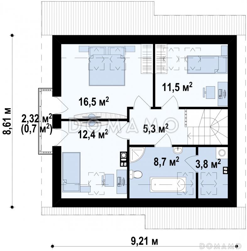
Планы помещений
Фасады
Описание проекта
Компания Domamo предлагает проект мансардного дома из кирпича с кабинетом, тремя спальнями и балконом D3589. Общая площадь - 125 м2, размер - 10.86х9.91 м. Фундамент - ленточный заглубленный из фбс, кровля - металлочерепица, внешняя отделка - деревянная вагонка мокрая штукатурка облицовка камнем. Для заказа проекта или внесения изменений свяжитесь с нами с помощью форм обратной связи на сайте или по телефону +7 (831) 231-05-02.
Категории проекта: с мансардой для постоянного проживания кирпич в классическом стиле от 100 до 200 кв.м кирпичные дома хай-тек классические кирпичные дома кирпичные дома с мансардой с террасой из кирпича с террасой готовые загородные из кирпича одноэтажные из кирпича одноэтажные из кирпича с мансардой одноэтажные с мансардой кирпичные площадью до 150 кв. м. одноэтажные до 150 кв. м. кирпичные до 200 кв.м до 150 кв.м до 200 кв.м с двухскатной крышей 9х12 загородные с камином квадратные с балконом 10х12 кирпичные 10х10 Проекты одноэтажных домов с террасой Типовые проекты загородных одноэтажных домов без гаража одноэтажные без гаража с террасой и камином с кабинетом одноэтажные с 4 спальнями с мансардой до 150 кв м с мансардой и террасой полутораэтажные каменные с 4 спальнями 9 на 12 с мансардой одноэтажные до 200 кв м до 140 кв м полутораэтажные из кирпича 10x12 с мансардой до 130 кв м с балконом и террасой одноэтажные с мансардными окнами с мансардой с камином с мансардой с двухскатной крышей с мансардой в классическом стиле с мансардой с окнами до пола с мансардой с мансардными окнами с мансардой с балконом с мансардой квадратные с мансардой готовые с мансардой для постоянного проживания с мансардой до 200 кв.м с мансардой от 100 до 150 кв.м одноэтажные из кирпича с 4 спальнями готовые для постоянного проживания с камином без гаража без подвала классический стиль квадратные одноэтажные с мансардой для постоянного проживания одноэтажные с мансардой классические одноэтажные с мансардой с балконом классические для постоянного проживания классические без гаража классические с 4 спальнями классические с окнами в пол классические с террасой классические готовые классические без подвала классические с 2 санузлами классические с прачечной классические с балконом классические квадратные классические с камином классические с двухскатной крышей классические с кабинетом до 150 кв.м для постоянного проживания до 150 кв.м без гаража до 150 кв.м с двухскатной крышей до 150 кв.м с окнами до пола до 150 кв.м классические до 150 кв.м готовые до 150 кв.м с мансардными окнами до 150 кв.м с балконом до 150 кв.м квадратные до 150 кв.м с кабинетом до 150 кв.м с прачечной до 150 кв.м с террасой до 150 кв.м без подвала до 150 кв.м с 4 спальнями до 150 кв.м с камином из клееного бруса без гаража Показать все категории Скрыть категории

Похожие проекты
Состав проекта
Входит в стоимость
Цена, руб. Сроки, дней
Комплект архитектурно-строительных чертежей (АС) Входит в стоимость 33 рабочих дня
Готово к продаже
Цена, руб. Сроки, дней
Паспорт рабочего проекта 8 000 ₽ 5 рабочих дней в корзину
Дополнительная копия проекта формата А3 6 500 ₽ 5 рабочих дней в корзину
Электронная копия проекта (скан распечатанной версии) 4 000 ₽ 3 рабочих дня в корзину
Разрабатывается отдельно
Цена, руб. Сроки, дней
Адаптация фундамента (изменение типа фундамента) по запросу 14 рабочих дней
Дизайн интерьера (стоимость от 2200руб. за квад.метр площади) по запросу 30 рабочих дней
Внесение изменений в проект по запросу 20 рабочих дней
Инженерные разделы: ВК + ОВ + ЭО 21 690 ₽ 33 рабочих дня в корзину
Разработка Генплана участка, в масштабе 1:250 7 500 ₽ 15 рабочих дней в корзину
Фэншуй дома 20 000 ₽ 14 рабочих дней в корзину
Фэншуй участка 15 000 ₽ 14 рабочих дней в корзину
Фэншуй полная консультация дом+участок с выездом на объект 100 000 ₽ 30 рабочих дней в корзину
Опции проекта вы можете заказать в корзине при оформлении заказа
Отзывы покупателей
Рейтинг покупателей
0 / 5 5 5 1
На основе 1 оценок покупателей
0%
0%
0%
0%
0%
Отзывы о проекте D3589
Отзыв о проекте D3589
Чтобы оставить отзыв, пожалуйста авторизуйтесь.
Подбор строительной компании
Не знаете кому доверить строительство дома? Мы можем помочь! Подберем для вас из сотен наших партнеров несколько компаний с лучшем соотношением цена/качество под конкретно ваш запрос.
Подобрать