Главная Проекты домов Проект компактного современного двухэтажного дома из кирпича в стиле модерн, с террасой на втором уровне и с гаражом

D3513 Проект компактного современного двухэтажного дома из кирпича в стиле модерн, с террасой на втором уровне и с гаражом

Сравнить проект В избранное
Технические характеристики
Общие
Материал стен
Кирпич
Общая площадь
143 м²
Площадь застройки
147.8 м²
Приведенная площадь
161.4 м²
Количество жилых комнат/спален
3
Этажи
2 этажа
Гараж
Встроенный гараж
Количество машин
1
Подвал / цокольный этаж
Без подвала
Длина дома
12.86 м
Ширина дома
12.86 м
Высота в коньке
7.1 м
Кровля
Рулонная кровля
Облицовка внешних стен
Мокрая штукатурка
,
Облицовка камнем
Толщина несущих наружных стен
380 мм
Межэтажные перекрытия
Монолитные
Внутренние не несущие перегородки
Кирпичные
Фундамент
Ленточный заглубленный из ФБС
Терраса
Терраса открытая
Дополнительные
Окна
Окна до пола
Камин
Есть
Площадь гостиной
25.8 м²
Площадь кухни
8.2 м²
Количество санузлов
3
Котельная
Есть
Хозяйский санузел
Есть
Хозяйская гардеробная
Есть
Кладовая
2
Длина участка
21.76 м
Ширина участка
19.86 м
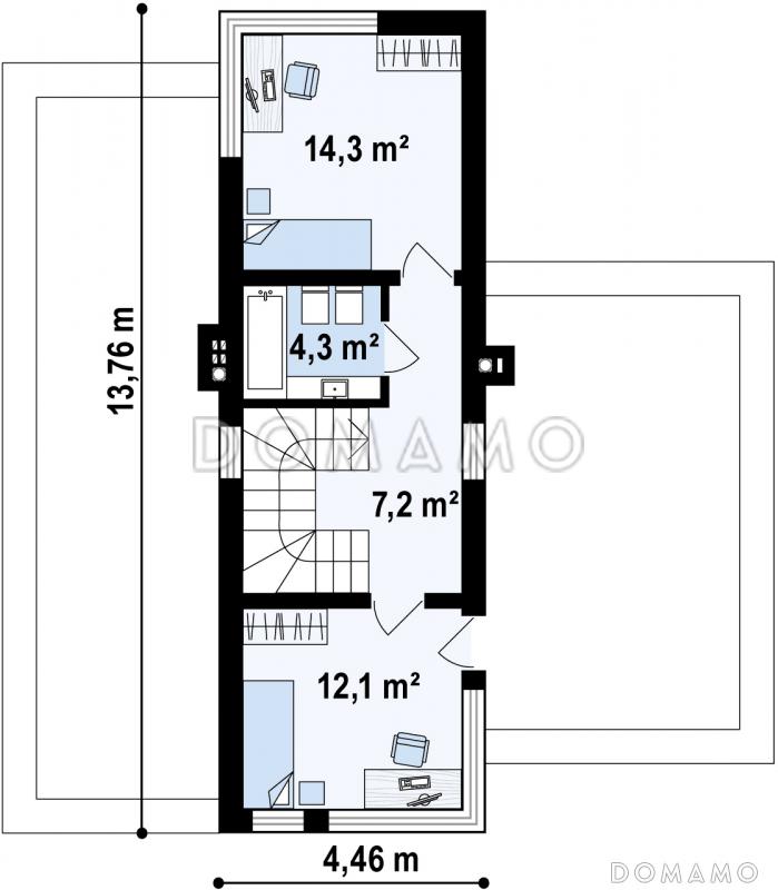
Планы помещений
Фасады
Описание проекта
Компания Domamo предлагает проект компактного современного двухэтажного дома из кирпича в стиле модерн, с террасой на втором уровне и с гаражом D3513. Общая площадь - 143 м2, размер - 12.86х12.86 м. Фундамент - ленточный заглубленный из фбс, кровля - рулонная кровля, внешняя отделка - мокрая штукатурка облицовка камнем. Для заказа проекта или внесения изменений свяжитесь с нами с помощью форм обратной связи на сайте или по телефону +7 (831) 231-05-02.
Категории проекта: с гаражом для постоянного проживания кирпич в стиле хай-тек от 100 до 200 кв.м кирпичные дома хай-тек дома из кирпича с гаражом с террасой из кирпича с террасой готовые загородные из кирпича двухэтажные из кирпича двухэтажные кирпичные с гаражом двухэтажные двухэтажные с гаражом кирпичные площадью до 150 кв. м. кирпичные с котельной с котельной кирпичные до 200 кв.м с плоской крышей до 150 кв.м до 200 кв.м загородные с камином с гардеробной квадратные со встроенным гаражом в стиле хай-тек с плоской крышей Проекты двухэтажных домов с террасой Проекты двухэтажных домов с верандой с террасой и камином Проекты домов с тремя спальнями с гаражом под одной крышей каменные с гаражом и террасой двухэтажные с террасой и гаражом двухэтажные до 150 кв м двухэтажные 200 кв м двухэтажные до 180 кв.м двухэтажные с камином двухэтажные с 3 спальнями двухэтажные до 150 кв.м с гаражом двухэтажные до 150 кв.м с террасой двухэтажные до 150 кв.м с 3 спальнями до 150 кв.м для постоянного проживания до 150 кв.м с гаражом до 150 кв.м с плоской крышей до 150 кв.м с окнами до пола до 150 кв.м готовые до 150 кв.м квадратные до 150 кв.м с котельной до 150 кв.м с мастер-спальней до 150 кв.м с террасой до 150 кв.м без подвала до 150 кв.м с 3 спальнями до 150 кв.м с камином двухэтажные в стиле хай-тек хай-тек для постоянного проживания хай-тек с гаражом хай-тек с окнами в пол хай-тек с террасой хай-тек готовые хай-тек с камином хай-тек на ленточном фундаменте хай-тек с котельной хай-тек с мастер-спальней хай-тек с 3 спальнями хай-тек без подвала хай-тек до 150 м2 хай-тек от 100 до 200 м2 из клееного бруса без гаража с плоской крышей двухэтажные с плоской крышей и большой террасой с плоской крышей готовые с плоской крышей для постоянного проживания с плоской крышей и камином с плоской крышей квадратные с плоской крышей и окнами в пол в гостиной с плоской крышей и окнами в пол на кухне с плоской крышей и окнами до пола с плоской крышей и монолитными перекрытиями с плоской крышей и облицовкой мокрой штукатуркой с плоской крышей и облицовкой камнем с плоской крышей кирпичные с плоской крышей и хозяйской гардеробной с плоской крышей и хозяйским санузлом с плоской крышей и котельной Показать все категории Скрыть категории

Похожие проекты
Состав проекта
Входит в стоимость
Цена, руб. Сроки, дней
Комплект архитектурно-строительных чертежей (АС) Входит в стоимость 33 рабочих дня
Готово к продаже
Цена, руб. Сроки, дней
Паспорт рабочего проекта 8 000 ₽ 5 рабочих дней в корзину
Дополнительная копия проекта формата А3 6 500 ₽ 5 рабочих дней в корзину
Электронная копия проекта (скан распечатанной версии) 4 000 ₽ 3 рабочих дня в корзину
Разрабатывается отдельно
Цена, руб. Сроки, дней
Адаптация фундамента (изменение типа фундамента) по запросу 14 рабочих дней
Дизайн интерьера (стоимость от 2200руб. за квад.метр площади) по запросу 30 рабочих дней
Внесение изменений в проект по запросу 20 рабочих дней
Инженерные разделы: ВК + ОВ + ЭО 33 900 ₽ 33 рабочих дня в корзину
Разработка Генплана участка, в масштабе 1:250 7 500 ₽ 15 рабочих дней в корзину
Фэншуй дома 20 000 ₽ 14 рабочих дней в корзину
Фэншуй участка 15 000 ₽ 14 рабочих дней в корзину
Фэншуй полная консультация дом+участок с выездом на объект 100 000 ₽ 30 рабочих дней в корзину
Опции проекта вы можете заказать в корзине при оформлении заказа
Варианты проекта Сравнить все варианты
Избранные проекты
Избранные строители
Предложения строителей Выбрать регион
Минимальная
5 649 000 ₽
Стандарт
6 940 200 ₽
Под чистовую отделку
9 038 400 ₽
Показать подробные комплектации
Минимальная
16 462 800 ₽
Стандарт
19 368 000 ₽
Под чистовую отделку
25 178 400 ₽
Показать подробные комплектации
Минимальная
8 315 328 ₽
Стандарт
12 213 138 ₽
Под чистовую отделку
19 229 196 ₽
Показать подробные комплектации
Минимальная
6 467 298 ₽
Стандарт
7 426 014 ₽
Под чистовую отделку
9 508 396 ₽
Показать подробные комплектации
Минимальная
3 467 009 ₽
Стандарт
4 293 344 ₽
Под чистовую отделку
5 167 568 ₽
Показать подробные комплектации
Подбор строительной компании
Не знаете кому доверить строительство дома? Мы можем помочь! Подберем для вас из сотен наших партнеров несколько компаний с лучшем соотношением цена/качество под конкретно ваш запрос.
Подобрать
Посмотреть еще 20 компаний Свернуть
Отзывы покупателей
Рейтинг покупателей
0 / 5 5 5 1
На основе 1 оценок покупателей
0%
0%
0%
0%
0%
Отзывы о проекте D3513
Отзыв о проекте D3513
Чтобы оставить отзыв, пожалуйста авторизуйтесь.
Подбор строительной компании
Не знаете кому доверить строительство дома? Мы можем помочь! Подберем для вас из сотен наших партнеров несколько компаний с лучшем соотношением цена/качество под конкретно ваш запрос.
Подобрать